Oasis Residence

Eladó ikerház
Kakucs

+ 17 kép 1/20
95 990 000 Ft95.99 M Ft 1 066 556 Ft/m2
4 szoba
90 m²
építés éve:2022

Részletes adatok

Állapot: Újszerű
Telekméret: 450 m2
Fűtés: Gázkazán
Energetikai besorolás: A

Az OTP Bank lakáshitel ajánlataFizetett hirdetés

+36 1 690
Erdei Sándor Csaba
referens

Érdekel az OTP Bank kedvezményes lakáshitel ajánlata? *

* A kérdésre „Igen” válasz bejelölése esetén, az „Üzenet küldése” gombra kattintva kijelentem, hogy az OTP Bank Nyrt. Adatkezelési tájékoztatójának tartalmát megismertem és tudomásul vettem.

Eladó ikerház leírása

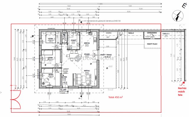
ELADÓ 3 ÉVES TÁROLÓKAPCSOLATOS IKERHÁZFÉL KAKUCSON, KÖZÖS FALAK NÉLKÜL!Eladásra kínálunk Kakucson egy 2023-ban elkészült 90 m2 hasznos alapterületű ikerházfelet 450 m2-es saját telekrésszel.Helyiségeket tekintve az ingatlan rendelkezik 3 különnyíló hálószobával, egy amerikai-konyhás nappalival és étkezővel, fürdővel és külön WC-vel és egy előtérrel.A hasznos alapterületen kívül egy 24 m2-es fedett terasz, 6 m2-es kamra és egy 4,5 m2-es tároló is kialakításra került.ÉPÜLET:Az épület beton alapra téglából, fa födémmel és tetőszerkezettel, betoncserép fedéssel épült.10 cm homlokzati, 10 cm lépésálló lábazati- és 30 cm-es ásványgyapot födémszigeteléssel rendelkezik.Prémium nyílászárók: 3 rétegű üvegezéssel ellátott, 6 kamrás profilok a kiváló hang - és hővédelemért.Fűtését ARISTON kondenzációs kazán biztosítja padlófűtéses és radiátoros hőleadással.EXTRÁK:- WIFI-s hővisszanyerős szellőztető rendszer, hűtő-fűtő klíma és egy törölközőszárító- 3 fázisú elektromos kiállás napelemes rendszer inverterének fogadására- Ethernet- és koaxiális csatlakozás minden szobában- Kamerás kaputelefon és kamerarendszer- Elektromos kapu távnyitással és rádióvezérlésű autókapuKERT:- 450 m2 alapterületű saját, körbekerített kertrész- 48 m²-es murvázott gépkocsibeálló több autó parkolására is- 2350 liter vízgyűjtő kapacitás (1000 literes tartály szivattyúval)- magaságyások, üvegházAz ingatlan saját helyrajziszámmal rendelkezik, jogilag teljesen külön funkcionál a szomszédos ikerházféltől.ÖRÖMMEL ÁLLOK RENDELKEZÉSÉRE A DUNA HOUSE KÍNÁLATÁBAN MEGTALÁLHATÓ ÖSSZES INGATLANNAL KAPCSOLATBAN.HÉTVÉGÉN IS VÁROM MEGTISZTELŐ HÍVÁSÁT!

Hirdetés feltöltve: 2026. 04. 21. Utoljára módosítva: 2026. 05. 10.

4 szobás ikerházak ára Kakucson

Ebből az összehasonlításból megtudhatod, hogyan viszonyul a lakás ára a környékbeli ikerházak átlagos árához. Ez nem azt jelenti, hogy ennyivel olcsóbb vagy drágább, mint amennyit a lakás ér, hanem hogy ennyivel tér el a környékbeli átlagtól.

Ennek a m² ára
Kakucs m² ár
1067 e Ft
950 e Ft -12%
Ennek az ára
Kakucs átlagár
95.99 M Ft m Ft
92.6 m Ft -4%

Az ingatlan elhelyezkedése

Cím: Kakucs

Eladó ingatlanok a környékről

Mogyoród
Eladó ikerház

Mogyoród

135 M Ft
5 szoba
137 m²
Pécel
Eladó ikerház

Pécel

389 M Ft
11 szoba
430 m²
Kakucs
Eladó ikerház

Kakucs

105 M Ft
4 szoba
132 m²
Biatorbágy
Eladó családi ház

Biatorbágy

64 M Ft
2 + 1 szoba
60 m²
Herceghalom
Eladó ikerház

Herceghalom

148 M Ft
5 szoba
134 m²
Diósd
Eladó ikerház

Diósd

206.25 M Ft
5 szoba
184 m²
Vácrátót
Eladó ikerház

Vácrátót

94.9 M Ft
2 + 3 szoba
108 m²
Szentendre
Eladó ikerház

Szentendre

179 M Ft
5 + 1 szoba
147 m²
Diósd
Eladó ikerház

Diósd

213.46 M Ft
5 szoba
186 m²
Kiskunlacháza
Eladó ikerház

Kiskunlacháza

44.9 M Ft
2 szoba
39 m²
Kakucs
Eladó ikerház

Kakucs

96 M Ft
4 szoba
90 m²
Kakucs
Eladó ikerház

Kakucs

89.9 M Ft
4 szoba
91 m²
Dunakeszi
Eladó ikerház

Dunakeszi

178 M Ft
6 szoba
140 m²
Szentendre
Eladó ikerház

Szentendre

718 M Ft
10 + 2 szoba
578 m²
Kakucs
Eladó ikerház

Kakucs

89.9 M Ft
4 szoba
90 m²
Kakucs
Eladó ikerház

Kakucs

85 M Ft
4 szoba
95 m²
Hernád
Eladó ikerház

Hernád

41.3 M Ft
3 szoba
68 m²
Vác
Eladó ikerház

Vác

96.7 M Ft
4 + 1 szoba
126 m²
Kakucs
Eladó ikerház

Kakucs

89.9 M Ft
4 szoba
90 m²
Mogyoród
Eladó ikerház

Mogyoród

129 M Ft
5 szoba
123 m²
Kakucs
Eladó ikerház

Kakucs

105 M Ft
4 szoba
133 m²
Kakucs
Eladó ikerház

Kakucs

89.9 M Ft
4 szoba
90 m²
Érd
Eladó ikerház

Érd

177.7 M Ft
7 szoba
181 m²
Kakucs
Eladó ikerház

Kakucs

85 M Ft
4 szoba
95 m²

Falusi CSOK ingatlanok

Vértesboglár, Dózsa utca
Eladó családi ház

Vértesboglár

99 M Ft
4 szoba
110 m²
Pilisszentkereszt
Eladó családi ház

Pilisszentkereszt

68.9 M Ft
2 szoba
50 m²
Somlóvásárhely
Eladó családi ház

Somlóvásárhely

35.9 M Ft
1 szoba
78 m²
Badacsonytördemic
Eladó családi ház

Badacsonytördemic

86 M Ft
4 szoba
110 m²
Tab
Eladó családi ház

Tab

64.99 M Ft
4 szoba
160 m²
Csabacsűd
Eladó családi ház

Csabacsűd

21 M Ft
3 szoba
125 m²
Vép
Eladó családi ház

Vép

75.9 M Ft
5 szoba
150 m²
Tab, Rákóczi utca 45
Eladó családi ház

Tab

17.13 M Ft
1 + 1 szoba
105 m²