Astora Art House

Eladó ikerház
Győrság

Figyelem!

Ez az ingatlan a 2019.07.01-től induló falusi CSOK által támogatott településen található

+ 1 kép 1/4
59 900 000 Ft59.9 M Ft 658 242 Ft/m2
4 szoba
91 m2

Részletes adatok

Telekméret: 438 m2
Fűtés: Egyéb
Közmű: Víz, Gáz, Villany, Csatorna
Energetikai besorolás: Nem adta meg a hirdető

Az OTP Bank lakáshitel ajánlataFizetett hirdetés

+36 70 886
Neizer Éva
Trendi Ingatlan

Érdekel az OTP Bank kedvezményes lakáshitel ajánlata? *

* A kérdésre „Igen” válasz bejelölése esetén, az „Üzenet küldése” gombra kattintva kijelentem, hogy az OTP Bank Nyrt. Adatkezelési tájékoztatójának tartalmát megismertem és tudomásul vettem.

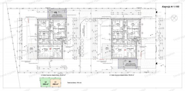
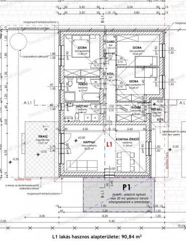
Eladó ikerház leírása

Győrságon új építésű 90,84 nm-es nappali + 3 szobás ikerház 438 nm-es telekrészen eladó. A két ház önállóan megközelíthető, nincs közös fal.

A remek elosztású házban amerikai konyhás nappali, 3 szoba, fürdőszoba, háztartási helyiség, előtér, gardrób, közlekedő található. A nappaliból 15,21 nm-es terasz nyílik.

A ház 30-as falazóelemből, 15 cm-es homlokzati szigeteléssel, 3 rétegű műanyag nyílászárókkal kerül kivitelezésre. Az ingatlan fűtését és melegvíz ellátását hőszivattyú biztosítja padlófűtéssel. Felár ellenében kerti csap, klíma- és riasztó előkészítés, terasz, térkövezés kérhető.

Fűtéskész átadás várható ideje: 2026 ősz

Az ingatlan fűtéskész ára: 59.900.000 Ft. Kulcsrakész befejezés kérhető.
Az ár tartalmazza a telek árát is.

Bővebb információkért forduljon hozzám bizalommal.
Hétköznap és hétvégén is várom hívását!

Díjmentes, bankfüggetlen hitelügyintézéssel állunk rendelkezésére.

A hirdetésben feltüntetett képek illusztrációk.

Hirdetés feltöltve: 2025. 10. 17. Utoljára módosítva: 2025. 11. 12.

Az ingatlan elhelyezkedése

Cím: Győrság

Eladó ingatlanok a környékről

Eladó családi ház
Eladó családi ház

Pannonhalma, Szent Márton utca 9

97.9 M Ft
3 szoba
100 m2
Eladó családi ház
Eladó családi ház

Dör

36 M Ft
2 szoba
100 m2
Eladó ikerház
Eladó ikerház

Győrság

69.9 M Ft
3 szoba
72 m2
Eladó ikerház
Eladó ikerház

Nagycenk

89.5 M Ft
4 szoba
90 m2
Eladó ikerház
Eladó ikerház

Győrság

69.9 M Ft
3 szoba
72 m2
Eladó ikerház
Eladó ikerház

Fertőrákos

125 M Ft
4 szoba
170 m2
Eladó ikerház
Eladó ikerház

Sopron

144.9 M Ft
9 szoba
426 m2
Eladó családi ház
Eladó családi ház

Románd

52.9 M Ft
3 szoba
100 m2
Eladó ikerház
Eladó ikerház

Győrság

69.9 M Ft
3 szoba
72 m2
Eladó ikerház
Eladó ikerház

Sopron

82.9 M Ft
3 szoba
80 m2
Eladó ikerház
Eladó ikerház

Győrság

69.9 M Ft
3 szoba
72 m2
Eladó panellakás
Eladó panellakás

Győr

46.9 M Ft
2 szoba
53 m2
Eladó családi ház
Eladó családi ház

Győr

183.5 M Ft
4 szoba
185 m2
Eladó ikerház
Eladó ikerház

Nagycenk

89.5 M Ft
4 szoba
102 m2
Eladó üzlethelyiség
Eladó üzlethelyiség

Jánossomorja

180 M Ft
540 m2
Eladó ikerház
Eladó ikerház

Mosonmagyaróvár

79.8 M Ft
4 szoba
88 m2
Eladó családi ház
Eladó családi ház

Győr

183.5 M Ft
4 szoba
185 m2
Eladó ikerház
Eladó ikerház

Győr

118 M Ft
5 szoba
135 m2
Eladó panellakás
Eladó panellakás

Győr

52 M Ft
2 + 1 szoba
55 m2
Eladó ikerház
Eladó ikerház

Vámosszabadi, Császárfa utca

89 M Ft
4 szoba
91 m2
Eladó ikerház
Eladó ikerház

Győrság

69.9 M Ft
3 szoba
72 m2
Eladó családi ház
Eladó családi ház

Győr

159.9 M Ft
4 szoba
180 m2
Eladó ikerház
Eladó ikerház

Pér

82.634 M Ft
5 szoba
110 m2
Eladó ikerház
Eladó ikerház

Győrság

95.99 M Ft
4 szoba
91 m2

Falusi CSOK ingatlanok

Eladó családi ház
Eladó családi ház

Kesztölc

129.9 M Ft
8 szoba
210 m2
Eladó családi ház
Eladó családi ház

Lőkösháza

12.5 M Ft
2 szoba
63 m2
Eladó családi ház
Eladó családi ház

Szarvaskend

26.9 M Ft
2 szoba
83 m2
Eladó családi ház
Eladó családi ház

Vásárosdombó

14.99 M Ft
2 szoba
69 m2
Eladó családi ház
Eladó családi ház

Álmosd

13.9 M Ft
2 szoba
80 m2
Eladó téglalakás
Eladó téglalakás

Vasvár

40.52 M Ft
2 szoba
59 m2
Eladó családi ház
Eladó családi ház

Nagybörzsöny

36 M Ft
2 + 1 szoba
74 m2
Eladó családi ház
Eladó családi ház

Ceglédbercel, Iskola utca

109 M Ft
5 szoba
133 m2

Falusi CSOK ingatlanok

Eladó családi ház
Eladó családi ház

Pécsely, Szőlő Dülő

499 M Ft
4 + 2 szoba
183 m2
Eladó családi ház
Eladó családi ház

Újszilvás

22.5 M Ft
2 szoba
65 m2
Eladó családi ház
Eladó családi ház

Hercegszántó

33 M Ft
4 szoba
144 m2
Eladó családi ház
Eladó családi ház

Gégény, Kossuth

15 M Ft
4 szoba
135 m2
Eladó ikerház
Eladó ikerház

Balatonakali

129 M Ft
4 szoba
145 m2
Eladó családi ház
Eladó családi ház

Badacsonytördemic

182.36 M Ft
4 szoba
160 m2
Eladó családi ház
Eladó családi ház

Sükösd

18.5 M Ft
3 szoba
89 m2
Eladó családi ház
Eladó családi ház

Gasztony

29.4 M Ft
2 szoba
83 m2