NapForrás 20 - Buda

Eladó családi ház
Kőröstetétlen

Figyelem!

Ez az ingatlan a 2019.07.01-től induló falusi CSOK által támogatott településen található

+ 17 kép 1/20
17 900 000 Ft17.9 M Ft 192 473 Ft/m2
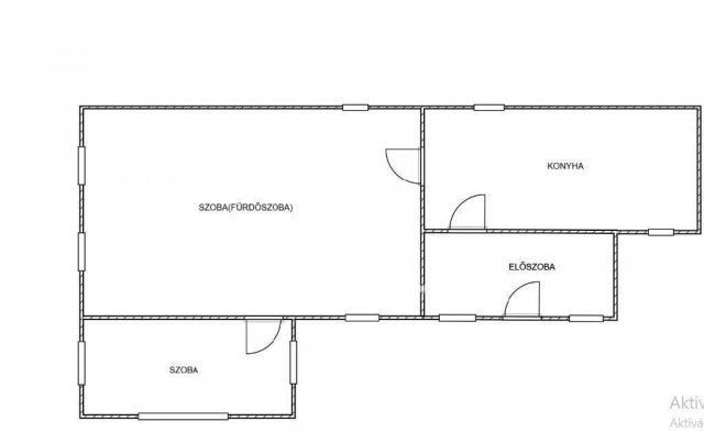
2 + 1 szoba
93 m2
építés éve:1960

Részletes adatok

Állapot: Felújítandó
Telekméret: 1609 m2
Fűtés: Egyéb
Energetikai besorolás: Nem adta meg a hirdető

Az OTP Bank lakáshitel ajánlataFizetett hirdetés

+36 70 358
Jancsovics-Andó Bernadett
Jászberény. OTPIP SzeMi

Érdekel az OTP Bank kedvezményes lakáshitel ajánlata? *

* A kérdésre „Igen” válasz bejelölése esetén, az „Üzenet küldése” gombra kattintva kijelentem, hogy az OTP Bank Nyrt. Adatkezelési tájékoztatójának tartalmát megismertem és tudomásul vettem.

Eladó családi ház leírása

Pest Vármegyében, Kőröstetétlenenen eladó egy 93 nm-es ingatlan, melyet kedved szerint csinosíthatsz. A ház felújítása megkezdődött, a villany vezeték átalakításának köszönhetően 3*16A került kialakításra. A régi csövek, vezetékek és válaszfalak bontása megtörtént. A gáz a telken belül található. A régi csövek, vezetékek és válaszfalak bontása megtörtént. Az ingatlan tehermentes, azonnal birtokba vehető. Kőröstetétlenről könnyen megközelíthető Budapest és környéke, így ideális lehet azok számára, akik a város közelségében szeretnének élni, ugyanakkor élvezni a vidéki élet nyugalmát. A lakosság barátságos és összetartó, ami kellemes és támogató környezetet teremt a lakók számára. Igény esetén ügyvédi közreműködést is biztosítunk az adásvételhez.

Referencia szám: M313043-ZE

Hirdetés feltöltve: 2025. 12. 16. Utoljára módosítva: 2025. 12. 22.

Az ingatlan elhelyezkedése

Cím: Kőröstetétlen

Eladó ingatlanok a környékről

Eladó családi ház
Eladó családi ház

Gyál, Gyál út

169.9 M Ft
2 szoba
90 m2
Eladó családi ház
Eladó családi ház

Budakeszi, Budakeszi kertváros

229 M Ft
10 szoba
450 m2
Eladó családi ház
Eladó családi ház

Veresegyház, Salamon utca

119.9 M Ft
4 szoba
160 m2
Eladó családi ház
Eladó családi ház

Kerepes

199 M Ft
6 szoba
360 m2
Eladó családi ház
Eladó családi ház

Cegléd

79.9 M Ft
3 szoba
104 m2
Eladó családi ház
Eladó családi ház

Dabas

34.9 M Ft
1 szoba
46 m2
Eladó családi ház
Eladó családi ház

Kőröstetétlen

14.9 M Ft
3 szoba
65 m2
Eladó családi ház
Eladó családi ház

Hernád

87 M Ft
5 szoba
137 m2
Eladó családi ház
Eladó családi ház

Kőröstetétlen

64.9 M Ft
7 szoba
130 m2
Eladó családi ház
Eladó családi ház

Tápiószentmárton

48 M Ft
5 szoba
180 m2
Eladó téglalakás
Eladó téglalakás

Halásztelek

94.9 M Ft
5 szoba
96 m2
Eladó ikerház
Eladó ikerház

Százhalombatta

135 M Ft
5 szoba
151 m2
Eladó családi ház
Eladó családi ház

Pécel, Reményik Sándor utca

296 M Ft
6 szoba
396 m2
Eladó családi ház
Eladó családi ház

Budakeszi

130 M Ft
5 szoba
30 m2
Eladó családi ház
Eladó családi ház

Leányfalu

237 M Ft
9 szoba
800 m2
Eladó telek
Eladó telek

Budakeszi, Makkosi utca

69 M Ft
1930 m²
Eladó telek
Eladó telek

Dömsöd

15.5 M Ft
3807 m²
Eladó családi ház
Eladó családi ház

Érd

164.9 M Ft
5 szoba
192 m2
Eladó családi ház
Eladó családi ház

Tápiószele

32.9 M Ft
4 szoba
200 m2
Eladó téglalakás
Eladó téglalakás

Budakeszi

139 M Ft
3 szoba
61 m2
Eladó mezogazdasagi ingatlan
Eladó mezogazdasagi ingatlan

Felsőpakony

149.9 M Ft
4 szoba
198 m2
Eladó családi ház
Eladó családi ház

Érd

67 M Ft
3 szoba
81 m2
Eladó családi ház
Eladó családi ház

Budakeszi, Budakeszi kertváros

140 M Ft
2 szoba
55 m2
Eladó családi ház
Eladó családi ház

Ócsa

55.5 M Ft
2 szoba
48 m2

Falusi CSOK ingatlanok

Eladó családi ház
Eladó családi ház

Balatonkeresztúr

71.95 M Ft
5 szoba
128 m2
Eladó családi ház
Eladó családi ház

Szentlőrinckáta

17 M Ft
4 szoba
67 m2
Eladó családi ház
Eladó családi ház

Herend

128 M Ft
3 + 2 szoba
246 m2
Eladó családi ház
Eladó családi ház

Szederkény

107.9 M Ft
6 szoba
224 m2
Eladó ikerház
Eladó ikerház

Seregélyes

39.9 M Ft
4 szoba
150 m2
Eladó családi ház
Eladó családi ház

Palkonya

137 M Ft
6 szoba
160 m2
Eladó családi ház
Eladó családi ház

Dunafalva

66 M Ft
3 szoba
116 m2
Eladó családi ház
Eladó családi ház

Szigliget, Balaton utca 9

187 M Ft
3 szoba
136 m2

Falusi CSOK ingatlanok

Eladó családi ház
Eladó családi ház

Balatonkeresztúr

71.95 M Ft
5 szoba
128 m2
Eladó családi ház
Eladó családi ház

Tiszaroff

12.5 M Ft
2 szoba
63 m2
Eladó családi ház
Eladó családi ház

Dunafalva

66 M Ft
3 szoba
116 m2
Eladó családi ház
Eladó családi ház

Mezőfalva

39 M Ft
3 szoba
77 m2
Eladó családi ház
Eladó családi ház

Belvárdgyula

27.9 M Ft
4 szoba
120 m2
Eladó családi ház
Eladó családi ház

Recsk

59 M Ft
2 szoba
70 m2
Eladó családi ház
Eladó családi ház

Gönyű

111.951 M Ft
4 szoba
105 m2
Eladó családi ház
Eladó családi ház

Sellye

21.6 M Ft
2 szoba
72 m2