Aerogate Homes

Eladó ikerház
Gödöllő

+ 3 kép 1/6
149 900 000 Ft149.9 M Ft 1 040 972 Ft/m2
4 szoba
144 m²
építés éve:2025

Részletes adatok

Telekméret: 550 m2
Fűtés: Egyéb
Energetikai besorolás: Nem adta meg a hirdető

Az OTP Bank lakáshitel ajánlataFizetett hirdetés

+36 30 869
Plachy Zsuzsa
Duna House - Kulcs-Pont Ingatlan Kft. - Budapest

Érdekel az OTP Bank kedvezményes lakáshitel ajánlata? *

* A kérdésre „Igen” válasz bejelölése esetén, az „Üzenet küldése” gombra kattintva kijelentem, hogy az OTP Bank Nyrt. Adatkezelési tájékoztatójának tartalmát megismertem és tudomásul vettem.

Eladó ikerház leírása

Gödöllő egyik legkedveltebb részén, a Kertvárosban kínálkuk egy nappali+4 szobás új építésű ikerház mindkét felét megvételre.

Csendes, zöldövezeti környezet, kiváló közlekedéssel ideális családoknak, pároknak, befektetőknek egyaránt!

Kulcsrakész átadás: 2026 tavasz!

Kiváló referenciákkal rendelkező, megbízható kivitelezőtől, minőségi anyaghasználattal, egyedi igényekre szabva!

Főbb jellemzők:
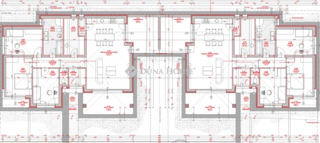
144 m²-es lakótér, nappali + 3 különnyíló szoba
550 m²-es szeparált telek, saját kerttel és kocsibeállóval
14,28 m²-es fedett terasz + 14 m²-es nyári konyha, amely akár otthoni irodának is ideális

Prémium műszaki tartalom:
30-as PTH tégla falazat + 12 cm grafitszigetelés
3 rétegű üvegezésű, középszürke műanyag nyílászárók
monolit vasbetonfödém, zsalukő lábazat, antracit cserépfedés
Atlantic Loria hőszivattyú melegvíz-tárolóval
padlófűtés minden helyiségben, törölközőszárítós radiátor a fürdőben
riasztó és klíma előkészítés

A vételár tartalmazza:
beltéri ajtók (60.000 Ft/db)
hideg- és melegburkolatok (5.000 Ft/m²)
teraszburkolat (6.500 Ft/m²)
mosdók (20.000 Ft/db), csaptelepek (15.000 Ft/db)
beépített Geberit WC (20.000 Ft/db)

Elosztás:
Előszoba, tágas amerikai konyhás nappali, 3 hálószoba, közlekedő, fürdőszoba, külön WC, kamra, háztartási helyiség, fedett terasz + nyári konyha.

A burkolatok, szaniterek választhatók teljes műszaki tartalmat és alaprajzot kérésre azonnal küldünk!

Referencia házak a közelben megtekinthetők!

Ne maradj le ez az otthon a nyugalom és a minőség tökéletes találkozása!
Amennyiben az ingatlan megfelelne az elvárásainak de nem rendelkezik a teljes vételárral? Ebben az esetben a CREDIPASS munkatársai kötelezettség- és díjmentes tanácsadással állnak Ügyfeleink rendelkezésére.
Használja ki a jelenleg még érvényben lévő kedvező kamatozású hiteleket, CSOK-ot, illetékkedvezményt!
Hétvégén is várom megtisztelő hívását, abban az esetben is ha csak hitelre lenne szüksége,
Várom hívását, ha még el kell adnia ahhoz, hogy vásárolni tudjon!

Várom megtisztelő hívását: Plachy Zsuzsa 30-8695401

Referencia szám: HZ089393

Hirdetés feltöltve: 2026. 04. 25.

4 szobás ikerházak ára Gödöllőn

Ebből az összehasonlításból megtudhatod, hogyan viszonyul a lakás ára a környékbeli ikerházak átlagos árához. Ez nem azt jelenti, hogy ennyivel olcsóbb vagy drágább, mint amennyit a lakás ér, hanem hogy ennyivel tér el a környékbeli átlagtól.

Ennek a m² ára
Gödöllő m² ár
1041 e Ft
1066 e Ft 2%
Ennek az ára
Gödöllő átlagár
149.9 M Ft m Ft
138.7 m Ft -8%

Az ingatlan elhelyezkedése

Cím: Gödöllő

Eladó ikerházak a környékről

Herceghalom
Eladó ikerház

Herceghalom

99 M Ft
4 szoba
106 m²
Gödöllő
Eladó ikerház

Gödöllő

150 M Ft
5 szoba
148 m²
Gödöllő
Eladó ikerház

Gödöllő

114.9 M Ft
4 szoba
125 m²
Diósd
Eladó ikerház

Diósd

206.25 M Ft
5 szoba
184 m²
Gödöllő
Eladó ikerház

Gödöllő

105 M Ft
4 szoba
110 m²
Gödöllő
Eladó ikerház

Gödöllő

144.65 M Ft
5 szoba
137 m²
Pécel, Pécel - kertváros
Eladó ikerház

Pécel

127 M Ft
4 szoba
125 m²
Szentendre
Eladó ikerház

Szentendre

179 M Ft
5 + 1 szoba
147 m²
Gödöllő
Eladó ikerház

Gödöllő

119.9 M Ft
4 szoba
100 m²
Herceghalom
Eladó ikerház

Herceghalom

148 M Ft
5 szoba
134 m²
Dunakeszi
Eladó ikerház

Dunakeszi

178 M Ft
6 szoba
140 m²
Vácrátót
Eladó ikerház

Vácrátót

99.9 M Ft
3 + 2 szoba
112 m²
Mogyoród
Eladó ikerház

Mogyoród

135 M Ft
5 szoba
137 m²
Gödöllő
Eladó ikerház

Gödöllő

168 M Ft
4 szoba
150 m²
Szentendre
Eladó ikerház

Szentendre

359 M Ft
5 + 1 szoba
289 m²
Gödöllő
Eladó ikerház

Gödöllő

150 M Ft
5 szoba
148 m²
Gödöllő
Eladó ikerház

Gödöllő

144.65 M Ft
5 szoba
137 m²
Gödöllő
Eladó ikerház

Gödöllő

115 M Ft
7 szoba
189 m²
Érd
Eladó ikerház

Érd

177.7 M Ft
7 szoba
181 m²
Pomáz
Eladó ikerház

Pomáz

129.5 M Ft
4 szoba
100 m²
Gödöllő
Eladó ikerház

Gödöllő

115 M Ft
4 szoba
110 m²
Vác
Eladó ikerház

Vác

96.7 M Ft
4 + 1 szoba
126 m²
Vác
Eladó ikerház

Vác

99.7 M Ft
4 + 1 szoba
129 m²
Gödöllő
Eladó ikerház

Gödöllő

112.5 M Ft
4 szoba
128 m²

Falusi CSOK ingatlanok

Nyírtura
Eladó családi ház

Nyírtura

99 M Ft
4 szoba
280 m²
Segesd
Eladó családi ház

Segesd

15.8 M Ft
3 szoba
100 m²
Bükkábrány
Eladó családi ház

Bükkábrány

37.5 M Ft
5 + 1 szoba
180 m²
Hegyeshalom, Margaréta utca 12
Eladó téglalakás

Hegyeshalom

50.09 M Ft
2 szoba
43 m²
Verseg
Eladó családi ház

Verseg

32.5 M Ft
1 + 1 szoba
42 m²
Bag
Eladó családi ház

Bag

116 M Ft
5 + 1 szoba
148 m²
Mezőzombor
Eladó családi ház

Mezőzombor

14.6 M Ft
3 szoba
81 m²
Bodrogkeresztúr
Eladó családi ház

Bodrogkeresztúr

98 M Ft
3 + 1 szoba
189 m²