City Pearl

Eladó ikerház
Gödöllő, földszint

+ 10 kép 1/13
150 000 000 Ft150 M Ft 1 013 514 Ft/m2
5 szoba
148 m2
földszint
építés éve:2025

Részletes adatok

Telekméret: 350 m2
Fűtés: Egyéb
Parkolás: Kocsibeálló
Közmű: Víz, Gáz, Villany, Csatorna
Energetikai besorolás: Nem adta meg a hirdető

Az OTP Bank lakáshitel ajánlataFizetett hirdetés

+36 70 396
Kómár-Benke Nikoletta
referens

Érdekel az OTP Bank kedvezményes lakáshitel ajánlata? *

* A kérdésre „Igen” válasz bejelölése esetén, az „Üzenet küldése” gombra kattintva kijelentem, hogy az OTP Bank Nyrt. Adatkezelési tájékoztatójának tartalmát megismertem és tudomásul vettem.

Eladó ikerház leírása

Új ikerház épül Gödöllő legpatinásabb részén!

Ez az ingatlan nemcsak tágas és kényelmes, hanem egy kiváló, tapasztalt kivitelező által készül, aki nagy gondot fordít a minőségre és a részletekre.

Műszaki információk röviden:
A ház erős, vastag klímatéglafalakkal épül, amelyek jól tartanak és szigetelnek, így télen meleg, nyáron hűvös marad. Az épületet modern hőszigeteléssel látják el, ami csökkenti a rezsit. A nyílászárók korszerű, többkamrás műanyag ablakok, amik jól zárnak és bent tartják a meleget. A fűtést gazdaságos, modern gázkazán biztosítja, ami megbízható és energiatakarékos működést nyújt.

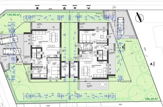
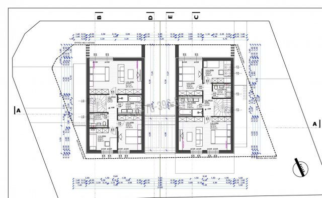
1. lakás (~148,2 m²)
Földszint (~84,14 m²):
• Nappali- étkező-konyha: ~50 m²
• Szoba: 19,14 m²
• Előszoba: ~7 m²
• Közlekedő: ~5 m²
• Lépcsőtér: ~3 m²
• Tároló: ~6 m²
Emelet (~64,06 m²):
• hálószoba: ~16 m²
• hálószoba: ~14 m²
• hálószoba: ~15 m²
• Fürdő 1: ~7 m²
• Fürdő 2: ~8 m²
• Emeleti közlekedő: ~4 m²

2. lakás (~148,2 m²)
Földszint (~84,14 m²):
• Nappali- étkező-konyha: ~50 m²
• Szoba: 19,14 m²
• Előszoba: ~7 m²
• Közlekedő: ~5 m²
• Lépcsőtér: ~3 m²
• Tároló: ~6 m²
Emelet (~64,06 m²):
• hálószoba: ~16 m²
• hálószoba: ~14 m²
• hálószoba: ~15 m²
• Fürdő 1: ~7 m²
• Fürdő 2: ~8 m²
• Emeleti közlekedő: ~4 m²

Beálló (autóparkoló):
• Mindkét lakáshoz saját, kényelmes kocsi beálló tartozik, ~25 m²/lakás.
Kert (zöldfelület):
• Lakásonként saját kert ~250–350 m² között, így bőven jut hely játszótérnek, kerti sütögetésnek vagy pihenésnek.

Gödöllő legpatinásabb környékén épül, ahol minden megtalálható, amire egy családnak szüksége lehet: posta, patika, óvoda, iskola, és az egyetem is mind a közelben van, mégis csendes, kertvárosi környezetben élhet az új tulajdonos.
Műszaki vállalást e-mailen keresztül továbbítom.
Igény esetén ügyvédi háttérrel, bank független pénzügyi tanácsadással, babaváró, CSOK és egyéb hitelek ügyintézésével segítem ügyfeleim ingatlanvásárlását.

Portfóliómban több hasonló, modern, minőségi új építésű ház és lakás is megtalálható – forduljon hozzám bizalommal, hogy segíthessek megtalálni az Ön számára tökéletes otthont!

Hirdetés feltöltve: 2025. 07. 04. Utoljára módosítva: 2025. 11. 01.

5 szobás ikerházak ára Gödöllőn

Ebből az összehasonlításból megtudhatod, hogyan viszonyul a lakás ára a környékbeli ikerházak átlagos árához. Ez nem azt jelenti, hogy ennyivel olcsóbb vagy drágább, mint amennyit a lakás ér, hanem hogy ennyivel tér el a környékbeli átlagtól.

Ennek a m² ára
Gödöllő m² ár
1014 e Ft
903 e Ft -12%
Ennek az ára
Gödöllő átlagár
150 M Ft m Ft
129.5 m Ft -16%

Az ingatlan elhelyezkedése

Cím: Gödöllő, földszint

Eladó ikerházak a környékről

Eladó ikerház
Eladó ikerház

Gödöllő

119.9 M Ft
4 szoba
110 m2
Eladó ikerház
Eladó ikerház

Tahitótfalu

88.9 M Ft
4 szoba
110 m2
Eladó ikerház
Eladó ikerház

Gödöllő

94.5 M Ft
4 szoba
128 m2
Eladó ikerház
Eladó ikerház

Üröm

249.9 M Ft
4 szoba
154 m2
Eladó ikerház
Eladó ikerház

Dunaharaszti

124.999 M Ft
4 szoba
105 m2
Eladó ikerház
Eladó ikerház

Gödöllő

85 M Ft
2 + 3 szoba
138 m2
Eladó ikerház
Eladó ikerház

Gödöllő

79.99 M Ft
5 szoba
139 m2
Eladó ikerház
Eladó ikerház

Gödöllő

164 M Ft
4 szoba
152 m2
Eladó ikerház
Eladó ikerház

Pécel

149.9 M Ft
5 szoba
306 m2
Eladó ikerház
Eladó ikerház

Szentendre, Szentendre

398 M Ft
5 szoba
267 m2
Eladó ikerház
Eladó ikerház

Vác

96.5 M Ft
4 + 1 szoba
129 m2
Eladó ikerház
Eladó ikerház

Gödöllő

109.9 M Ft
4 szoba
103 m2
Eladó ikerház
Eladó ikerház

Gödöllő

119.9 M Ft
4 szoba
100 m2
Eladó ikerház
Eladó ikerház

Vác

175.356 M Ft
5 szoba
165 m2
Eladó ikerház
Eladó ikerház

Érd, Érdligeten található utca

64.9 M Ft
4 szoba
112 m2
Eladó ikerház
Eladó ikerház

Gödöllő, Kertváros, Gödöllő - Pest megye

144.65 M Ft
3 + 2 szoba
120 m2
Eladó ikerház
Eladó ikerház

Vác

94.5 M Ft
4 + 1 szoba
126 m2
Eladó ikerház
Eladó ikerház

Pusztazámor

55 M Ft
10 szoba
470 m2
Eladó ikerház
Eladó ikerház

Diósd

213.46 M Ft
5 szoba
186 m2
Eladó ikerház
Eladó ikerház

Szentendre

359 M Ft
5 szoba
289 m2
Eladó ikerház
Eladó ikerház

Gödöllő

94.5 M Ft
4 szoba
128 m2
Eladó ikerház
Eladó ikerház

Gödöllő

144.65 M Ft
5 szoba
137 m2
Eladó ikerház
Eladó ikerház

Solymár

150 M Ft
4 + 2 szoba
252 m2
Eladó ikerház
Eladó ikerház

Mogyoród, Fóti út

188 M Ft
6 szoba
182 m2

Falusi CSOK ingatlanok

Eladó családi ház
Eladó családi ház

Tab

46.9 M Ft
4 szoba
173 m2
Eladó családi ház
Eladó családi ház

Törtel

32 M Ft
2 szoba
67 m2
Eladó családi ház
Eladó családi ház

Dunaegyháza

34.6 M Ft
3 szoba
70 m2
Eladó családi ház
Eladó családi ház

Egyházaskozár

59 M Ft
4 szoba
162 m2
Eladó családi ház
Eladó családi ház

Ságvár

59.9 M Ft
3 szoba
87 m2
Eladó családi ház
Eladó családi ház

Vaskút, Damjanich János utca

16.5 M Ft
3 szoba
100 m2
Eladó családi ház
Eladó családi ház

Jászjákóhalma

23 M Ft
3 szoba
113 m2
Eladó családi ház
Eladó családi ház

Ágasegyháza

29.7 M Ft
3 szoba
75 m2