City Pearl

Eladó ikerház
Gödöllő, földszint

144 900 000 Ft144.9 M Ft 1 260 000 Ft/m2
4 szoba
115 m2
földszint
építés éve:2026

Részletes adatok

Telekméret: 500 m2
Fűtés: Egyéb
Parkolás: Kocsibeálló
Közmű: Víz, Gáz, Villany, Csatorna
Energetikai besorolás: Nem adta meg a hirdető

Az OTP Bank lakáshitel ajánlataFizetett hirdetés

+36 70 396
Kómár-Benke Nikoletta
referens

Érdekel az OTP Bank kedvezményes lakáshitel ajánlata? *

* A kérdésre „Igen” válasz bejelölése esetén, az „Üzenet küldése” gombra kattintva kijelentem, hogy az OTP Bank Nyrt. Adatkezelési tájékoztatójának tartalmát megismertem és tudomásul vettem.

Eladó ikerház leírása

Új építésű, különálló ikerház Gödöllő-Csanakon, 960 m²-es telken!
Eladó Gödöllő egyik legkedveltebb, kertvárosi részén, Csanakon, egy új építésű, kétlakásos ikerház, amelyben a két lakás teljesen különálló, saját telekrésszel, külön bejárattal, kertrésszel és gépkocsibeállóval rendelkezik.
A modern épület két önálló családi házként funkcionál – nincs közös fal, nincs közös használatú terület, így a privát szféra maximálisan biztosított!

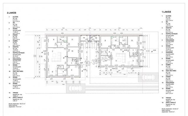
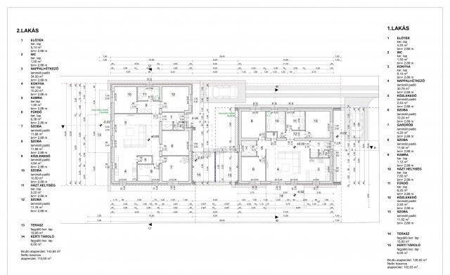
1. lakás
•Bruttó alapterület: 134,52 m²
•Nettó hasznos alapterület: 102,03 m²
•Terasz: 19,95 m²
•Kerti tároló: 4,90 m²
Helyiségek:
Előtér, 2 fürdőszoba, konyha, nappali + étkező, közlekedő, kamra, háztartási helyiség, 3 hálószoba, gardrób, terasz, kerti tároló.

2. lakás
•Bruttó alapterület: 150,72 m²
•Nettó hasznos alapterület: 115,12 m²
•Terasz: 15,95 m²
•Kerti tároló: 4,90 m²
Helyiségek:
Előtér, 2 fürdőszoba, konyha, nappali + étkező, közlekedő, kamra, háztartási helyiség, 3 hálószoba, gardrób, terasz, kerti tároló.
A tervekkel ellentétben a 2. lakást kocsibeállója jobb oldalon lesz.

Műszaki jellemzők
•Teherhordó falazat: zsalukő és tégla szerkezet
•Homlokzat: grafitos hőszigeteléssel ellátott
•Nyílászárók: műanyag, 3 rétegű üvegezéssel
•Fűtés: modern, energiatakarékos rendszer (tervezett hőszivattyú vagy kondenzációs kazán)
•Tető: nyeregtetős, korszerű fedéssel
•Parkolás: saját, térkövezett kocsi beálló

Környék és elhelyezkedés
Az ingatlan Gödöllő-Csanak egyik legjobb utcájában található, csendes, zöldövezeti környezetben, mégis közel a városközponthoz.
A környék aszfaltozott utcákkal, kiváló infrastruktúrával és jó közlekedéssel rendelkezik:
Budapest az M3-as autópályán 25-30 perc alatt elérhető, a busz- és vonatközlekedés is remek.
A közelben iskola, óvoda, bolt, gyógyszertár és sportolási lehetőségek is megtalálhatók.
Tökéletes választás családoknak, akik nyugodt, biztonságos környezetben, mégis a főváros közelében szeretnének élni.

Összegzés
Ez az új építésű projekt egyedülálló lehetőség Gödöllőn:
két teljesen különálló, modern, földszintes családi ház egy 960 m²-es telken,
átgondolt tervezéssel, kiváló minőségű kivitelezéssel,
és ideális elhelyezkedéssel a város egyik legkeresettebb részén kiváló kivitelező álltal.
Ára: 144,9 M Ft

Hirdetés feltöltve: 2025. 11. 13. Utoljára módosítva: 2025. 12. 03.

4 szobás ikerházak ára Gödöllőn

Ebből az összehasonlításból megtudhatod, hogyan viszonyul a lakás ára a környékbeli ikerházak átlagos árához. Ez nem azt jelenti, hogy ennyivel olcsóbb vagy drágább, mint amennyit a lakás ér, hanem hogy ennyivel tér el a környékbeli átlagtól.

Ennek a m² ára
Gödöllő m² ár
1260 e Ft
1051 e Ft -20%
Ennek az ára
Gödöllő átlagár
144.9 M Ft m Ft
137.8 m Ft -5%

Az ingatlan elhelyezkedése

Cím: Gödöllő, földszint

Eladó ikerházak a környékről

Eladó ikerház
Eladó ikerház

Pomáz

129.5 M Ft
4 szoba
100 m2
Eladó ikerház
Eladó ikerház

Szentendre

179 M Ft
5 + 1 szoba
147 m2
Eladó ikerház
Eladó ikerház

Pécel

149.9 M Ft
5 szoba
306 m2
Eladó ikerház
Eladó ikerház

Gödöllő

149.9 M Ft
5 szoba
126 m2
Eladó ikerház
Eladó ikerház

Gödöllő

79 M Ft
5 szoba
139 m2
Eladó ikerház
Eladó ikerház

Vác

96.5 M Ft
4 + 1 szoba
129 m2
Eladó ikerház
Eladó ikerház

Dunaharaszti

124.999 M Ft
4 szoba
105 m2
Eladó ikerház
Eladó ikerház

Gödöllő

94.5 M Ft
4 szoba
128 m2
Eladó ikerház
Eladó ikerház

Szentendre, Szentendre

398 M Ft
5 szoba
267 m2
Eladó ikerház
Eladó ikerház

Tahitótfalu

88.9 M Ft
4 szoba
110 m2
Eladó ikerház
Eladó ikerház

Gödöllő

94.5 M Ft
4 szoba
128 m2
Eladó ikerház
Eladó ikerház

Vác

175.356 M Ft
5 szoba
165 m2
Eladó ikerház
Eladó ikerház

Gödöllő

119.9 M Ft
4 szoba
110 m2
Eladó ikerház
Eladó ikerház

Rád

100 M Ft
4 szoba
152 m2
Eladó ikerház
Eladó ikerház

Pusztazámor

55 M Ft
10 szoba
470 m2
Eladó ikerház
Eladó ikerház

Mogyoród, Fóti út

188 M Ft
6 szoba
182 m2
Eladó ikerház
Eladó ikerház

Gödöllő

164 M Ft
4 szoba
152 m2
Eladó ikerház
Eladó ikerház

Gödöllő

124.9 M Ft
5 szoba
130 m2
Eladó ikerház
Eladó ikerház

Vác

175.356 M Ft
5 szoba
165 m2
Eladó ikerház
Eladó ikerház

Gödöllő

105 M Ft
4 szoba
110 m2
Eladó ikerház
Eladó ikerház

Diósd

213.46 M Ft
5 szoba
186 m2
Eladó ikerház
Eladó ikerház

Gödöllő

144.65 M Ft
5 szoba
137 m2
Eladó ikerház
Eladó ikerház

Solymár

150 M Ft
4 + 2 szoba
252 m2
Eladó ikerház
Eladó ikerház

Gödöllő, Kertváros, Gödöllő - Pest megye

144.65 M Ft
3 + 2 szoba
120 m2

Falusi CSOK ingatlanok

Eladó családi ház
Eladó családi ház

Hegyeshalom

85 M Ft
4 + 1 szoba
123 m2
Eladó családi ház
Eladó családi ház

Mezőfalva

39 M Ft
3 szoba
77 m2
Eladó családi ház
Eladó családi ház

Pannonhalma

76.4 M Ft
4 szoba
97 m2
Eladó családi ház
Eladó családi ház

Csatár

98.5 M Ft
2 + 3 szoba
110 m2
Eladó családi ház
Eladó családi ház

Örkény

36.5 M Ft
2 szoba
56 m2
Eladó családi ház
Eladó családi ház

Ceglédbercel, Iskola utca

89.99 M Ft
5 szoba
110 m2
Eladó családi ház
Eladó családi ház

Enese

72.025 M Ft
4 szoba
75 m2
Eladó családi ház
Eladó családi ház

Iváncsa

73.9 M Ft
1 + 3 szoba
97 m2