Avico Greentop

Eladó családi ház
Bag

Figyelem!

Ez az ingatlan a 2019.07.01-től induló falusi CSOK által támogatott településen található

+ 17 kép 1/20
116 000 000 Ft116 M Ft 783 784 Ft/m2
5 + 1 szoba
148 m²
építés éve:1980

Részletes adatok

Állapot: Felújított
Telekméret: 1051 m2
Fűtés: Gázkazán
Energetikai besorolás: D

Az OTP Bank lakáshitel ajánlataFizetett hirdetés

+36 30 966
Molnár Tamás
Budapest XI. kerület OTP Ingatlanpont

Érdekel az OTP Bank kedvezményes lakáshitel ajánlata? *

* A kérdésre „Igen” válasz bejelölése esetén, az „Üzenet küldése” gombra kattintva kijelentem, hogy az OTP Bank Nyrt. Adatkezelési tájékoztatójának tartalmát megismertem és tudomásul vettem.

Eladó családi ház leírása

KÉNYELEM, TÁGAS LAKÓKÖRNYEZET ÉS TOVÁBBI LEHETŐSÉGEK BUDAPEST KÖZELÉBEN

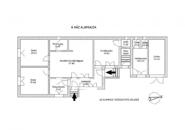
Budapest vonzáskörzetében, Bag település központi részéhez közel, eladó egy 148 nm-es, 5 + 1 félszobás, duplakomfortos, kiváló állapotú lakóház, amely egy 1051 nm-es telken helyezkedik el.

A lakóterület kényelmes, tágas beosztású, központjában a nagy amerikai konyhás nappalival. Innen nyílnak a szobák és a fürdőszoba. A belső kialakítás igényes és harmonikus, szép színekkel és anyagokkal. Van két külön vendégszoba is, saját fürdővel. Ezek közül az egyik kialakítása még folyamatban van.

A fűtést gázcirkó kazán biztosítja, de van több fatüzelésű cserépkályha is.

A lakóházat néhány éve teljesen felújították. Ennek során, többek között, új burkolatokat, hőszigetelt műanyag ablakokat, külső dryvit szigetelést is kapott az épület.

Riasztórendszer, biztonsági ajtók és redőnyök védik a házat. A gépkocsibejáró kapuja pedig távműködésű.

A külső környezet is igényes, amelynek a ház körüli díszkert, valamint a díszburkolattal ellátott gépkocsi felhajtó is részét képezi.

Az épület alatt 16 nm-es, poroszsüveg boltozatos pince van. Ezen túlmenően egy 76 nm-es gazdasági épület kínál további lehetőségeket. Így összesen két garázs és további két kocsibeálló áll rendelkezésre. A padlástér beépíthető, így tovább növelhető a hasznosítható terület.

Minden közmű be van vezetve és van egy fúrt kút is.

Az ingatlan környezetének az ellátottsága nagyon jó; bevásárlási lehetőségek, bölcsőde, óvoda és általános iskola. Az M3-as autópályán Budapest fél óra alatt elérhető. Bag települést továbbá a Budapest-Sátoraljaújhely vasútvonal is érinti, amely közlekedési szempontból szintén fontos adottság.

Ez az igényes, kiváló állapotú, sok szempontból egyedi tulajdonságokkal rendelkező ingatlan kedvező választás lehet mindazoknak, akik Budapest közelében maradva, egy új életstílust szeretnének megvalósítani.

További információkért és megtekintéssel kapcsolatban, a hét bármely napján, keressen bizalommal.

Referencia szám: M222487

Hirdetés feltöltve: 2026. 04. 20. Utoljára módosítva: 2026. 05. 10.

Az ingatlan elhelyezkedése

Cím: Bag

Eladó családi házak a környékről

Tápiószentmárton
Eladó családi ház

Tápiószentmárton

7.9 M Ft
2 + 1 szoba
86 m²
Kerepes
Eladó családi ház

Kerepes

81.99 M Ft
5 szoba
102 m²
Bag
Eladó családi ház

Bag

16.9 M Ft
6 szoba
160 m²
Bag
Eladó családi ház

Bag

86 M Ft
3 szoba
86 m²
Tápiószele
Eladó családi ház

Tápiószele

18.9 M Ft
4 szoba
68 m²
Érd, Érdliget - Kutyavár, Érd-liget
Eladó családi ház

Érd

230 M Ft
7 szoba
280 m²
Bag
Eladó családi ház

Bag

59.9 M Ft
3 szoba
95 m²
Budakeszi, Makkosmária
Eladó családi ház

Budakeszi

100 M Ft
1 szoba
10 m²
Bag, Liget utca
Eladó családi ház

Bag

15 M Ft
3 szoba
90 m²
Pécel, Reményik Sándor utca
Eladó családi ház

Pécel

296 M Ft
6 szoba
396 m²
Tápiószőlős
Eladó családi ház

Tápiószőlős

34.9 M Ft
5 szoba
210 m²
Budaörs
Eladó családi ház

Budaörs

400 M Ft
12 szoba
583 m²
Nagykáta
Eladó családi ház

Nagykáta

130 M Ft
3 szoba
203 m²
Kerepes
Eladó családi ház

Kerepes

199 M Ft
6 szoba
360 m²
Bag
Eladó családi ház

Bag

35 M Ft
2 szoba
26 m²
Bag
Eladó családi ház

Bag

33.9 M Ft
3 szoba
80 m²
Zebegény
Eladó családi ház

Zebegény

69.9 M Ft
6 szoba
245 m²
Bag
Eladó családi ház

Bag

43 M Ft
3 szoba
80 m²
Bag
Eladó családi ház

Bag

35 M Ft
2 szoba
26 m²
Budakeszi
Eladó családi ház

Budakeszi

130 M Ft
5 szoba
30 m²
Bag
Eladó családi ház

Bag

16.9 M Ft
6 szoba
160 m²
Bag
Eladó családi ház

Bag

81 M Ft
6 + 1 szoba
194 m²
Érd
Eladó családi ház

Érd

164.9 M Ft
5 szoba
192 m²
Bag
Eladó családi ház

Bag

86 M Ft
3 szoba
86 m²

Falusi CSOK ingatlanok

Zagyvarékas, Erdő utca 16
Eladó családi ház

Zagyvarékas

0.1 M Ft
2 szoba
113 m²
Balatonkenese
Eladó családi ház

Balatonkenese

165.7 M Ft
2 + 4 szoba
179 m²
Fonyód
Eladó téglalakás

Fonyód

175 M Ft
3 szoba
79 m²
Szamosszeg
Eladó családi ház

Szamosszeg

55 M Ft
4 szoba
240 m²
Beremend, 7827 Beremend, Petőfi Sándor utca 10
Eladó családi ház

Beremend

11.95 M Ft
1 + 1 szoba
124 m²
Egerbakta
Eladó családi ház

Egerbakta

43.9 M Ft
5 + 1 szoba
160 m²
Csány, Központi elhelyezkedés
Eladó családi ház

Csány

48.5 M Ft
3 szoba
97 m²
Kunadacs
Eladó családi ház

Kunadacs

80 M Ft
4 szoba
148 m²

Falusi CSOK ingatlanok

Nagyszénás
Eladó családi ház

Nagyszénás

14 M Ft
3 szoba
81 m²
Fonyód
Eladó téglalakás

Fonyód

175 M Ft
3 szoba
79 m²
Maroslele
Eladó családi ház

Maroslele

28.9 M Ft
2 + 1 szoba
65 m²
Jánosháza
Eladó családi ház

Jánosháza

32 M Ft
2 szoba
116 m²
Kőröshegy
Eladó családi ház

Kőröshegy

98.9 M Ft
5 szoba
104 m²
Berzence
Eladó családi ház

Berzence

40 M Ft
3 szoba
233 m²
Segesd
Eladó családi ház

Segesd

15.8 M Ft
3 szoba
100 m²
Pannonhalma
Eladó téglalakás

Pannonhalma

68 M Ft
4 szoba
153 m²