Aerogate Homes

Eladó ikerház
Gárdony

+ 13 kép 1/16
115 000 000 Ft115 M Ft 934 959 Ft/m2
1 + 3 szoba
123 m²
építés éve:2025

Részletes adatok

Telekméret: 251 m2
Fűtés: Egyéb
Energetikai besorolás: Nem adta meg a hirdető

Az OTP Bank lakáshitel ajánlataFizetett hirdetés

+36 30 989
Keszthelyi László
Szigetszentmiklós OTP Ip

Érdekel az OTP Bank kedvezményes lakáshitel ajánlata? *

* A kérdésre „Igen” válasz bejelölése esetén, az „Üzenet küldése” gombra kattintva kijelentem, hogy az OTP Bank Nyrt. Adatkezelési tájékoztatójának tartalmát megismertem és tudomásul vettem.

Eladó ikerház leírása

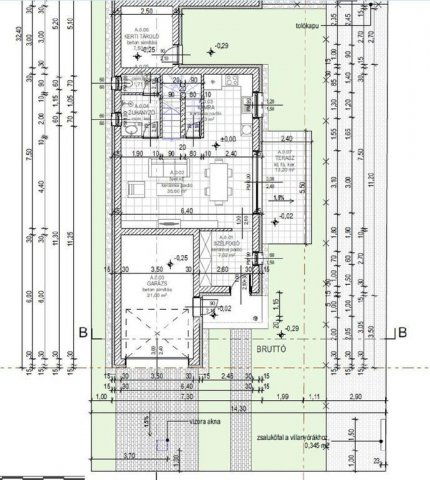
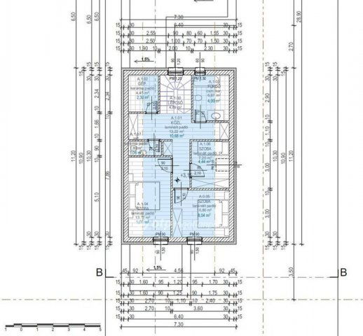
Fejér megye, Gárdony 123 nm-es új építésű ikerház fele eladó 251 nm-es saját kerttel.

A tégla falazatú, szigetelt ingatlan a település központjához közel, mégis csendes környezetben található. A kulcsrakész állapot várható átadása 2026. április vége.

A modern házban tágas amerikai konyhás nappali, 3 félszoba, kamra, 2 fürdőszoba, 1 külön WC, gépészeti helyiség található, valamint tartozik hozzá 21 nm-es garázs, 13,2 nm-es terasz és 7,5 nm-es kerti tároló. A lakóegységek a kerti tárolónál csatlakoznak.

Az épület B30-as téglából, 15 cm-es homlokzati, 30 cm-es födém szigeteléssel épült. Az összes nyílászáró 3 rétegű fa, redőnnyel és szúnyoghálóval felszerelt. Fűtése környezetbarát, energiatakarékos hőszivattyús rendszer, fűtés padlófűtéses hőleadással, mennyezeti hűtéssel. A házban még a beltéri ajtók, minden belső falszín, burkolat színe és mintája választható.

A vételár tartalmazza a kulcsrakész állapotot, kerítéssel, elektromos garázskapuval, térkövezéssel. A közelben iskola, bevásárlási lehetőségek, orvosi rendelő, polgármesteri hivatal, posta, vasútállomás és a tópart. Jól átgondolt, élhető terekkel megálmodott, a legújabb rendszerek felhasználásával készülő ingatlan megvásárlásával egyszerre teremthet egy igényes, stílusos és barátságos otthont.

Hirdetés feltöltve: 2026. 02. 25. Utoljára módosítva: 2026. 04. 01.

Az ingatlan elhelyezkedése

Cím: Gárdony

Eladó ingatlanok a környékről

Úrhida
Eladó ikerház

Úrhida

39.9 M Ft
4 szoba
91 m²
Sárszentmihály
Eladó ikerház

Sárszentmihály

61.5 M Ft
3 szoba
73 m²
Ercsi
Eladó ikerház

Ercsi

60 M Ft
4 szoba
85 m²
Ercsi
Eladó ikerház

Ercsi

55 M Ft
4 szoba
122 m²
Székesfehérvár
Eladó ikerház

Székesfehérvár

119.5 M Ft
4 szoba
176 m²
Ercsi
Eladó ikerház

Ercsi

65 M Ft
4 szoba
101 m²
Ercsi
Eladó ikerház

Ercsi

51.99 M Ft
3 szoba
77 m²
Dunaújváros
Eladó panellakás

Dunaújváros

38 M Ft
2 szoba
53 m²
Gárdony
Eladó ikerház

Gárdony

39 M Ft
4 szoba
70 m²
Székesfehérvár
Eladó ikerház

Székesfehérvár

99 M Ft
4 szoba
92 m²
Gárdony
Eladó ikerház

Gárdony

79.9 M Ft
4 szoba
73 m²
Gárdony
Eladó ikerház

Gárdony

115 M Ft
1 + 3 szoba
123 m²
Kápolnásnyék
Eladó ikerház

Kápolnásnyék

132.6 M Ft
1 + 3 szoba
156 m²
Vértesacsa
Eladó családi ház

Vértesacsa

39.99 M Ft
2 szoba
50 m²
Ercsi
Eladó ikerház

Ercsi

51.99 M Ft
3 szoba
77 m²
Bicske, Losonczy utca
Eladó családi ház

Bicske

36.5 M Ft
2 szoba
90 m²
Kápolnásnyék
Eladó ikerház

Kápolnásnyék

118.6 M Ft
1 + 4 szoba
135 m²
Tordas
Eladó ikerház

Tordas

87 M Ft
2 + 2 szoba
92 m²
Székesfehérvár
Eladó ikerház

Székesfehérvár

110 M Ft
4 szoba
120 m²
Gárdony
Eladó ikerház

Gárdony

69 M Ft
3 + 1 szoba
160 m²
Iváncsa
Eladó telek

Iváncsa

11.99 M Ft
1150 m²
Székesfehérvár
Eladó panellakás

Székesfehérvár

61 M Ft
1 + 3 szoba
67 m²
Gárdony
Eladó ikerház

Gárdony

115 M Ft
3 + 1 szoba
123 m²
Tordas
Eladó ikerház

Tordas

73.5 M Ft
1 + 2 szoba
71 m²

Falusi CSOK ingatlanok

Vasvár
Eladó téglalakás

Vasvár

40.4 M Ft
2 szoba
0 m²
Ceglédbercel
Eladó családi ház

Ceglédbercel

65.9 M Ft
3 szoba
97 m²
Szentmártonkáta
Eladó családi ház

Szentmártonkáta

95 M Ft
5 + 1 szoba
152 m²
Gádoros
Eladó családi ház

Gádoros

25.5 M Ft
4 szoba
140 m²
Kerkabarabás
Eladó családi ház

Kerkabarabás

28 M Ft
2 + 1 szoba
0 m²
Tápióbicske
Eladó családi ház

Tápióbicske

83 M Ft
3 szoba
160 m²
Földeák, Béke utca
Eladó családi ház

Földeák

86 M Ft
7 szoba
357 m²
Ambrózfalva
Eladó családi ház

Ambrózfalva

26.9 M Ft
5 szoba
194 m²