Astora Olive Club House

Eladó ikerház
Gárdony

+ 13 kép 1/16
115 000 000 Ft115 M Ft 934 959 Ft/m2
1 + 3 szoba
123 m²
építés éve:2025

Részletes adatok

Telekméret: 251 m2
Fűtés: Egyéb
Komfort: Összkomfortos
Energetikai besorolás: A+

Az OTP Bank lakáshitel ajánlataFizetett hirdetés

+36 70 681
Pap Éva Zsuzsanna
OTPip - Érd Bajcsy-Zsilinszky út 160 - OTP Ingatlanpont Iroda

Érdekel az OTP Bank kedvezményes lakáshitel ajánlata? *

* A kérdésre „Igen” válasz bejelölése esetén, az „Üzenet küldése” gombra kattintva kijelentem, hogy az OTP Bank Nyrt. Adatkezelési tájékoztatójának tartalmát megismertem és tudomásul vettem.

Eladó ikerház leírása

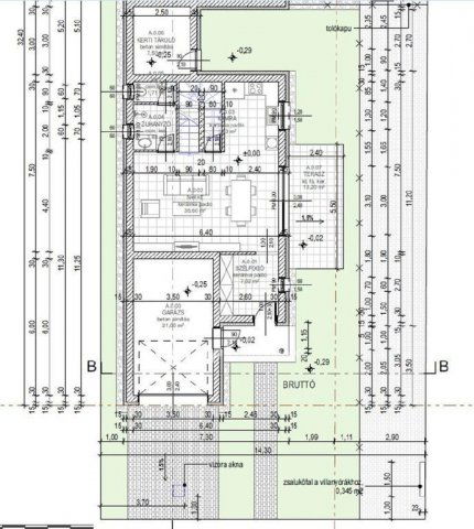
Fejér megye, Gárdony 123 nm-es új építésű ikerház fele eladó 251 nm-es saját kerttel. A tégla falazatú, szigetelt ingatlan a település központjához közel, mégis csendes környezetben található. A kulcsrakész állapot várható átadása 2026. április vége. Az modern házban tágas amerikai konyhás nappali, 3 félszoba, kamra, 2 fürdőszoba, 1 külön WC, gépészeti helyiség található, valamint tartozik hozzá 21 nm-es garázs, 13,2 nm-es terasz és 7,5 nm-es kerti tároló. A lakóegységek a kerti tárolónál csatlakoznak. Az épület B30-as téglából, 15 cm-es homlokzati, 30 cm-es födém szigeteléssel épült. Az összes nyílászáró 3 rétegű fa, redőnnyel és szúnyoghálóval felszerelt. Fűtése környezetbarát, energiatakarékos hőszivattyús rendszer, fűtés padlófűtéses hőleadással, mennyezeti hűtéssel. A házban még a beltéri ajtók, minden belső falszín, burkolat színe és mintája választható. A vételár tartalmazza a kulcsrakész állapotot, kerítéssel, elektromos garázskapuval, térkövezéssel. A közelben iskola, bevásárlási lehetőségek, orvosi rendelő, polgármesteri hivatal, posta, vasútállomás és a tópart. Jól átgondolt, élhető terekkel megálmodott, a legújabb rendszerek felhasználásával készülő ingatlan megvásárlásával egyszerre teremthet egy igényes, stílusos és barátságos otthont. Teljes körű ügyintézésben segítjük ügyfeleinket díjtalanul: Falusi CSOK, CSOK igénylése, kedvezményes hitel mobil bankári szolgáltatással, adásvétel teljes lebonyolításával. Bővebb információkért, kérem keressen bizalommal.

Hirdetés feltöltve: 2026. 02. 12. Utoljára módosítva: 2026. 05. 12.

Az ingatlan elhelyezkedése

Cím: Gárdony

Eladó ingatlanok a környékről

Gárdony
Eladó ikerház

Gárdony

115 M Ft
1 + 3 szoba
123 m²
Gárdony
Eladó ikerház

Gárdony

115 M Ft
1 + 3 szoba
123 m²
Kápolnásnyék
Eladó családi ház

Kápolnásnyék

65 M Ft
2 + 1 szoba
74 m²
Velence
Eladó hotel

Velence

990 M Ft
2400 m²
Tordas
Eladó ikerház

Tordas

87 M Ft
2 + 2 szoba
92 m²
Ercsi
Eladó ikerház

Ercsi

65 M Ft
4 szoba
105 m²
Sárszentmihály
Eladó ikerház

Sárszentmihály

61.5 M Ft
3 szoba
73 m²
Szabadbattyán
Eladó telek

Szabadbattyán

14.9 M Ft
1700 m²
Székesfehérvár
Eladó panellakás

Székesfehérvár

50.9 M Ft
2 szoba
51 m²
Gárdony
Eladó ikerház

Gárdony

39 M Ft
4 szoba
70 m²
Ercsi
Eladó ikerház

Ercsi

55 M Ft
4 szoba
122 m²
Gárdony
Eladó ikerház

Gárdony

39 M Ft
4 szoba
70 m²
Gárdony
Eladó ikerház

Gárdony

69 M Ft
3 + 1 szoba
160 m²
Gárdony
Eladó ikerház

Gárdony

39 M Ft
4 szoba
70 m²
Ercsi
Eladó ikerház

Ercsi

51.99 M Ft
3 szoba
77 m²
Tordas
Eladó ikerház

Tordas

73.5 M Ft
1 + 2 szoba
71 m²
Gárdony
Eladó ikerház

Gárdony

39 M Ft
4 szoba
70 m²
Vál, Külterület
Eladó nyaraló

Vál

45 M Ft
3 szoba
90 m²
Kápolnásnyék
Eladó ikerház

Kápolnásnyék

132.6 M Ft
1 + 3 szoba
156 m²
Úrhida
Eladó ikerház

Úrhida

39.9 M Ft
4 szoba
91 m²
Tordas
Eladó ikerház

Tordas

73.5 M Ft
1 + 2 szoba
71 m²
Gárdony
Eladó ikerház

Gárdony

94.999 M Ft
1 + 4 szoba
89 m²
Gárdony
Eladó ikerház

Gárdony

39 M Ft
4 szoba
70 m²
Tordas
Eladó ikerház

Tordas

73.5 M Ft
1 + 2 szoba
71 m²

Falusi CSOK ingatlanok

Pócsa
Eladó családi ház

Pócsa

29.9 M Ft
4 szoba
113 m²
Parád
Eladó családi ház

Parád

25 M Ft
2 szoba
80 m²
Mikebuda
Eladó családi ház

Mikebuda

45.9 M Ft
7 szoba
120 m²
Levelek
Eladó családi ház

Levelek

74 M Ft
6 + 1 szoba
190 m²
Badacsonytördemic
Eladó családi ház

Badacsonytördemic

86 M Ft
4 szoba
110 m²
Balatonszemes
Eladó családi ház

Balatonszemes

95 M Ft
4 szoba
82 m²
Pinnye, Kossuth Lajos utca
Eladó családi ház

Pinnye

55 M Ft
2 szoba
89 m²
Csabacsűd
Eladó családi ház

Csabacsűd

21 M Ft
3 szoba
125 m²