River Life

Eladó ikerház
Dunaharaszti

+ 13 kép 1/16
177 000 000 Ft177 M Ft 917 098 Ft/m2
5 szoba
193 m2
építés éve:2026

Részletes adatok

Telekméret: 548 m2
Fűtés: Egyéb
Parkolás: Garázs
Energetikai besorolás: Nem adta meg a hirdető

Az OTP Bank lakáshitel ajánlataFizetett hirdetés

+36 30 397
Göbölyös Ágnes
referens

Érdekel az OTP Bank kedvezményes lakáshitel ajánlata? *

* A kérdésre „Igen” válasz bejelölése esetén, az „Üzenet küldése” gombra kattintva kijelentem, hogy az OTP Bank Nyrt. Adatkezelési tájékoztatójának tartalmát megismertem és tudomásul vettem.

Eladó ikerház leírása

Tópark Lakópark Dunaharaszti!

Exkluzív, tó köré épülő lakóparkban kínálunk megvételre prémium kivitelű ikerházfeleket, ahol a modern otthon és a nyugodt, természetközeli életstílus találkozik.

A 38 hektáros, zárt lakópark egyedülálló szolgáltatásokat biztosít lakói számára, valódi resort hangulatot teremtve a mindennapokban.

Lakóparki szolgáltatások
• étterem
• wakeboard pálya
• homokos strand és napozó sziget
• kivilágított futópálya
• portaszolgálat
• horgászási lehetőség
• privát sportközpont
(kondipark, tenisz-, lábtenisz- és grundfoci-pálya)
• játszótér
• kutyafuttató

Az ingatlanról:

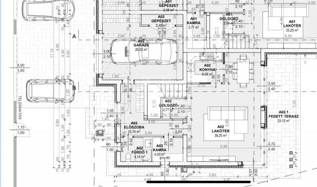
Az ikerházfelek belső elrendezése

A földszinten tágas előszoba, külön dolgozószoba, vendégfürdő, kamra és garázs mellett egy világos, nagy egybenyitott nappali–étkező–konyha kapott helyet, amely közvetlen kapcsolatban áll a fedett terasszal és a kerttel, ideális teret adva a mindennapi együttlétekhez.

Az emeleti szint teljes egészében a pihenést szolgálja: négy hálószoba, három fürdőszoba, közlekedő és erkély biztosítja a kényelmes, jól szeparált privát életteret minden családtag számára.

A terven még nem látható, de az autóbeállók fölé 1-1 szoba kialakításra kerül.

1.-es ikerházfél:
nettó lakótér: 160 m²
terasz + erkély: 50 m²
Ára: 177.000.000 Ft

2.-es ikerházfél:
nettó lakótér: 170 m²
terasz + erkély: 46m²
Ára: 177.000.000 Ft

Az ikerházfelek önálló rendeltetési egységként, 548 nm saját telekrésszel, garázzsal, fedett terasszal és erkéllyel kerülnek kialakításra.

️ Műszaki leírás

Modern, földszint + emeletes ikerház Porotherm N+F falazattal, monolit vasbeton födémmel és sávalapozással épül.
A homlokzat 15 cm hőszigeteléssel, korszerű többrétegű hőszigetelt nyílászárókkal készül.

A fűtést hőszivattyús rendszerű elektromos padlófűtés, a hűtést klímaberendezés biztosítja.
Az ingatlan okosotthon-rendszerrel, légtechnikai rendszerrel, valamint napelem-előkészítéssel kerül kialakításra.

Elhelyezkedés

TESCO, ALDI, LIDL és KFC 3 percen belül elérhető.
Az M0-s autóút gyorsan megközelíthető, Budapest kb. 10 km távolságra található.

AZ ADATOK TÁJÉKOZTATÓ JELLEGŰEK!

Irodánk 30 éves szakmai tapasztalattal áll ügyfelei rendelkezésére.
Várom szíves megkeresését. ...TOVÁBBI, TÖBBEZRES INGATLAN KÍNÁLAT: www.gdn-ingatlan.hu - GDN azonosító: 391877

Hirdetés feltöltve: 2026. 01. 25. Utoljára módosítva: 2026. 01. 25.

5 szobás ikerházak ára Dunaharasztin

Ebből az összehasonlításból megtudhatod, hogyan viszonyul a lakás ára a környékbeli ikerházak átlagos árához. Ez nem azt jelenti, hogy ennyivel olcsóbb vagy drágább, mint amennyit a lakás ér, hanem hogy ennyivel tér el a környékbeli átlagtól.

Ennek a m² ára
Dunaharaszti m² ár
917 e Ft
1068 e Ft 14%
Ennek az ára
Dunaharaszti átlagár
177 M Ft m Ft
153.1 m Ft -16%

Az ingatlan elhelyezkedése

Cím: Dunaharaszti

Eladó ikerházak a környékről

Eladó ikerház
Eladó ikerház

Dunaharaszti

149.9 M Ft
7 szoba
200 m2
Eladó ikerház
Eladó ikerház

Dunaharaszti

123.9 M Ft
5 szoba
125 m2
Eladó ikerház
Eladó ikerház

Dunaharaszti

146 M Ft
4 szoba
157 m2
Eladó ikerház
Eladó ikerház

Dunaharaszti

119.999 M Ft
430 m²
105 m2
Eladó ikerház
Eladó ikerház

Üröm

220 M Ft
4 szoba
130 m2
Eladó ikerház
Eladó ikerház

Vác

149.9 M Ft
5 szoba
202 m2
Eladó ikerház
Eladó ikerház

Dunaharaszti

159.9 M Ft
5 szoba
150 m2
Eladó ikerház
Eladó ikerház

Pomáz

129.5 M Ft
4 szoba
100 m2
Eladó ikerház
Eladó ikerház

Vác

96.7 M Ft
4 + 1 szoba
126 m2
Eladó ikerház
Eladó ikerház

Dunaharaszti

165 M Ft
4 szoba
163 m2
Eladó ikerház
Eladó ikerház

Pécel, Pécel - kertváros

127 M Ft
4 szoba
125 m2
Eladó ikerház
Eladó ikerház

Vác

99.7 M Ft
4 + 1 szoba
129 m2
Eladó ikerház
Eladó ikerház

Dunaharaszti

137.5 M Ft
4 szoba
92 m2
Eladó ikerház
Eladó ikerház

Dunakeszi

149 M Ft
1 + 4 szoba
127 m2
Eladó ikerház
Eladó ikerház

Szentendre

718 M Ft
10 + 2 szoba
578 m2
Eladó ikerház
Eladó ikerház

Dunaharaszti

137.5 M Ft
4 szoba
92 m2
Eladó ikerház
Eladó ikerház

Dunaharaszti

137.5 M Ft
4 szoba
92 m2
Eladó ikerház
Eladó ikerház

Veresegyház

145 M Ft
4 szoba
120 m2
Eladó ikerház
Eladó ikerház

Dunaharaszti

137.5 M Ft
4 szoba
92 m2
Eladó ikerház
Eladó ikerház

Dunaharaszti

139 M Ft
4 szoba
112 m2
Eladó ikerház
Eladó ikerház

Dunaharaszti

145 M Ft
6 szoba
170 m2
Eladó ikerház
Eladó ikerház

Dunaharaszti

137.5 M Ft
4 szoba
92 m2
Eladó ikerház
Eladó ikerház

Pécel, Pécel

144.9 M Ft
6 szoba
200 m2
Eladó ikerház
Eladó ikerház

Dunaharaszti

145 M Ft
5 szoba
158 m2

Falusi CSOK ingatlanok

Eladó családi ház
Eladó családi ház

Hosszúpereszteg

35 M Ft
4 szoba
145 m2
Eladó családi ház
Eladó családi ház

Balatonudvari

79.9 M Ft
4 szoba
97 m2
Eladó családi ház
Eladó családi ház

Tápiószőlős

14.9 M Ft
2 szoba
67 m2
Eladó családi ház
Eladó családi ház

Nagyhegyes

80 M Ft
2 szoba
94 m2
Eladó ikerház
Eladó ikerház

Bodajk

64.9 M Ft
5 szoba
90 m2
Eladó családi ház
Eladó családi ház

Bugac

34.4 M Ft
3 szoba
70 m2
Eladó családi ház
Eladó családi ház

Szarvaskend

26.9 M Ft
2 szoba
83 m2
Eladó családi ház
Eladó családi ház

Bozsok

290 M Ft
6 szoba
370 m2