Eladó ikerház
Csörög

+ 7 kép 1/10
99 900 000 Ft99.9 M Ft 916 514 Ft/m2
4 szoba
109 m2
építés éve:2026

Részletes adatok

Telekméret: 410 m2
Fűtés: Egyéb
Parkolás: Kocsibeálló
Közmű: Víz, Villany, Csatorna, Szélessáv
Energetikai besorolás: Nem adta meg a hirdető

Az OTP Bank lakáshitel ajánlataFizetett hirdetés

+36 20 249
Gajdos Gábor
referens

Érdekel az OTP Bank kedvezményes lakáshitel ajánlata? *

* A kérdésre „Igen” válasz bejelölése esetén, az „Üzenet küldése” gombra kattintva kijelentem, hogy az OTP Bank Nyrt. Adatkezelési tájékoztatójának tartalmát megismertem és tudomásul vettem.

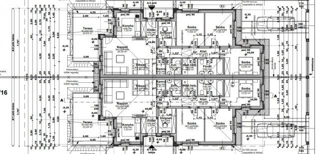
Eladó ikerház leírása

Kedves Érdeklődő!

Megvételre kínálok Csörögön a lakóparkban megépülő, ÚJ építésű ikerház lakásait!

Az ingatlan építése már elkezdődött, jövő év II. negyedévében várható az átadása.

Az ingatlan nappali+3 szobás alaprajzzal épül meg, minden helyiség nagyméretű tágas, így akár nagyobb családok számára is ideális választás lehet!

A ház tégla építésű, tégla válaszfalakkal, betoncserép fedéssel épül meg. Korszerű energetikailag hatékony nyílászárók és a hőszigetelő rendszer mellett a fűtésről és a melegvízről hőszivattyú fog gondoskodni padlófűtéssel, így egy kedvező rezsivel fentartható modern otthon tulajdonosa lehet.

Az ingatlan kulcsrakész kivitelezéssel épül meg, választható beltéri ajtókkal, szaniterekkel, burkolatokkal és még sok egyébben. Várható energetikai besorolás A+ lesz.

Kerítések, járdák autóbeálló a vételárban benne vannak.

A házat régóta piacon lévő kivitelező cég építi, közelben több referencia is megtekinthető.

A ház természetesen hitelezhető, CSOK+, babaváró, 3%-os hitel igényelhető rá, ügyintézésben segítünk!

Ha szeretné az ingatlant megtekinteni, vagy kérdése lenne kérem keressen, akár hétvégén is.

Hirdetés feltöltve: 2025. 10. 07. Utoljára módosítva: 2025. 10. 07.

Az ingatlan elhelyezkedése

Cím: Csörög

Eladó ingatlanok a környékről

Eladó ikerház
Eladó ikerház

Szentendre, Szentendre

398 M Ft
5 szoba
267 m2
Eladó ikerház
Eladó ikerház

Pilisjászfalu

70.563 M Ft
4 szoba
61 m2
Eladó ikerház
Eladó ikerház

Göd

110 M Ft
5 szoba
140 m2
Eladó ikerház
Eladó ikerház

Veresegyház

145 M Ft
4 szoba
120 m2
Eladó családi ház
Eladó családi ház

Dömsöd

32.9 M Ft
3 szoba
59 m2
Eladó panellakás
Eladó panellakás

Százhalombatta

58 M Ft
2 szoba
50 m2
Eladó telek
Eladó telek

Monorierdő

4.5 M Ft
695 m²
Eladó ikerház
Eladó ikerház

Csörög

99.9 M Ft
4 szoba
107 m2
Eladó ikerház
Eladó ikerház

Csörög

90.9 M Ft
4 szoba
88 m2
Eladó ikerház
Eladó ikerház

Tahitótfalu

88.9 M Ft
4 szoba
110 m2
Eladó ikerház
Eladó ikerház

Vác

92.9 M Ft
4 + 1 szoba
126 m2
Eladó ikerház
Eladó ikerház

Mogyoród, Fóti út

188 M Ft
6 szoba
182 m2
Eladó ikerház
Eladó ikerház

Érd, Érdliget - Kutyavár, Érdligeten található utca

64.9 M Ft
4 szoba
112 m2
Eladó ikerház
Eladó ikerház

Csörög

89.9 M Ft
4 szoba
108 m2
Eladó ikerház
Eladó ikerház

Dunaharaszti

124.999 M Ft
4 szoba
105 m2
Eladó ikerház
Eladó ikerház

Csörög

99.9 M Ft
2 + 3 szoba
106 m2
Eladó ikerház
Eladó ikerház

Vác

175.356 M Ft
5 szoba
165 m2
Eladó családi ház
Eladó családi ház

Monor

220 M Ft
4 + 1 szoba
260 m2
Eladó ikerház
Eladó ikerház

Csörög

99.9 M Ft
4 + 1 szoba
108 m2
Eladó ikerház
Eladó ikerház

Vác

149.9 M Ft
5 szoba
202 m2
Eladó ikerház
Eladó ikerház

Dunakeszi

149 M Ft
1 + 4 szoba
127 m2
Eladó ikerház
Eladó ikerház

Csörög

91.99 M Ft
4 szoba
99 m2
Eladó ikerház
Eladó ikerház

Csörög

89.99 M Ft
4 szoba
108 m2
Eladó ikerház
Eladó ikerház

Pécel, Pécel - kertváros

127 M Ft
4 szoba
125 m2

Falusi CSOK ingatlanok

Eladó családi ház
Eladó családi ház

Vaskút

24.9 M Ft
4 szoba
150 m2
Eladó családi ház
Eladó családi ház

Bezenye

84.9 M Ft
4 + 1 szoba
145 m2
Eladó családi ház
Eladó családi ház

Bugac

170 M Ft
187 m2
Eladó családi ház
Eladó családi ház

Bakonyság

51.9 M Ft
2 + 1 szoba
91 m2
Eladó családi ház
Eladó családi ház

Táborfalva

24.9 M Ft
2 + 1 szoba
81 m2
Eladó családi ház
Eladó családi ház

Somogygeszti

38.6 M Ft
3 + 1 szoba
98 m2
Eladó családi ház
Eladó családi ház

Újszilvás

34.9 M Ft
3 szoba
66 m2
Eladó családi ház
Eladó családi ház

Zánka

89 M Ft
5 + 2 szoba
200 m2