Eladó ikerház
Csörög

+ 3 kép 1/6
99 900 000 Ft99.9 M Ft 933 645 Ft/m2
4 szoba
107 m2
építés éve:2026

Részletes adatok

Telekméret: 411 m2
Fűtés: Egyéb
Parkolás: Kocsibeálló
Közmű: Víz, Villany, Csatorna, Szélessáv
Energetikai besorolás: Nem adta meg a hirdető

Az OTP Bank lakáshitel ajánlataFizetett hirdetés

+36 20 249
Gajdos Gábor
referens

Érdekel az OTP Bank kedvezményes lakáshitel ajánlata? *

* A kérdésre „Igen” válasz bejelölése esetén, az „Üzenet küldése” gombra kattintva kijelentem, hogy az OTP Bank Nyrt. Adatkezelési tájékoztatójának tartalmát megismertem és tudomásul vettem.

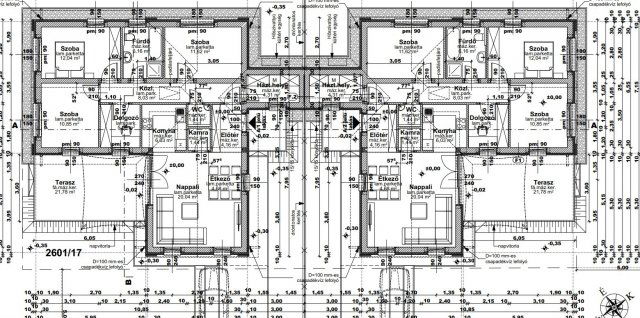
Eladó ikerház leírása

Kedves Érdeklődő!

Megvételre kínálok Csörögön a lakóparkban megépülő, ÚJ építésű ikerház lakásait!
A lakások csak tárolón érintkeznek, így a lakótereknek közös fala nincsen!
Mind a két ház közvetlen utcafronttal rendelkezik!

Az ingatlan építése már elkezdődött, jövő év II. negyedévében várható az átadása.

Az ingatlan nappali+3 szobás alaprajzzal épül meg, minden helyiség nagyméretű tágas, így akár nagyobb családok számára is ideális választás lehet!

A ház tégla építésű, tégla válaszfalakkal, betoncserép fedéssel épül meg. Korszerű energetikailag hatékony nyílászárók és a hőszigetelő rendszer mellett a fűtésről és a melegvízről hőszivattyú fog gondoskodni padlófűtéssel, így egy kedvező rezsivel fentartható modern otthon tulajdonosa lehet.

Az ingatlan kulcsrakész kivitelezéssel épül meg, választható beltéri ajtókkal, szaniterekkel, burkolatokkal és még sok egyébben. Várható energetikai besorolás A+ lesz.

Kerítések, járdák autóbeálló a vételárban benne vannak.

A házat régóta piacon lévő kivitelező cég építi, közelben több referencia is megtekinthető.

A ház természetesen hitelezhető, CSOK+, babaváró, 3%-os hitel igényelhető rá, ügyintézésben segítünk!

Ha szeretné az ingatlant megtekinteni, vagy kérdése lenne kérem keressen, akár hétvégén is.

Hirdetés feltöltve: 2025. 10. 07. Utoljára módosítva: 2025. 10. 07.

Az ingatlan elhelyezkedése

Cím: Csörög

Eladó ingatlanok a környékről

Eladó ikerház
Eladó ikerház

Veresegyház

145 M Ft
4 szoba
120 m2
Eladó ikerház
Eladó ikerház

Csörög

91.99 M Ft
4 szoba
99 m2
Eladó nyaraló
Eladó nyaraló

Ráckeve

24 M Ft
2 + 1 szoba
52 m2
Eladó családi ház
Eladó családi ház

Halásztelek

139.9 M Ft
5 szoba
240 m2
Eladó telek
Eladó telek

Monorierdő

4.5 M Ft
695 m²
Eladó ikerház
Eladó ikerház

Vác

175.356 M Ft
5 szoba
165 m2
Eladó ikerház
Eladó ikerház

Göd

110 M Ft
5 szoba
140 m2
Eladó ikerház
Eladó ikerház

Csörög

99.9 M Ft
2 + 3 szoba
108 m2
Eladó ikerház
Eladó ikerház

Pécel

149.9 M Ft
5 szoba
306 m2
Eladó családi ház
Eladó családi ház

Dömsöd

32.9 M Ft
3 szoba
59 m2
Eladó családi ház
Eladó családi ház

Őrbottyán

58 M Ft
2 szoba
50 m2
Eladó ikerház
Eladó ikerház

Csörög

99.9 M Ft
4 szoba
109 m2
Eladó ikerház
Eladó ikerház

Dunakeszi

149 M Ft
1 + 4 szoba
127 m2
Eladó ikerház
Eladó ikerház

Csörög

99.9 M Ft
4 + 1 szoba
108 m2
Eladó ikerház
Eladó ikerház

Pilisborosjenő

149 M Ft
5 szoba
114 m2
Eladó ikerház
Eladó ikerház

Csörög

89.99 M Ft
4 szoba
108 m2
Eladó ikerház
Eladó ikerház

Vác

94.9 M Ft
4 + 1 szoba
129 m2
Eladó ikerház
Eladó ikerház

Érd, Érdliget - Kutyavár, Érdligeten található utca

64.9 M Ft
4 szoba
112 m2
Eladó ikerház
Eladó ikerház

Csörög

99.9 M Ft
4 + 1 szoba
96 m2
Eladó ikerház
Eladó ikerház

Csörög

90.9 M Ft
2 + 2 szoba
100 m2
Eladó panellakás
Eladó panellakás

Százhalombatta

58 M Ft
2 szoba
50 m2
Eladó ikerház
Eladó ikerház

Pomáz

129.5 M Ft
4 szoba
100 m2
Eladó ikerház
Eladó ikerház

Csörög

90.9 M Ft
4 szoba
89 m2
Eladó telek
Eladó telek

Maglód

1258.715 M Ft
92491 m²

Falusi CSOK ingatlanok

Eladó családi ház
Eladó családi ház

Szob, Petőfi Sándor utca

23.5 M Ft
2 szoba
68 m2
Eladó családi ház
Eladó családi ház

Bag

99 M Ft
6 + 1 szoba
194 m2
Eladó családi ház
Eladó családi ház

Csátalja, Kossuth Lajos utca

41.9 M Ft
3 szoba
90 m2
Eladó családi ház
Eladó családi ház

Őcsény

34 M Ft
3 + 1 szoba
96 m2
Eladó családi ház
Eladó családi ház

Bakonyság

51.9 M Ft
2 + 1 szoba
91 m2
Eladó családi ház
Eladó családi ház

Szőlősgyörök, Táncsics Mihály utca

47.999 M Ft
5 szoba
105 m2
Eladó családi ház
Eladó családi ház

Orgovány

68.5 M Ft
4 szoba
169 m2
Eladó családi ház
Eladó családi ház

Gáborjánháza

23 M Ft
2 szoba
117 m2