Astora Olive Club House

Eladó ikerház
Csörög

+ 6 kép 1/9
99 900 000 Ft99.9 M Ft 925 000 Ft/m2
4 + 1 szoba
108 m2
építés éve:2026

Részletes adatok

Telekméret: 490 m2
Fűtés: Egyéb
Közmű: Víz, Villany, Csatorna
Energetikai besorolás: Nem adta meg a hirdető

Az OTP Bank lakáshitel ajánlataFizetett hirdetés

+36 70 418
Kovács Péter
referens

Érdekel az OTP Bank kedvezményes lakáshitel ajánlata? *

* A kérdésre „Igen” válasz bejelölése esetén, az „Üzenet küldése” gombra kattintva kijelentem, hogy az OTP Bank Nyrt. Adatkezelési tájékoztatójának tartalmát megismertem és tudomásul vettem.

Eladó ikerház leírása

Új építésű, földszintes, CSAK A TÁROLÓKKAL érintkező ikerház mindkét fele eladó Csörögön!

CÉGES ÉPÍTKEZÉS, a 2024-től aktuális állami támogatások valamint kedvezményes, kamattámogatott hitelek felvehetőek – akár a 3%-os OTTHON START hitel, CSOK PLUS, babaváró is igényelhető, az ügyintézésben díjmentesen segítünk!

Az építő munkájára jellemző a megbízhatóság és igényesség, leinformálható, referencia házai megtekinthetők.

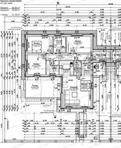
A lakások lakóterülete 95,86 nm + 21,78 nm terasz, nappali + 3 + ½ szobás elrendezéssel, lakásonként kb. 480 nm-es telekrésszel.

A lakások alaprajzi elrendezése megegyezik.
A lakásba belépve az előtérbe jutunk, ahonnan a délnyugati tájolású előkert felé haladva a
konyhával egy légteret alkotó nappali-étkezőbe érkezünk, innen pedig a délnyugati
tájolású fedetlen teraszra juthatunk. A konyhához kamra is tartozik.
Az előtérből nyíló közlekedőből érhető el három szoba, dolgozó szoba, fürdő,
háztartási helyiség, valamint egy WC helyiség is.
A padlástérbe a közlekedő mennyezetéből lehajtható padlásfeljáró létrán juthatunk fel.

Rövid műszaki tartalom:
A ház 30-as PTH téglából, 15 cm grafitos ESP hőszigeteléssel épül, a tető beton cseréppel lesz fedett.
Nyílászárói műanyag szerkezetű, hőszigetelő üvegezéssel ellátott ablakok, fehér színben.
Fűtésről és használati meleg vízellátásról hőszivattyú gondoskodik, a hő leadás padlófűtéssel történik.

Az ingatlan kulcsrakész állapotban kerül átadásra, konyhabútor nélkül.

Belső nyílászárók és a burkolatok választhatók, a belső műszaki tartalomban megjelölt összegig a vételár részét képezik.

Parkolás: zárt udvari, viacolorral burkolt beállón történik

Köszönjük, hogy megtisztel bizalmával, és irodánkat választja új otthona kiválasztására. Tapasztalt és felkészült kollégáink segítenek Önnek akár a hétvégén is.
Ha esetleg még nem sikerült eladni ingatlanát, kedvezményes feltételekkel vállaljuk annak értékesítését!

Kulcsrakész ár: 99.900.000.- Ft/lakás
Azonosító: 4646

Hirdetés feltöltve: 2026. 01. 06. Utoljára módosítva: 2026. 01. 07.

Az ingatlan elhelyezkedése

Cím: Csörög

Eladó ingatlanok a környékről

Eladó ikerház
Eladó ikerház

Csörög

74.9 M Ft
4 szoba
90 m2
Eladó ikerház
Eladó ikerház

Pécel, Pécel - kertváros

127 M Ft
4 szoba
125 m2
Eladó ikerház
Eladó ikerház

Szentendre

359 M Ft
5 + 1 szoba
289 m2
Eladó ikerház
Eladó ikerház

Pusztazámor

55 M Ft
10 szoba
470 m2
Eladó ikerház
Eladó ikerház

Pécel

149.9 M Ft
5 szoba
306 m2
Eladó családi ház
Eladó családi ház

Sződ, Mártírok útja

73.4 M Ft
6 szoba
120 m2
Eladó ikerház
Eladó ikerház

Csörög, Homokbánya utca

79.9 M Ft
4 szoba
86 m2
Eladó telek
Eladó telek

Szigetszentmiklós

22.9 M Ft
1 + 2 szoba
438 m2
Eladó családi ház
Eladó családi ház

Monorierdő

72.9 M Ft
3 szoba
110 m2
Eladó ikerház
Eladó ikerház

Mogyoród

129 M Ft
5 szoba
123 m2
Eladó ikerház
Eladó ikerház

Érd, Érdligeten található utca

64.9 M Ft
4 szoba
112 m2
Eladó ikerház
Eladó ikerház

Csörög, Homokbánya utca

69.9 M Ft
4 szoba
86 m2
Eladó ikerház
Eladó ikerház

Csörög

69 M Ft
4 szoba
86 m2
Eladó ikerház
Eladó ikerház

Mogyoród

135 M Ft
5 szoba
137 m2
Eladó ikerház
Eladó ikerház

Dunakeszi

149 M Ft
1 + 4 szoba
127 m2
Eladó ikerház
Eladó ikerház

Pomáz

129.5 M Ft
4 szoba
100 m2
Eladó családi ház
Eladó családi ház

Gyál, Bocskai István utca

79 M Ft
3 szoba
89 m2
Eladó ikerház
Eladó ikerház

Szentendre

359 M Ft
5 szoba
289 m2
Eladó ikerház
Eladó ikerház

Vác

175.356 M Ft
5 szoba
165 m2
Eladó ikerház
Eladó ikerház

Csörög

99.9 M Ft
2 + 3 szoba
108 m2
Eladó ikerház
Eladó ikerház

Üröm

220 M Ft
4 szoba
130 m2
Eladó ikerház
Eladó ikerház

Csörög

93 M Ft
4 szoba
91 m2
Eladó családi ház
Eladó családi ház

Vecsés

40 M Ft
4 szoba
100 m2
Eladó ikerház
Eladó ikerház

Szentendre

179 M Ft
5 + 1 szoba
147 m2

Falusi CSOK ingatlanok

Eladó családi ház
Eladó családi ház

Szederkény

107.9 M Ft
6 szoba
224 m2
Eladó családi ház
Eladó családi ház

Vértesacsa

137.5 M Ft
7 szoba
178 m2
Eladó családi ház
Eladó családi ház

Balatonberény, Kodály Zotán utca 34

61.9 M Ft
4 + 1 szoba
95 m2
Eladó családi ház
Eladó családi ház

Mezőzombor

19.99 M Ft
3 szoba
91 m2
Eladó családi ház
Eladó családi ház

Nyírábrány

17.9 M Ft
2 szoba
65 m2
Eladó családi ház
Eladó családi ház

Tápszentmiklós

64.9 M Ft
5 szoba
110 m2
Eladó családi ház
Eladó családi ház

Szigliget

299 M Ft
3 szoba
95 m2
Eladó családi ház
Eladó családi ház

Sellye

21.6 M Ft
2 szoba
72 m2