Aerogate Homes

Eladó ikerház
Budapest, XVIII. kerület

+ 1 kép 1/4
199 999 000 Ft199.999 M Ft 934 575 Ft/m2
4 szoba
214 m²
építés éve:2026

Részletes adatok

Telekméret: 200 m2
Fűtés: Egyéb
Energetikai besorolás: A+

Az OTP Bank lakáshitel ajánlataFizetett hirdetés

+36 1 690
Tóth Beáta
referens

Érdekel az OTP Bank kedvezményes lakáshitel ajánlata? *

* A kérdésre „Igen” válasz bejelölése esetén, az „Üzenet küldése” gombra kattintva kijelentem, hogy az OTP Bank Nyrt. Adatkezelési tájékoztatójának tartalmát megismertem és tudomásul vettem.

Eladó ikerház leírása

Budapest XVIII. kerületének egyik legkeresettebb részén a Péterhalmi erdő szomszédságában épül ez a kétlakásos, háromszintes, A+ energetikájú otthon, amelyből mindössze egy bal és egy jobb ikerfél készül.

A 2026-os átadás miatt most még minden részlet személyre szabható.
Ez az a pillanat, amikor még bele lehet nyúlni a burkolatokba, színekbe, kialakításokba később már nem.

Főbb adatok:
-214m2-es alapterület
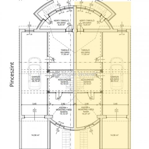
Pinceszint: 104m2
1. szint: 75,5m2
2. szint: 35m2

-Hozzá tartozó telekterület: Körülbelül 200m2

Háromszintes elrendezés
- Pinceszint (garázs + tárolók + gépészet),
- 1.szint (nappali, konyha, étkező, szobák),
- 2. szint (szoba, gardrób )
Plusz további tetőtér még beépíthető

A+ energetika
A műszaki leírás szerint:
- 40 cm tetőszigetelés,
- hőszivattyús fűtés,
- padlófűtés mindhárom szinten,
- mennyezethűtés-fűtés,
- Htarifás villanyóra

Prémium szerkezetek és anyagok
- 30 cm nf főfalak,
- betonfödém,
- Terrán cserépfedés,
- 6 légkamrás műanyag nyílászárók 1.0 üvegezéssel,
- elektromos redőnyök,
- elektromos garázskapu

Miért különleges?
A pince szint ami miatt ez az ingatlan eltér a mai újépítésű ikerházfelektől
- teljes értékűen szigetelt,
- gépi vakolt falakkal,
- 10 cm lépésálló hőszigeteléssel,
- simított betonpadlóval készül.
nem csak egy garázs, hanem egy komplett funkcionális szint

Fürdők, konyha, belső terek még te döntesz
- 100.000 Ft-ig választható zuhanyrendszer,
- 100.000 Ft-ig választható mosdószekrény,
- 150.000 Ft-ig választható falba épített WC szett,
- 10.000 Ft/m²-ig választható hidegburkolat,
- 10.000 Ft/m²-ig választható laminált padló.
Ez azt jelenti, hogy most még te alakítod ki a saját ízlésed szerint, és nem kell kompromisszumot kötni egy készre burkolt házzal.

Kert és környezet
- viacolor kocsibeálló,
- viacolor járda,
- elektromos kétszárnyú nagykapu,
- 3D táblás elválasztókerítés

Környezet:
A környék hangulata egyszerre nyugodt és élhető, mégis minden fontos szolgáltatás pár percen belül elérhető.
A XVIII. kerületet érintő járatok között szerepel a 166, 182, 266, 282E és 950-es busz, valamint az 50-es villamos, amely gyors kapcsolatot ad a metróhoz is

Autóval pedig a kerületből indulva könnyen elérhető:
- az M0,
- az M5,
- a Gyömrői út,
- a repülőtér

Várható átadás: 2026. 4. negyedév
Megbízható kivitelező referencia munkákkal!

Referencia szám: HZ044131

Hirdetés feltöltve: 2026. 04. 01.

4 szobás ikerházak ára Budapesten

Ebből az összehasonlításból megtudhatod, hogyan viszonyul a lakás ára a környékbeli ikerházak átlagos árához. Ez nem azt jelenti, hogy ennyivel olcsóbb vagy drágább, mint amennyit a lakás ér, hanem hogy ennyivel tér el a környékbeli átlagtól.

Ennek a m² ára
XVIII. kerület m² ár
Budapest m² ár
935 e Ft
1006 e Ft 7%
1201 e Ft 22%
Ennek az ára
XVIII. kerület átlagár
Budapest átlagár
199.999 M Ft m Ft
140.3 m Ft -43%
172.5 m Ft -16%

Az ingatlan elhelyezkedése

Cím: Budapest, XVIII. kerület

Eladó ingatlanok a környékről

XVIII. kerület
Eladó ikerház

Budapest, XVIII. kerület

119.9 M Ft
5 szoba
144 m²
XVIII. kerület
Eladó ikerház

Budapest, XVIII. kerület

147.5 M Ft
4 szoba
120 m²
XVIII. kerület
Eladó ikerház

Budapest, XVIII. kerület

129.9 M Ft
5 szoba
152 m²
XIV. kerület
Eladó téglalakás

Budapest, XIV. kerület

75 M Ft
2 szoba
39 m²
VIII. kerület
Eladó téglalakás

Budapest, VIII. kerület

99.7 M Ft
2 szoba
63 m²
XVIII. kerület, Gloriett-telep, Kubinyi Imre utca
Eladó családi ház

Budapest, XVIII. kerület

98.9 M Ft
84 m²
XVIII. kerület
Eladó ikerház

Budapest, XVIII. kerület

74.5 M Ft
4 szoba
110 m²
XVIII. kerület
Eladó ikerház

Budapest, XVIII. kerület

74.5 M Ft
4 szoba
110 m²
XVIII. kerület
Eladó ikerház

Budapest, XVIII. kerület

49.9 M Ft
2 szoba
40 m²
VI. kerület
Eladó téglalakás

Budapest, VI. kerület

144.99 M Ft
3 szoba
110 m²
XVIII. kerület
Eladó ikerház

Budapest, XVIII. kerület

249 M Ft
4 szoba
164 m²
XVIII. kerület, Gloriett-telep, Sólyom utca
Eladó ikerház

Budapest, XVIII. kerület

49.9 M Ft
2 szoba
40 m²
XVIII. kerület
Eladó ikerház

Budapest, XVIII. kerület

195 M Ft
4 szoba
150 m²
XVIII. kerület
Eladó ikerház

Budapest, XVIII. kerület

74.5 M Ft
4 szoba
110 m²
XVIII. kerület
Eladó ikerház

Budapest, XVIII. kerület

99.9 M Ft
4 szoba
110 m²
XVIII. kerület
Eladó ikerház

Budapest, XVIII. kerület

74.5 M Ft
4 szoba
110 m²
XVIII. kerület
Eladó ikerház

Budapest, XVIII. kerület

99.9 M Ft
4 szoba
110 m²
XVIII. kerület
Eladó ikerház

Budapest, XVIII. kerület

74.5 M Ft
4 szoba
110 m²
II. kerület, Zöldmál, Zöldmáli lejtő 10
Eladó téglalakás

Budapest, II. kerület

99.9 M Ft
1 + 2 szoba
60 m²
XVIII. kerület
Eladó ikerház

Budapest, XVIII. kerület

195 M Ft
4 szoba
150 m²
XVIII. kerület
Eladó ikerház

Budapest, XVIII. kerület

159 M Ft
5 szoba
134 m²
XVIII. kerület, Erzsébettelep
Eladó ikerház

Budapest, XVIII. kerület

122 M Ft
4 + 1 szoba
117 m²
XVIII. kerület, Gloriett-telep, Sólyom utca
Eladó ikerház

Budapest, XVIII. kerület

99.9 M Ft
4 szoba
110 m²
VII. kerület
Eladó téglalakás

Budapest, VII. kerület

85 M Ft
1 + 1 szoba
58 m²

Falusi CSOK ingatlanok

Szob
Eladó sorház

Szob

16 M Ft
2 szoba
45 m²
Ádánd
Eladó családi ház

Ádánd

53.5 M Ft
6 szoba
180 m²
Mikepércs
Eladó sorház

Mikepércs

700 M Ft
45 szoba
1150 m²
Szarvaskő
Eladó családi ház

Szarvaskő

49.5 M Ft
5 szoba
160 m²
Tápióság
Eladó családi ház

Tápióság

36.99 M Ft
2 szoba
81 m²
Badacsonytördemic
Eladó családi ház

Badacsonytördemic

90 M Ft
3 szoba
130 m²
Zalacsány
Eladó családi ház

Zalacsány

79.9 M Ft
4 szoba
184 m²
Szilvásvárad
Eladó családi ház

Szilvásvárad

104.9 M Ft
5 szoba
340 m²