River Life

Eladó ikerház
Budapest, XVIII. kerület

1/2
159 900 000 Ft159.9 M Ft 980 982 Ft/m2
5 szoba
163 m²
építés éve:2025

Részletes adatok

Telekméret: 658 m2
Fűtés: Egyéb
Energetikai besorolás: Nem adta meg a hirdető

Az OTP Bank lakáshitel ajánlataFizetett hirdetés

+36 1 690
Hársmán Kamilla
Duna House - Szent Imre-kertváros

Érdekel az OTP Bank kedvezményes lakáshitel ajánlata? *

* A kérdésre „Igen” válasz bejelölése esetén, az „Üzenet küldése” gombra kattintva kijelentem, hogy az OTP Bank Nyrt. Adatkezelési tájékoztatójának tartalmát megismertem és tudomásul vettem.

Eladó ikerház leírása

18.kerület legkedveltebb részén Almáskertben

Almáskertben modern környezetben eladó új építésű egyszintes önálló családi ház..
A kivitelező sok éves múlttal és rengeteg elégedett ügyféllel rendelkezik, referenciák akár itt a lakóparkban is megtekinthetőek.

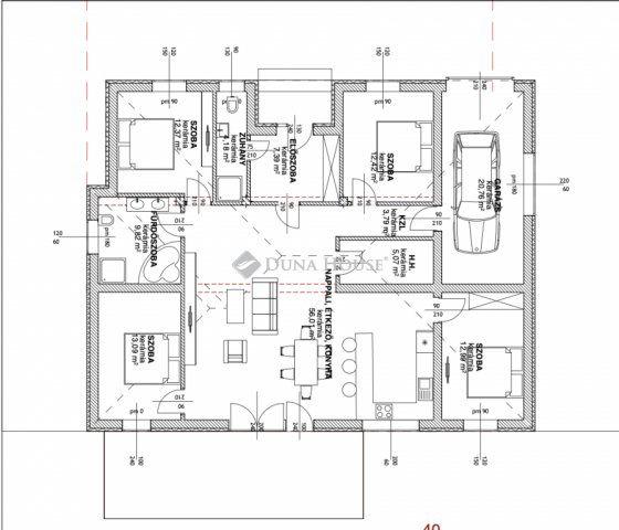
163 négyzetméter hasznos lakótérrel rendelkezik, mely egy 660 négyzetméteres telken fekszik. Nappali+4hálószobával rendelkezik, a szobák minimum 12 négyzetméteresek. Az 56 négyzetméteres tágas nappaliból egy privát teraszon keresztül juthatunk ki a csodás kertünkbe.
Autóval garázsban és az udvaron is lehet parkolni.

Műszaki adatok:

-30-as Prototherm tégla falazat

-15 cm-es homlokzati szigetelés

-29 cm-es szigetelés az aljzat felől

-35 cm-es szigetelés a födém felől

-3 rétegű műanyag nyílászárók, kívül antracit, belül fehér színnel

-a tető szerkezete fafödém cserépfedéssel

-elektromos garázskapu

-elektromos kertikapu

-Hőszivattyús fűtés, padlófűtéssel

-1db hűtő-fűtő klíma

-riasztó és kamerarendszer

-térkövezett autóbeálló

-2 fürdőszoba

-mosókonyha

Burkolatok/beltéri ajtók/szaniterek még választhatóak.

Átadás 2026. III. negyedévében.

A lakópark teljesen új modern környezet, összetartó közösség jellemzi. Közlekedést tekintve autóval a Gyorsforgalmi út, Üllői út, Gyömrői út az M0-ás, M5-ös és a 4-es út  mind-mind maximum 5 perc alatt megközelíthető.

Tömegközlekedés 3 perc sétára, ahonnan a buszok Kőbánya Kispest vasútállomásig, illetve Határ úti metrómegálló, Ferihegyi vasútállomás is megközelíthető. 10 perc busz távolságra Ferihegyi vasútállomás, melyről a Nyugati pályaudvarig közlekedhetünk. Séta távolságra: Gyógyszertár, Spar, Iskola, Óvoda, Posta

Felkeltette érdeklődését keressen bizalommal a hét bármely napján!

Hirdetés feltöltve: 2025. 10. 03. Utoljára módosítva: 2026. 01. 13.

5 szobás ikerházak ára Budapesten

Ebből az összehasonlításból megtudhatod, hogyan viszonyul a lakás ára a környékbeli ikerházak átlagos árához. Ez nem azt jelenti, hogy ennyivel olcsóbb vagy drágább, mint amennyit a lakás ér, hanem hogy ennyivel tér el a környékbeli átlagtól.

Ennek a m² ára
XVIII. kerület m² ár
Budapest m² ár
981 e Ft
1005 e Ft 2%
1188 e Ft 17%
Ennek az ára
XVIII. kerület átlagár
Budapest átlagár
159.9 M Ft m Ft
136.7 m Ft -17%
208.8 m Ft 23%

Az ingatlan elhelyezkedése

Cím: Budapest, XVIII. kerület

Eladó ingatlanok a környékről

VI. kerület
Eladó téglalakás

Budapest, VI. kerület

178.9 M Ft
4 szoba
106 m²
XVIII. kerület, Erzsébettelep
Eladó ikerház

Budapest, XVIII. kerület

74.5 M Ft
4 szoba
110 m²
XVIII. kerület
Eladó ikerház

Budapest, XVIII. kerület

131.9 M Ft
5 szoba
140 m²
VIII. kerület
Eladó téglalakás

Budapest, VIII. kerület

109.5 M Ft
2 szoba
87 m²
XVIII. kerület, Erzsébettelep
Eladó ikerház

Budapest, XVIII. kerület

74.5 M Ft
4 szoba
110 m²
XVIII. kerület, Almáskert
Eladó ikerház

Budapest, XVIII. kerület

149.9 M Ft
5 szoba
137 m²
XVIII. kerület, Belsőmajor
Eladó ikerház

Budapest, XVIII. kerület

125 M Ft
7 szoba
270 m²
XVIII. kerület
Eladó ikerház

Budapest, XVIII. kerület

124.9 M Ft
5 szoba
163 m²
XVIII. kerület, Gloriett-telep, Sólyom utca
Eladó ikerház

Budapest, XVIII. kerület

99.9 M Ft
4 szoba
110 m²
XI. kerület, Kelenföld, Etele út
Eladó panellakás

Budapest, XI. kerület

84.9 M Ft
2 szoba
48 m²
XVIII. kerület
Eladó ikerház

Budapest, XVIII. kerület

135 M Ft
5 szoba
140 m²
V. kerület, Belváros, Szervita tér
Eladó téglalakás

Budapest, V. kerület

265 M Ft
4 szoba
100 m²
XIII. kerület
Eladó téglalakás

Budapest, XIII. kerület

168 M Ft
3 szoba
70 m²
XVII. kerület
Eladó téglalakás

Budapest, XVII. kerület

72.9 M Ft
3 + 1 szoba
72 m²
XVIII. kerület
Eladó ikerház

Budapest, XVIII. kerület

49.9 M Ft
2 szoba
70 m²
XIII. kerület, Angyalföld
Eladó panellakás

Budapest, XIII. kerület

95 M Ft
2 + 2 szoba
74 m²
XVIII. kerület
Eladó ikerház

Budapest, XVIII. kerület

49.9 M Ft
2 szoba
40 m²
XXII. kerület, Baross Gábor telep, Szalontai utca
Eladó téglalakás

Budapest, XXII. kerület

94.9 M Ft
3 szoba
59 m²
XVIII. kerület
Eladó ikerház

Budapest, XVIII. kerület

249 M Ft
4 szoba
164 m²
XVIII. kerület, Ganzkertváros
Eladó ikerház

Budapest, XVIII. kerület

159 M Ft
5 szoba
134 m²
VII. kerület, Belső Erzsébetváros, Klauzál tér
Eladó téglalakás

Budapest, VII. kerület

74.9 M Ft
1 + 1 szoba
40 m²
XVIII. kerület, Almáskert
Eladó ikerház

Budapest, XVIII. kerület

149.9 M Ft
5 szoba
136 m²
XVIII. kerület
Eladó ikerház

Budapest, XVIII. kerület

49.9 M Ft
2 szoba
40 m²
XVIII. kerület, Ganzkertváros
Eladó ikerház

Budapest, XVIII. kerület

159 M Ft
5 szoba
134 m²

Falusi CSOK ingatlanok

Tiszasziget, Sziget u
Eladó téglalakás

Tiszasziget

37.5 M Ft
2 szoba
41 m²
Balatonfenyves
Eladó családi ház

Balatonfenyves

119 M Ft
5 szoba
142 m²
Bag
Eladó családi ház

Bag

16.9 M Ft
6 szoba
160 m²
Tiszasziget, Sziget lakópark
Eladó sorház

Tiszasziget

33.9 M Ft
2 szoba
48 m²
Románd
Eladó családi ház

Románd

49.9 M Ft
3 szoba
100 m²
Hercegszántó
Eladó családi ház

Hercegszántó

7 M Ft
3 szoba
120 m²
Sumony
Eladó családi ház

Sumony

19 M Ft
4 szoba
120 m²
Seregélyes
Eladó családi ház

Seregélyes

75 M Ft
6 szoba
160 m²