City Pearl

Eladó ikerház
Budapest, XVI. kerület, Sashalom

+ 9 kép 1/12
199 900 000 Ft199.9 M Ft 1 738 261 Ft/m2
3 + 2 szoba
115 m²
építés éve:2017

Részletes adatok

Állapot: Újszerű
Telekméret: 332 m2
Fűtés: Egyéb
Parkolás: Garázs
Energetikai besorolás: Nem adta meg a hirdető

Az OTP Bank lakáshitel ajánlataFizetett hirdetés

+36 30 220
Tromposch Edina
referens

Érdekel az OTP Bank kedvezményes lakáshitel ajánlata? *

* A kérdésre „Igen” válasz bejelölése esetén, az „Üzenet küldése” gombra kattintva kijelentem, hogy az OTP Bank Nyrt. Adatkezelési tájékoztatójának tartalmát megismertem és tudomásul vettem.

Eladó ikerház leírása

CSAK NÁLUNK!
ÚJSZERŰ, NAPELEMES, FŰTHETŐ MEDENCÉS IKERHÁZ ELADÓ SASHALOM KIEMELT RÉSZÉN – ZUGLÓ HATÁRÁN

Prémium műszaki tartalom, alacsony rezsi, kiváló lokáció – itt valóban nincs kompromisszum.

Sashalom egyik legkeresettebb, csendes kertvárosi utcájában, mindössze 100 méterre Zuglótól kínálunk megvételre egy 8 éve épült, újszerű állapotú, bruttó 139 m²-es ikerházat, 332 m²-es, gondozott telken.

Főbb paraméterek:

- Bruttó terület: 139 m²

- Telek területe: 332 m²

- Építés éve: 2017

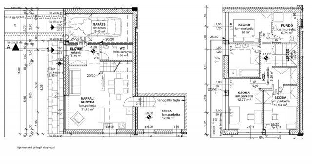
ELRENDEZÉS

Földszint - kertkapcsolattal:

- Világos, délnyugati tájolású nappali–konyha–étkező

- Hálószoba

- Fürdőszoba WC-vel

- Előszoba, közlekedő

- Garázs közvetlenül az előszobából

A nappaliból közvetlen kijárat nyílik a teraszos kertbe, ahol egy
5×3 méteres, beépített, hőszivattyúval fűthető medence,
6 m²-es faház, valamint tűzrakóhely került kialakításra.
A fűthető medence nemcsak a nyári hónapokban, hanem egész évben valódi kikapcsolódást biztosíthat.
A térkövezett udvar két autó parkolását teszi lehetővé.

Az egyedi tervezésű konyhabútor beépített gépekkel, kerámialapos főzőlappal felszerelt.

Emelet:

- 3 különnyíló hálószoba

- Tágas fürdőszoba WC-vel és káddal

- Az egyik hálószobához saját, zuhanyzós fürdőszoba tartozik

Műszaki tartalom, energetika:

- Hőszivattyús fűtés–hűtés rendszer

- Teljes épületben padlófűtés, emeleten kiegészítő falfűtés

- Nyári hűtés: földszinten klíma, emeleten falhűtés

- 14,3 kWh teljesítményű napelemes rendszer, szaldó elszámolással

- Porotherm Klíma tégla falazat, 15 cm homlokzati hőszigeteléssel

A modern műszaki megoldások kedvező energetikai besorolást és alacsony költségeket biztosítanak.

Extrák:

- Riasztórendszer

- Beépített konyhagépek

- Fűthető medence

- Garázs + 2 felszíni gépkocsibeálló

Lokáció és infrastruktúra:

- Bölcsőde, óvoda gyalogosan elérhető

- Iskola, orvosi rendelő, játszótér, bevásárlási lehetőségek pár perces távolságban

Örs Vezér tere
– autóval kb. 5 perc, tömegközlekedéssel ~10 perc

Összegzés

Ez az ingatlan nem kompromisszumos, hanem tudatos választás:
kiváló műszaki tartalom, átgondolt elrendezés, fűthető medencés kert és kitűnő lokáció egyben.

Amennyiben felkeltette érdeklődését, várom hívását vagy üzenetét, és örömmel állok rendelkezésére további információval, illetve személyes megtekintéssel kapcsolatban. Megtekintés előre egyeztetett időpontban, elsősorban hétvégén.

Eladná ingatlanát?
Értékesítésében átgondolt stratégiával, aktív jelenléttel és végigkísért folyamattal állok rendelkezésére.

A hirdetésben szereplő adatok tájékoztató jellegűek, nem minősülnek ajánlattételnek. ...TOVÁBBI, TÖBBEZRES INGATLAN KÍNÁLAT: www.gdn-ingatlan.hu - GDN azonosító: 391703

Hirdetés feltöltve: 2026. 01. 17. Utoljára módosítva: 2026. 01. 23.

5 szobás ikerházak ára Budapesten

Ebből az összehasonlításból megtudhatod, hogyan viszonyul a lakás ára a környékbeli ikerházak átlagos árához. Ez nem azt jelenti, hogy ennyivel olcsóbb vagy drágább, mint amennyit a lakás ér, hanem hogy ennyivel tér el a környékbeli átlagtól.

Ennek a m² ára
Sashalom m² ár
XVI. kerület m² ár
Budapest m² ár
1738 e Ft
578 e Ft -200%
1100 e Ft -58%
1170 e Ft -49%
Ennek az ára
Sashalom átlagár
XVI. kerület átlagár
Budapest átlagár
199.9 M Ft m Ft
77.5 m Ft -158%
175.6 m Ft -14%
205.2 m Ft 3%

Az ingatlan elhelyezkedése

Cím: Budapest, XVI. kerület, Sashalom

Eladó ingatlanok a környékről

XVI. kerület
Eladó ikerház

Budapest, XVI. kerület

169.9 M Ft
4 szoba
145 m²
XXIII. kerület
Eladó sorház

Budapest, XXIII. kerület

89.9 M Ft
4 + 1 szoba
122 m²
XIV. kerület
Eladó téglalakás

Budapest, XIV. kerület

89.9 M Ft
2 szoba
77 m²
XVI. kerület
Eladó ikerház

Budapest, XVI. kerület

255 M Ft
4 szoba
180 m²
XIV. kerület
Eladó téglalakás

Budapest, XIV. kerület

109 M Ft
3 szoba
75 m²
XX. kerület
Eladó családi ház

Budapest, XX. kerület

119 M Ft
5 szoba
200 m²
XVI. kerület
Eladó ikerház

Budapest, XVI. kerület

255 M Ft
4 szoba
180 m²
XIV. kerület, Alsórákos, Erzsébet királyné útja 108-110
Eladó téglalakás

Budapest, XIV. kerület

80.3 M Ft
2 szoba
50 m²
XVI. kerület, Cinkota
Eladó ikerház

Budapest, XVI. kerület

204 M Ft
6 szoba
196 m²
XVI. kerület, Árpádföld
Eladó ikerház

Budapest, XVI. kerület

179.9 M Ft
5 szoba
127 m²
XIV. kerület, Alsórákos, Erzsébet királyné útja 108-110
Eladó téglalakás

Budapest, XIV. kerület

166.74 M Ft
3 szoba
69 m²
XIV. kerület, Alsórákos, Erzsébet királyné útja 108-110
Eladó téglalakás

Budapest, XIV. kerület

80.32 M Ft
2 szoba
50 m²
X. kerület
Eladó családi ház

Budapest, X. kerület

103.9 M Ft
4 szoba
94 m²
XVI. kerület
Eladó ikerház

Budapest, XVI. kerület

145 M Ft
3 + 2 szoba
190 m²
XI. kerület
Eladó téglalakás

Budapest, XI. kerület

134 M Ft
3 szoba
63 m²
XVI. kerület, Avarszállás utca
Eladó ikerház

Budapest, XVI. kerület

179 M Ft
6 + 1 szoba
210 m²
XIII. kerület
Eladó téglalakás

Budapest, XIII. kerület

72.9 M Ft
1 + 1 szoba
51 m²
XIV. kerület, Alsórákos, Erzsébet királyné útja 108-110
Eladó téglalakás

Budapest, XIV. kerület

82.84 M Ft
2 szoba
52 m²
XVI. kerület, Újmátyásföld
Eladó ikerház

Budapest, XVI. kerület

129 M Ft
4 + 1 szoba
140 m²
XX. kerület
Eladó családi ház

Budapest, XX. kerület

189 M Ft
9 szoba
238 m²
XVI. kerület
Eladó ikerház

Budapest, XVI. kerület

179.9 M Ft
5 szoba
157 m²
XVI. kerület, Cinkota
Eladó ikerház

Budapest, XVI. kerület

204 M Ft
6 szoba
160 m²
XII. kerület
Eladó téglalakás

Budapest, XII. kerület

194.9 M Ft
3 szoba
98 m²
XX. kerület
Eladó családi ház

Budapest, XX. kerület

150 M Ft
8 szoba
195 m²

Falusi CSOK ingatlanok

Simontornya
Eladó családi ház

Simontornya

26 M Ft
3 szoba
60 m²
Csátalja, Táncsics Mihály utca 2
Eladó családi ház

Csátalja

28 M Ft
3 szoba
100 m²
Vajszló
Eladó családi ház

Vajszló

21.49 M Ft
2 szoba
91 m²
Magyarszék
Eladó családi ház

Magyarszék

48.5 M Ft
3 + 1 szoba
86 m²
Szob
Eladó sorház

Szob

16 M Ft
2 szoba
45 m²
Csemő
Eladó családi ház

Csemő

54.9 M Ft
4 szoba
108 m²
Nyalka
Eladó családi ház

Nyalka

30 M Ft
2 szoba
78 m²
Tápióbicske
Eladó családi ház

Tápióbicske

32.9 M Ft
3 szoba
106 m²