City Pearl

Eladó családi ház
Vid

Figyelem!

Ez az ingatlan a 2019.07.01-től induló falusi CSOK által támogatott településen található

+ 12 kép 1/15
15 900 000 Ft15.9 M Ft 311 765 Ft/m2
2 szoba
51 m2
építés éve:1940

Részletes adatok

Állapot: Átlagos
Telekméret: 1452 m2
Fűtés: Egyéb
Energetikai besorolás: Nem adta meg a hirdető

Az OTP Bank lakáshitel ajánlataFizetett hirdetés

+36 70 315
Verrasztó Edina Irén
OTP Ingatlanpont Pápa

Érdekel az OTP Bank kedvezményes lakáshitel ajánlata? *

* A kérdésre „Igen” válasz bejelölése esetén, az „Üzenet küldése” gombra kattintva kijelentem, hogy az OTP Bank Nyrt. Adatkezelési tájékoztatójának tartalmát megismertem és tudomásul vettem.

Eladó családi ház leírása

Eladó parasztház Vid községben!

Vid Devecsertől északnyugatra, Nagyalásony és Iszkáz közt fekvő település. A térség legkisebb közigazgatási területű települései közé tartozik, mindössze három közvetlen szomszédja van: észak és kelet felől Nagyalásony, délkelet felől Somlószőlős, dél és nyugat felől pedig Kisszőlős. A Somló, ez a 431 méter magas vulkáni tanúhegy autóval mindössze 7 kilométerre található.

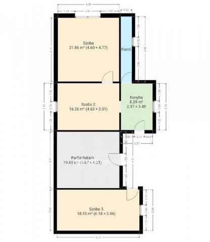
Az ingatlan, mely 51 m2, 1940-es években vályogból épült. Elosztását tekintve áll 2 szobából, egy konyha étkezőből, zuhanyzós fürdőszobából, melyben a WC is megtalálható. Az épülethez tartozik egy padlásfeljáró, mely tárolóként funkcionál és még egy szoba. Ezek lakótérbe vonásával tovább növelhető a ház alapterülete. A ház folytatásaként fatároló, mely autó tárolására is alkalmas, és egy pajta található. A szobákban megmaradt a rusztikus fagerenda, mely kellemes hangulatot ad az egész háznak.
A telek mérete 1452 m2, mely körbekerített. Az udvarban található még egy kis szerszámos tároló, illetve egy füstőlő, illetve egy ásott gyűrűs kút, melyben most is van locsolásra alkalmas víz. Alma, szilva és őszinbarackfa is megtalálható. A telek méretéből adódóan, illetve az itt található melléképületek, alkalmasak a gazdálkodásra, állatok tartására. illetve a kertészkedésre.
A közművek közül a villany és a víz áll rendelkezésre, a gázcsonk a kapunál van. Csatorna nincs a községben.
A tulajdonos elkezdte az ingatlan felújítását, teljesen új a villanyvezeték került kialakításra, illetve a vízvezeték is új. A két szoba laminált parketta burkolású, a fürdőszoba és a konyha járólappal burkolt. Az ablakok közül a konyhai, fürdőszobai és az egyik szoba már műanyagra cserélt. Az utca felőli ablakon rendőny is található. A bejárati ajtót is kicsrélték korszerű műanyagra. A felújítás befejezése az új tulajdonosra vár. A fürdőszobában a melegvizet villanybojler biztosítja, a két szobában fatüzelésű kályha található, mely kellemes meleget biztosít az egész házban.
Ajánlom az ingatlant akár hétvégi háznak, akár állandó lakásnak is.
Az OTP Ingatlanpont teljes körű ügyintézéssel áll az eladók és a vevők rendelkezésére. A kínálatunkból választott ingatlan finanszírozásához kedvezményes hitelkonstrukciót kínálunk. Az adásvételi szerződés megkötéséhez igény szerint megbízható ügyvédi közreműködést biztosítunk, és segítséget nyújtunk az adásvételhez kapcsolódó ügyek intézéséhez is. Az ingatlanról készült alaprajz, illetve fényképfelvételek az OTP Ingatlanpont szellemi tulajdonát képezik. Amennyiben felkeltette érdeklődését az általam kínált ingatlan, keressen bizalommal!
Ez az ingatlan megfelel. fix 3 %- os Otthon Start Hitelprogram feltételeinek.

15900000 Ft
Amennyiben az ingatlan felkeltette érdeklődését, esetleg bármivel kapcsolatban kérdése lenne, keressen Bizalommal! Verrasztó Edina: +36703156380

Referencia szám: M316141-ZE

Hirdetés feltöltve: 2025. 11. 26. Utoljára módosítva: 2025. 11. 26.

Az ingatlan elhelyezkedése

Cím: Vid

Eladó ingatlanok a környékről

Eladó családi ház
Eladó családi ház

Veszprém

139.8 M Ft
4 szoba
157 m2
Eladó téglalakás
Eladó téglalakás

Várpalota

37 M Ft
2 szoba
49 m2
Eladó panellakás
Eladó panellakás

Várpalota

59.9 M Ft
4 szoba
69 m2
Eladó családi ház
Eladó családi ház

Veszprém

149 M Ft
4 + 1 szoba
250 m2
Eladó családi ház
Eladó családi ház

Csesznek

120 M Ft
7 + 3 szoba
230 m2
Eladó téglalakás
Eladó téglalakás

Balatonfüred

65 M Ft
3 szoba
56 m2
Eladó családi ház
Eladó családi ház

Veszprém

80 M Ft
3 + 3 szoba
112 m2
Eladó panellakás
Eladó panellakás

Várpalota

59.9 M Ft
4 szoba
69 m2
Eladó telek
Eladó telek

Dörgicse

24.9 M Ft
3300 m²
3300 m2
Eladó családi ház
Eladó családi ház

Nemesszalók

41.9 M Ft
5 + 1 szoba
170 m2
Eladó nyaraló
Eladó nyaraló

Mencshely

149.9 M Ft
1 szoba
163 m2
Eladó családi ház
Eladó családi ház

Lesencetomaj

90 M Ft
5 + 1 szoba
180 m2
Eladó családi ház
Eladó családi ház

Balatonrendes

150.66 M Ft
7 + 4 szoba
360 m2
Eladó családi ház
Eladó családi ház

Várpalota

36.7 M Ft
3 szoba
70 m2
Eladó családi ház
Eladó családi ház

Ábrahámhegy

190 M Ft
5 szoba
112 m2
Eladó családi ház
Eladó családi ház

Vid

15.9 M Ft
2 szoba
51 m2
Eladó családi ház
Eladó családi ház

Pápa

180 M Ft
5 + 2 szoba
360 m2
Eladó családi ház
Eladó családi ház

Tapolca

89.9 M Ft
5 szoba
120 m2
Eladó családi ház
Eladó családi ház

Vid

15.9 M Ft
2 szoba
51 m2
Eladó családi ház
Eladó családi ház

Tapolca

205 M Ft
6 szoba
338 m2
Eladó családi ház
Eladó családi ház

Csopak

266 M Ft
9 szoba
350 m2
Eladó családi ház
Eladó családi ház

Badacsonytördemic

180.95 M Ft
4 szoba
160 m2
Eladó ipari ingatlan
Eladó ipari ingatlan

Veszprém, Veszprémvölgy, Veszprémvölgy

360 M Ft
598 m2
Eladó téglalakás
Eladó téglalakás

Várpalota

41.9 M Ft
2 szoba
49 m2

Falusi CSOK ingatlanok

Eladó családi ház
Eladó családi ház

Murony

19.9 M Ft
3 szoba
94 m2
Eladó családi ház
Eladó családi ház

Balatonfenyves

430 M Ft
4 szoba
274 m2
Eladó családi ház
Eladó családi ház

Kenyeri

39.9 M Ft
3 szoba
94 m2
Eladó családi ház
Eladó családi ház

Szabadbattyán

30 M Ft
4 szoba
75 m2
Eladó családi ház
Eladó családi ház

Tatárszentgyörgy

60.5 M Ft
7 szoba
305 m2
Eladó családi ház
Eladó családi ház

Szakmár

12.9 M Ft
3 + 1 szoba
90 m2
Eladó családi ház
Eladó családi ház

Kertészsziget

26 M Ft
2 szoba
78 m2
Eladó családi ház
Eladó családi ház

Szentliszló

29.9 M Ft
3 + 2 szoba
157 m2

Falusi CSOK ingatlanok

Eladó ikerház
Eladó ikerház

Balatonudvari

129.9 M Ft
3 + 2 szoba
158 m2
Eladó családi ház
Eladó családi ház

Kertészsziget

26 M Ft
2 szoba
78 m2
Eladó családi ház
Eladó családi ház

Annavölgy

34.99 M Ft
4 szoba
80 m2
Eladó családi ház
Eladó családi ház

Tápszentmiklós

64.9 M Ft
5 szoba
110 m2
Eladó családi ház
Eladó családi ház

Boldva

25.99 M Ft
2 szoba
130 m2
Eladó családi ház
Eladó családi ház

Orci

119.9 M Ft
6 szoba
200 m2
Eladó családi ház
Eladó családi ház

Tápiógyörgye

44.9 M Ft
3 + 1 szoba
120 m2
Eladó családi ház
Eladó családi ház

Szakmár

12.9 M Ft
3 + 1 szoba
90 m2