BAM Living

Eladó téglalakás
Balatonfüred, 1. emelet

+ 3 kép 1/6
218 154 285 Ft218.154 M Ft 2 397 300 Ft/m2
3 szoba
91 m²
1. emelet
építés éve:2025

Részletes adatok

Fűtés: Egyéb
Emelet: 1. emelet
Extrák: Lift
Energetikai besorolás: A+++

Az OTP Bank lakáshitel ajánlataFizetett hirdetés

+36 70 369
Kiss Hortenzia Melinda
OTP Ingatlanpont Veszprém

Érdekel az OTP Bank kedvezményes lakáshitel ajánlata? *

* A kérdésre „Igen” válasz bejelölése esetén, az „Üzenet küldése” gombra kattintva kijelentem, hogy az OTP Bank Nyrt. Adatkezelési tájékoztatójának tartalmát megismertem és tudomásul vettem.

Eladó téglalakás leírása

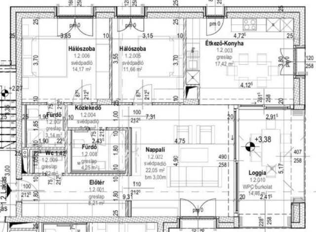
Balatonfüreden,a Balaton közelében, kiváló infrastrukturális ellátottságú környezetben, parkosított területen épülnek új építésű lakások, mely magas műszaki tartalommal és minőségi beépített anyagokkal kulcsrakészen eladók. A lakások közül mindenki megtalálja az igényének megfelelőt, a nettó 58nm-estől egészen a 130nm-es penthouse ingatlanokig. A közlekedési megközelíthetőség kiváló: gyalogosan is könnyen elérhető a központ, és a Balaton, a móló, strand és az üzletek. A lakások akadálymentesen megközelíthetőek a lakóházi bejáraton vagy a mélygarázson keresztül, a pinceszinttől a legfelső lakószintig felvonóval. Az épület vasbeton szerkezeti rendszerű. A lakások fűtését és hűtését fan-coilok biztosítják, míg a mellékhelyiségekben (fürdőszoba, háztartási helyiség, WC) elektromos padlófűtés került kialakításra. A kínált ingatlan alapterülete 92 m2, elrendezése pedig kivételes: tágas nappali amerikai konyhával, étkezővel, két hálószobával, két fürdőszobával, valamint nagy nyílászárókkal, amelyek biztosítják a természetes fényt és a panorámát.
A lakáshoz tartozik egy fedett loggia. A lakásokhoz mélygarázsok, felszíni parkolók és mozgáskorlátozott parkolók is megvásárolhatók. A belső burkolatok egyedileg választhatók, így minden lakás személyre szabható az új tulajdonos igényei szerint. Keressen bizalommal, egy részletes prezentációért, biztosan megtaláljuk az Önnek megfelelőt!
Érdeklődni: Kiss Hortenzia +36-70-369-8323

Referencia szám: M309867

Hirdetés feltöltve: 2026. 04. 29.

3 szobás téglalakások ára Balatonfüreden

Ebből az összehasonlításból megtudhatod, hogyan viszonyul a lakás ára a környékbeli téglalakások átlagos árához. Ez nem azt jelenti, hogy ennyivel olcsóbb vagy drágább, mint amennyit a lakás ér, hanem hogy ennyivel tér el a környékbeli átlagtól.

Ennek a m² ára
Balatonfüred m² ár
2397 e Ft
2335 e Ft -3%
Ennek az ára
Balatonfüred átlagár
218.154 M Ft m Ft
198.2 m Ft -10%

Az ingatlan elhelyezkedése

Cím: Balatonfüred, 1. emelet

Eladó téglalakások a környékről

Balatonfüred
Eladó téglalakás

Balatonfüred

166 M Ft
4 szoba
103 m²
Balatonfüred
Eladó téglalakás

Balatonfüred

268.834 M Ft
5 szoba
185 m²
Balatonfüred
Eladó téglalakás

Balatonfüred

166.576 M Ft
2 szoba
60 m²
Balatonfüred, Külterület
Eladó téglalakás

Balatonfüred

301.109 M Ft
4 szoba
133 m²
Balatonfüred
Eladó téglalakás

Balatonfüred

436.916 M Ft
3 szoba
142 m²
Balatonfüred
Eladó téglalakás

Balatonfüred

436.916 M Ft
3 szoba
142 m²
Balatonakarattya
Eladó téglalakás

Balatonakarattya

184.95 M Ft
2 szoba
70 m²
Balatonfüred, Külterület
Eladó téglalakás

Balatonfüred

203.148 M Ft
4 szoba
94 m²
Balatonfüred, Külterület
Eladó téglalakás

Balatonfüred

436.916 M Ft
4 szoba
216 m²
Balatonakarattya
Eladó téglalakás

Balatonakarattya

211.785 M Ft
3 szoba
81 m²
Balatonfüred, Külterület
Eladó téglalakás

Balatonfüred

435.728 M Ft
4 szoba
214 m²
Balatonakarattya
Eladó téglalakás

Balatonakarattya

239.192 M Ft
3 szoba
92 m²
Balatonalmádi
Eladó téglalakás

Balatonalmádi

103 M Ft
2 szoba
47 m²
Balatonakarattya
Eladó téglalakás

Balatonakarattya

186.639 M Ft
3 szoba
71 m²
Balatonakarattya
Eladó téglalakás

Balatonakarattya

159.487 M Ft
2 szoba
60 m²
Balatonfüred
Eladó téglalakás

Balatonfüred

217 M Ft
4 szoba
168 m²
Balatonakarattya
Eladó téglalakás

Balatonakarattya

213.055 M Ft
3 szoba
81 m²
Balatonfüred
Eladó téglalakás

Balatonfüred

165.06 M Ft
2 szoba
60 m²
Balatonfüred
Eladó téglalakás

Balatonfüred

399 M Ft
3 szoba
120 m²
Balatonfüred
Eladó téglalakás

Balatonfüred

166.58 M Ft
3 szoba
60 m²
Balatonfüred
Eladó téglalakás

Balatonfüred

262.676 M Ft
5 szoba
194 m²
Balatonakarattya
Eladó téglalakás

Balatonakarattya

205.384 M Ft
3 szoba
78 m²
Balatonfüred
Eladó téglalakás

Balatonfüred

143 M Ft
3 szoba
83 m²
Balatonfüred
Eladó téglalakás

Balatonfüred

217 M Ft
4 szoba
168 m²

Falusi CSOK ingatlanok

Ónod
Eladó családi ház

Ónod

25.9 M Ft
3 + 1 szoba
180 m²
Csány, Központi elhelyezkedés
Eladó családi ház

Csány

48.5 M Ft
3 szoba
97 m²
Apaj
Eladó családi ház

Apaj

52.9 M Ft
3 szoba
70 m²
Csatár
Eladó családi ház

Csatár

55 M Ft
6 szoba
260 m²
Kilimán
Eladó családi ház

Kilimán

69.9 M Ft
3 szoba
130 m²
Németkér
Eladó családi ház

Németkér

149.9 M Ft
2 szoba
540 m²
Szigetújfalu
Eladó családi ház

Szigetújfalu

71.65 M Ft
2 + 1 szoba
81 m²
Somlóvásárhely
Eladó családi ház

Somlóvásárhely

26.9 M Ft
2 + 1 szoba
102 m²