Aerogate Homes

Eladó családi ház
Vid

Figyelem!

Ez az ingatlan a 2019.07.01-től induló falusi CSOK által támogatott településen található

+ 12 kép 1/15
15 900 000 Ft15.9 M Ft 311 765 Ft/m2
2 szoba
51 m2
építés éve:1940

Részletes adatok

Állapot: Átlagos
Telekméret: 1452 m2
Fűtés: Egyéb
Energetikai besorolás: Nem adta meg a hirdető

Az OTP Bank lakáshitel ajánlataFizetett hirdetés

+36 70 315
Verrasztó Edina Irén
OTP Ingatlanpont Celldömölk

Érdekel az OTP Bank kedvezményes lakáshitel ajánlata? *

* A kérdésre „Igen” válasz bejelölése esetén, az „Üzenet küldése” gombra kattintva kijelentem, hogy az OTP Bank Nyrt. Adatkezelési tájékoztatójának tartalmát megismertem és tudomásul vettem.

Eladó családi ház leírása

Eladó parasztház Vid községben!

Vid Devecsertől északnyugatra, Nagyalásony és Iszkáz közt fekvő település. A térség legkisebb közigazgatási területű települései közé tartozik, mindössze három közvetlen szomszédja van: észak és kelet felől Nagyalásony, délkelet felől Somlószőlős, dél és nyugat felől pedig Kisszőlős. A Somló, ez a 431 méter magas vulkáni tanúhegy autóval mindössze 7 kilométerre található.

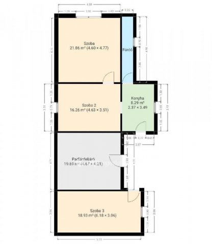
Az ingatlan, mely 51 m2, 1940-es években vályogból épült. Elosztását tekintve áll 2 szobából, egy konyha étkezőből, zuhanyzós fürdőszobából, melyben a WC is megtalálható. Az épülethez tartozik egy padlásfeljáró, mely tárolóként funkcionál és még egy szoba. Ezek lakótérbe vonásával tovább növelhető a ház alapterülete. A ház folytatásaként fatároló, mely autó tárolására is alkalmas, és egy pajta található. A szobákban megmaradt a rusztikus fagerenda, mely kellemes hangulatot ad az egész háznak.
A telek mérete 1452 m2, mely körbekerített. Az udvarban található még egy kis szerszámos tároló, illetve egy füstőlő, illetve egy ásott gyűrűs kút, melyben most is van locsolásra alkalmas víz. Alma, szilva és őszinbarackfa is megtalálható. A telek méretéből adódóan, illetve az itt található melléképületek, alkalmasak a gazdálkodásra, állatok tartására. illetve a kertészkedésre.
A közművek közül a villany és a víz áll rendelkezésre, a gázcsonk a kapunál van. Csatorna nincs a községben.
A tulajdonos elkezdte az ingatlan felújítását, teljesen új a villanyvezeték került kialakításra, illetve a vízvezeték is új. A két szoba laminált parketta burkolású, a fürdőszoba és a konyha járólappal burkolt. Az ablakok közül a konyhai, fürdőszobai és az egyik szoba már műanyagra cserélt. Az utca felőli ablakon rendőny is található. A bejárati ajtót is kicsrélték korszerű műanyagra. A felújítás befejezése az új tulajdonosra vár. A fürdőszobában a melegvizet villanybojler biztosítja, a két szobában fatüzelésű kályha található, mely kellemes meleget biztosít az egész házban.
Ajánlom az ingatlant akár hétvégi háznak, akár állandó lakásnak is.
Az OTP Ingatlanpont teljes körű ügyintézéssel áll az eladók és a vevők rendelkezésére. A kínálatunkból választott ingatlan finanszírozásához kedvezményes hitelkonstrukciót kínálunk. Az adásvételi szerződés megkötéséhez igény szerint megbízható ügyvédi közreműködést biztosítunk, és segítséget nyújtunk az adásvételhez kapcsolódó ügyek intézéséhez is. Az ingatlanról készült alaprajz, illetve fényképfelvételek az OTP Ingatlanpont szellemi tulajdonát képezik. Amennyiben felkeltette érdeklődését az általam kínált ingatlan, keressen bizalommal!
Ez az ingatlan megfelel. fix 3 %- os Otthon Start Hitelprogram feltételeinek.

15900000 Ft
Amennyiben az ingatlan felkeltette érdeklődését, esetleg bármivel kapcsolatban kérdése lenne, keressen Bizalommal! Verrasztó Edina: +36703156380

Referencia szám: M316141-ZE

Hirdetés feltöltve: 2025. 11. 18.

Az ingatlan elhelyezkedése

Cím: Vid

Eladó ingatlanok a környékről

Eladó családi ház
Eladó családi ház

Balatonfüred, Hóvirág utca

1350 M Ft
6 szoba
226 m2
Eladó családi ház
Eladó családi ház

Balatonfűzfő, Radnóti Miklós utca

85.9 M Ft
5 szoba
168 m2
Eladó családi ház
Eladó családi ház

Balatonfüred

449.9 M Ft
9 szoba
478 m2
Eladó nyaraló
Eladó nyaraló

Balatonfűzfő, Radnóti Miklós utca

85.9 M Ft
5 szoba
168 m2
Eladó családi ház
Eladó családi ház

Balatonalmádi

172.464 M Ft
4 szoba
129 m2
Eladó családi ház
Eladó családi ház

Bakonyjákó

22 M Ft
2 szoba
78 m2
Eladó családi ház
Eladó családi ház

Pápa

20.9 M Ft
3 szoba
77 m2
Eladó családi ház
Eladó családi ház

Pápa

49.9 M Ft
3 + 4 szoba
237 m2
Eladó ikerház
Eladó ikerház

Balatonfüred

169 M Ft
2 + 4 szoba
149 m2
Eladó családi ház
Eladó családi ház

Pápa, Hunyadi János utca

39 M Ft
3 szoba
125 m2
Eladó panellakás
Eladó panellakás

Veszprém

54.9 M Ft
3 szoba
53 m2
Eladó családi ház
Eladó családi ház

Lesencetomaj

90 M Ft
5 + 1 szoba
180 m2
Eladó családi ház
Eladó családi ház

Magyarpolány, Bajcsy

82.9 M Ft
3 szoba
91 m2
Eladó telek
Eladó telek

Révfülöp, Végmáli utca

37.9 M Ft
1717 m²
Eladó téglalakás
Eladó téglalakás

Pápa

35.89 M Ft
1 + 1 szoba
37 m2
Eladó panellakás
Eladó panellakás

Veszprém

53.9 M Ft
1 + 2 szoba
62 m2
Eladó családi ház
Eladó családi ház

Monoszló

1881.355 M Ft
9 szoba
2250 m2
Eladó családi ház
Eladó családi ház

Balatonszepezd

128 M Ft
4 + 2 szoba
96 m2
Eladó telek
Eladó telek

Bakonybél

33 M Ft
2098 m²
Eladó sorház
Eladó sorház

Ajka

49.99 M Ft
2 szoba
70 m2
Eladó családi ház
Eladó családi ház

Ábrahámhegy, Zsákutca

82.9 M Ft
3 + 2 szoba
110 m2
Eladó családi ház
Eladó családi ház

Csopak

266 M Ft
9 szoba
350 m2
Eladó családi ház
Eladó családi ház

Tapolca

205 M Ft
6 szoba
338 m2
Eladó családi ház
Eladó családi ház

Pápa

64.9 M Ft
4 + 1 szoba
246 m2

Falusi CSOK ingatlanok

Eladó családi ház
Eladó családi ház

Vaszar

29.5 M Ft
2 szoba
76 m2
Eladó családi ház
Eladó családi ház

Jászkarajenő

19.9 M Ft
3 szoba
81 m2
Eladó családi ház
Eladó családi ház

Váckisújfalu

40 M Ft
2 szoba
62 m2
Eladó családi ház
Eladó családi ház

Bag

16.9 M Ft
6 szoba
160 m2
Eladó ikerház
Eladó ikerház

Seregélyes

39.9 M Ft
4 szoba
150 m2
Eladó ikerház
Eladó ikerház

Bodajk

69.9 M Ft
5 szoba
108 m2
Eladó családi ház
Eladó családi ház

Újszilvás

20.9 M Ft
3 szoba
66 m2
Eladó családi ház
Eladó családi ház

Adásztevel

8.9 M Ft
2 szoba
63 m2

Falusi CSOK ingatlanok

Eladó családi ház
Eladó családi ház

Szabadbattyán

136 M Ft
5 szoba
226 m2
Eladó családi ház
Eladó családi ház

Somogysárd

19.9 M Ft
2 + 1 szoba
90 m2
Eladó családi ház
Eladó családi ház

Pétfürdő

85 M Ft
4 szoba
170 m2
Eladó családi ház
Eladó családi ház

Ceglédbercel

49.9 M Ft
4 szoba
120 m2
Eladó családi ház
Eladó családi ház

Pétfürdő

58 M Ft
4 szoba
84 m2
Eladó családi ház
Eladó családi ház

Vajszló

18.99 M Ft
2 szoba
91 m2
Eladó családi ház
Eladó családi ház

Ceglédbercel

64.9 M Ft
3 szoba
87 m2
Eladó családi ház
Eladó családi ház

Balatonkeresztúr

149 M Ft
4 szoba
140 m2