Eladó családi ház
Vid 
Figyelem!
Ez az ingatlan a 2019.07.01-től induló falusi CSOK által támogatott településen található
Részletes adatok
Az OTP Bank lakáshitel ajánlataFizetett hirdetés
Induló törlesztőrészlet
101 262 Ft /hóTörlesztőrészlet a 13. hónaptól
129 106 Ft /hóInduló törlesztőrészlet
135 016 Ft /hóTörlesztőrészlet a 13. hónaptól
172 142 Ft /hóA tájékoztatás nem teljes körű és nem minősül ajánlattételnek. Az OTP Évnyerő Lakáshitelei 1 éves türelmi idős kölcsönök, amellyel az első 12 hónapban alacsonyabb a havi törlesztőrészlet. A tőke törlesztését a 13. hónaptól kell megkezdeni.
Eladó családi ház leírása
Eladó parasztház Vid községben!
Vid Devecsertől északnyugatra, Nagyalásony és Iszkáz közt fekvő település. A térség legkisebb közigazgatási területű települései közé tartozik, mindössze három közvetlen szomszédja van: észak és kelet felől Nagyalásony, délkelet felől Somlószőlős, dél és nyugat felől pedig Kisszőlős. A Somló, ez a 431 méter magas vulkáni tanúhegy autóval mindössze 7 kilométerre található. 
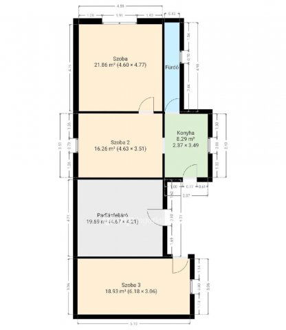
Az ingatlan, mely 51 m2, 1940-es években vályogból épült. Elosztását tekintve áll 2 szobából, egy konyha étkezőből, zuhanyzós fürdőszobából, melyben a WC is megtalálható. Az épülethez tartozik egy padlásfeljáró, mely tárolóként funkcionál és még egy szoba. Ezek lakótérbe vonásával tovább növelhető a ház alapterülete. A ház folytatásaként fatároló, mely autó tárolására is alkalmas, és egy pajta található. A szobákban megmaradt a rusztikus fagerenda, mely kellemes hangulatot ad az egész háznak. 
A telek mérete 1452 m2, mely körbekerített. Az udvarban található még egy kis szerszámos tároló, illetve egy füstőlő, illetve egy ásott gyűrűs kút, melyben most is van locsolásra alkalmas víz. Alma, szilva és őszinbarackfa is megtalálható. A telek méretéből adódóan, illetve az itt található melléképületek, alkalmasak a gazdálkodásra, állatok tartására. illetve a kertészkedésre. 
A közművek közül a villany és a víz áll rendelkezésre, a gázcsonk a kapunál van. Csatorna nincs a községben. 
A tulajdonos elkezdte az ingatlan felújítását, teljesen új a villanyvezeték került kialakításra, illetve a vízvezeték is új. A két szoba laminált parketta burkolású, a fürdőszoba és a konyha járólappal burkolt. Az ablakok közül a konyhai, fürdőszobai és az egyik szoba már műanyagra cserélt. Az utca felőli ablakon rendőny is található. A bejárati ajtót is kicsrélték korszerű műanyagra. A felújítás befejezése az új tulajdonosra vár. A fürdőszobában a melegvizet villanybojler biztosítja, a két szobában fatüzelésű kályha található, mely kellemes meleget biztosít az egész házban.
Ajánlom az ingatlant akár hétvégi háznak, akár állandó lakásnak is.
Az OTP Ingatlanpont teljes körű ügyintézéssel áll az eladók és a vevők rendelkezésére. A kínálatunkból választott ingatlan finanszírozásához kedvezményes hitelkonstrukciót kínálunk. Az adásvételi szerződés megkötéséhez igény szerint megbízható ügyvédi közreműködést biztosítunk, és segítséget nyújtunk az adásvételhez kapcsolódó ügyek intézéséhez is. Az ingatlanról készült alaprajz, illetve fényképfelvételek az OTP Ingatlanpont szellemi tulajdonát képezik. Amennyiben felkeltette érdeklődését az általam kínált ingatlan, keressen bizalommal!
Ez az ingatlan megfelel. fix 3 %- os Otthon Start Hitelprogram feltételeinek.
Hirdetés feltöltve: 2025. 10. 31. Utoljára módosítva: 2025. 10. 31.
Az ingatlan elhelyezkedése
Cím: Vid
 
 
 
 
 
 
 
 
 
 
 
 
 
 
 
 
 
 
 
 
 
 
 
 
 
 
 
 
 
 
 
 
 
 
 
 
 
 
 
 
 
 
