Metrodom

Eladó családi ház
Vid

Figyelem!

Ez az ingatlan a 2019.07.01-től induló falusi CSOK által támogatott településen található

+ 12 kép 1/15
15 900 000 Ft15.9 M Ft 311 765 Ft/m2
2 szoba
51 m2
építés éve:1940

Részletes adatok

Állapot: Átlagos
Telekméret: 1452 m2
Fűtés: Egyéb
Energetikai besorolás: Nem adta meg a hirdető

Az OTP Bank lakáshitel ajánlataFizetett hirdetés

+36 30 265
Molnár Márk István
OTP Ingatlanpont Pápa

Érdekel az OTP Bank kedvezményes lakáshitel ajánlata? *

* A kérdésre „Igen” válasz bejelölése esetén, az „Üzenet küldése” gombra kattintva kijelentem, hogy az OTP Bank Nyrt. Adatkezelési tájékoztatójának tartalmát megismertem és tudomásul vettem.

Eladó családi ház leírása

Eladó parasztház Vid községben!

Vid Devecsertől északnyugatra, Nagyalásony és Iszkáz közt fekvő település. A térség legkisebb közigazgatási területű települései közé tartozik, mindössze három közvetlen szomszédja van: észak és kelet felől Nagyalásony, délkelet felől Somlószőlős, dél és nyugat felől pedig Kisszőlős. A Somló, ez a 431 méter magas vulkáni tanúhegy autóval mindössze 7 kilométerre található.

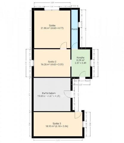
Az ingatlan, mely 51 m2, 1940-es években vályogból épült. Elosztását tekintve áll 2 szobából, egy konyha étkezőből, zuhanyzós fürdőszobából, melyben a WC is megtalálható. Az épülethez tartozik egy padlásfeljáró, mely tárolóként funkcionál és még egy szoba. Ezek lakótérbe vonásával tovább növelhető a ház alapterülete. A ház folytatásaként fatároló, mely autó tárolására is alkalmas, és egy pajta található. A szobákban megmaradt a rusztikus fagerenda, mely kellemes hangulatot ad az egész háznak.
A telek mérete 1452 m2, mely körbekerített. Az udvarban található még egy kis szerszámos tároló, illetve egy füstőlő, illetve egy ásott gyűrűs kút, melyben most is van locsolásra alkalmas víz. Alma, szilva és őszinbarackfa is megtalálható. A telek méretéből adódóan, illetve az itt található melléképületek, alkalmasak a gazdálkodásra, állatok tartására. illetve a kertészkedésre.
A közművek közül a villany és a víz áll rendelkezésre, a gázcsonk a kapunál van. Csatorna nincs a községben.
A tulajdonos elkezdte az ingatlan felújítását, teljesen új a villanyvezeték került kialakításra, illetve a vízvezeték is új. A két szoba laminált parketta burkolású, a fürdőszoba és a konyha járólappal burkolt. Az ablakok közül a konyhai, fürdőszobai és az egyik szoba már műanyagra cserélt. Az utca felőli ablakon rendőny is található. A bejárati ajtót is kicsrélték korszerű műanyagra. A felújítás befejezése az új tulajdonosra vár. A fürdőszobában a melegvizet villanybojler biztosítja, a két szobában fatüzelésű kályha található, mely kellemes meleget biztosít az egész házban.
Ajánlom az ingatlant akár hétvégi háznak, akár állandó lakásnak is.
Az OTP Ingatlanpont teljes körű ügyintézéssel áll az eladók és a vevők rendelkezésére. A kínálatunkból választott ingatlan finanszírozásához kedvezményes hitelkonstrukciót kínálunk. Az adásvételi szerződés megkötéséhez igény szerint megbízható ügyvédi közreműködést biztosítunk, és segítséget nyújtunk az adásvételhez kapcsolódó ügyek intézéséhez is. Az ingatlanról készült alaprajz, illetve fényképfelvételek az OTP Ingatlanpont szellemi tulajdonát képezik. Amennyiben felkeltette érdeklődését az általam kínált ingatlan, keressen bizalommal!
Ez az ingatlan megfelel. fix 3 %- os Otthon Start Hitelprogram feltételeinek.
Amennyiben felkeltette ez a remek ingatlan a figyelmét, vagy kérdése lenne keressen bizalommal!
Érdeklődni: Molnár Márk Telefon: 06 30 265 5725

Referencia szám: M316141-ZE

Hirdetés feltöltve: 2025. 11. 18. Utoljára módosítva: 2026. 01. 22.

Az ingatlan elhelyezkedése

Cím: Vid

Eladó ingatlanok a környékről

Eladó családi ház
Eladó családi ház

Lesencetomaj

90 M Ft
5 + 1 szoba
180 m2
Eladó nyaraló
Eladó nyaraló

Csopak

74.9 M Ft
2 + 3 szoba
106 m2
Eladó családi ház
Eladó családi ház

Felsőörs

119 M Ft
2 + 1 szoba
80 m2
Eladó családi ház
Eladó családi ház

Badacsonytomaj

165 M Ft
5 + 1 szoba
240 m2
Eladó családi ház
Eladó családi ház

Révfülöp

109 M Ft
5 szoba
187 m2
Eladó családi ház
Eladó családi ház

Balatonalmádi

349 M Ft
12 szoba
485 m2
Eladó családi ház
Eladó családi ház

Balatonfűzfő

270 M Ft
5 + 4 szoba
270 m2
Eladó családi ház
Eladó családi ház

Tapolca

89.9 M Ft
5 szoba
120 m2
Eladó családi ház
Eladó családi ház

Vid

15.9 M Ft
2 szoba
51 m2
Eladó családi ház
Eladó családi ház

Borszörcsök

34.9 M Ft
2 + 1 szoba
97 m2
Eladó családi ház
Eladó családi ház

Papkeszi

130 M Ft
5 szoba
360 m2
Eladó panellakás
Eladó panellakás

Pápa

38.5 M Ft
1 + 3 szoba
68 m2
Eladó családi ház
Eladó családi ház

Monoszló

1889.244 M Ft
9 szoba
2250 m2
Eladó családi ház
Eladó családi ház

Nemesszalók

41.9 M Ft
5 + 1 szoba
170 m2
Eladó családi ház
Eladó családi ház

Vid

15.9 M Ft
2 szoba
51 m2
Eladó családi ház
Eladó családi ház

Veszprém, Dózsaváros, Gubacs

159.9 M Ft
5 szoba
250 m2
Eladó családi ház
Eladó családi ház

Várpalota

55 M Ft
4 + 2 szoba
113 m2
Eladó téglalakás
Eladó téglalakás

Ajka, Ifjúság

38.9 M Ft
2 szoba
55 m2
Eladó nyaraló
Eladó nyaraló

Felsőörs

57.9 M Ft
1 + 2 szoba
70 m2
Eladó téglalakás
Eladó téglalakás

Veszprém

79.5 M Ft
3 szoba
91 m2
Eladó mezogazdasagi ingatlan
Eladó mezogazdasagi ingatlan

Balatonalmádi

15 M Ft
2177 m²
Eladó panellakás
Eladó panellakás

Várpalota, Árpád

56.9 M Ft
2 + 1 szoba
69 m2
Eladó családi ház
Eladó családi ház

Somlóvásárhely

26.9 M Ft
2 + 1 szoba
102 m2
Eladó téglalakás
Eladó téglalakás

Veszprém

79.5 M Ft
3 szoba
91 m2

Falusi CSOK ingatlanok

Eladó családi ház
Eladó családi ház

Ceglédbercel

67 M Ft
5 szoba
174 m2
Eladó családi ház
Eladó családi ház

Bátmonostor

22.9 M Ft
3 szoba
82 m2
Eladó családi ház
Eladó családi ház

Harsány

51.9 M Ft
5 szoba
140 m2
Eladó családi ház
Eladó családi ház

Nyáregyháza

19.99 M Ft
4 szoba
98 m2
Eladó családi ház
Eladó családi ház

Őrimagyarósd

48.9 M Ft
4 szoba
150 m2
Eladó családi ház
Eladó családi ház

Bugac

34.4 M Ft
3 szoba
70 m2
Eladó családi ház
Eladó családi ház

Mályi

84.9 M Ft
4 szoba
100 m2
Eladó családi ház
Eladó családi ház

Hercegszántó

7 M Ft
3 szoba
120 m2

Falusi CSOK ingatlanok

Eladó családi ház
Eladó családi ház

Eplény

99.9 M Ft
6 szoba
163 m2
Eladó családi ház
Eladó családi ház

Somogyszil

27.9 M Ft
3 szoba
140 m2
Eladó családi ház
Eladó családi ház

Darnózseli

79.9 M Ft
4 szoba
104 m2
Eladó családi ház
Eladó családi ház

Szigetcsép, Szabadság utca

62 M Ft
4 szoba
120 m2
Eladó családi ház
Eladó családi ház

Hercegszántó

7 M Ft
3 szoba
120 m2
Eladó családi ház
Eladó családi ház

Gyömöre

45.99 M Ft
2 szoba
118 m2
Eladó családi ház
Eladó családi ház

Bugac

34.4 M Ft
3 szoba
70 m2
Eladó családi ház
Eladó családi ház

Vilonya

27 M Ft
2 szoba
70 m2