Oasis Residence

Eladó családi ház
Veszprém, Dózsaváros

+ 6 kép 1/9
106 000 000 Ft106 M Ft 1 177 778 Ft/m2
4 szoba
90 m²
építés éve:2026

Részletes adatok

Telekméret: 455 m2
Fűtés: Egyéb
Komfort: Összkomfortos
Energetikai besorolás: Nem adta meg a hirdető

Az OTP Bank lakáshitel ajánlataFizetett hirdetés

+36 70 705
Hock Adrienn
referens

Érdekel az OTP Bank kedvezményes lakáshitel ajánlata? *

* A kérdésre „Igen” válasz bejelölése esetén, az „Üzenet küldése” gombra kattintva kijelentem, hogy az OTP Bank Nyrt. Adatkezelési tájékoztatójának tartalmát megismertem és tudomásul vettem.

Eladó családi ház leírása

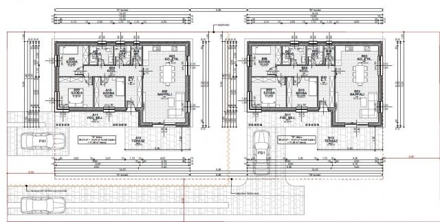
Eladó új építésű családi ház Gyulafirátóton!

A 910 m²-es telken két különálló családi ház kerül kialakításra saját kerttel.

Az épület 90,37 m2-es, 3 szoba + nappali kialakítású, 14,56 m2-es fedett bejáróval és 17 m2-es terasszal.

Elosztása:
- nappali/konyha/étkező: 36,34 m2
- szoba: 11,1 m2
- szoba: 9,9 m2
- szoba: 9,52 m2
- fürdőszoba: 5,2 m2
- gépészeti helység: 3,6 m2
- közlekedő: 4,95 m2
- előtér: 7,56 m2
- WC: 2,2 m2
---------------------------------------------
- fedett bejáró: 14,56 m2
- terasz: 17 m2

A projekt főbb műszaki paraméterei:
- 30-as tégla falazat
- 15 cm hungarocell szigetelés, fehér színű homlokzati vakolattal.
- monoblokkos, hőszivattyús fűtésrendszer, padlófűtéssel (a használati melegvizet is
előállítja)
- Antracit Leier Toscana cserép héjazat
- hő,- és hangszigetelt, 3 rétegű üvegezéssel ellátott műanyag nyílászárók.

A vételár a kulcsrakész állapotra vonatkozik, és magában foglalja a térkövezett gépkocsibeálló és a murvás behajtó kialakítását is.

Tereprendezést tartalmazza az ár, de a füvesítést és a telek körbe kerítését nem!

Az ingatlan konyhabútor nélkül kerül átadásra!

Bővebb műszaki részletekért, kérem keressen bizalommal!

Kivitelezés várható befejezése: 2026. III. negyedév

Amennyiben hirdetésem felkeltette az érdeklődését, kérem keressen elérhetőségeimen!

Teljeskörű szolgáltatást vállalok a megbízástól a beköltözésig:
- Ingatlanértékesítés
- Ingatlan értékbecslés
- Energetikai tanúsítvány
- Hitelügyintézés, Biztosítás
- Ügyvéd
- Lakberendezés 3D tervezéssel
- Napelemes rendszerek
- Épülettakarítás
- Kivitelezés, felújítás
- Villamos biztonsági felülvizsgálat

Hock Adrienn
Ingatlanszakértő, Ingatlanvagyon értékelő, Lakberendező

Hirdetés feltöltve: 2026. 04. 10. Utoljára módosítva: 2026. 05. 19.

4 szobás családi házak ára Veszprémben

Ebből az összehasonlításból megtudhatod, hogyan viszonyul a lakás ára a környékbeli családi házak átlagos árához. Ez nem azt jelenti, hogy ennyivel olcsóbb vagy drágább, mint amennyit a lakás ér, hanem hogy ennyivel tér el a környékbeli átlagtól.

Ennek a m² ára
Veszprém m² ár
1178 e Ft
934 e Ft -26%
Ennek az ára
Veszprém átlagár
106 M Ft m Ft
112.9 m Ft 6%

Az ingatlan elhelyezkedése

Cím: Veszprém, Dózsaváros

Eladó családi házak a környékről

Pápa
Eladó családi ház

Pápa

29.9 M Ft
4 szoba
100 m²
Veszprém
Eladó családi ház

Veszprém

80 M Ft
3 + 3 szoba
112 m²
Veszprém
Eladó családi ház

Veszprém

150 M Ft
2 + 2 szoba
100 m²
Veszprém
Eladó családi ház

Veszprém

110 M Ft
1 + 3 szoba
155 m²
Tapolca
Eladó családi ház

Tapolca

205 M Ft
6 szoba
338 m²
Pápa
Eladó családi ház

Pápa

54 M Ft
2 + 1 szoba
90 m²
Veszprém, Dózsaváros
Eladó családi ház

Veszprém

45 M Ft
2 szoba
76 m²
Monoszló
Eladó családi ház

Monoszló

1770.713 M Ft
9 szoba
2250 m²
Veszprém
Eladó családi ház

Veszprém

34.99 M Ft
2 szoba
67 m²
Veszprém
Eladó családi ház

Veszprém

150 M Ft
2 + 2 szoba
100 m²
Dörgicse
Eladó családi ház

Dörgicse

39.9 M Ft
2 + 1 szoba
66 m²
Monoszló
Eladó családi ház

Monoszló

1770.713 M Ft
9 szoba
2250 m²
Veszprém
Eladó családi ház

Veszprém

139.8 M Ft
4 szoba
157 m²
Ábrahámhegy
Eladó családi ház

Ábrahámhegy

190 M Ft
5 szoba
112 m²
Badacsonytördemic
Eladó családi ház

Badacsonytördemic

169.67 M Ft
4 szoba
160 m²
Veszprém, Belváros, Festő utca
Eladó családi ház

Veszprém

149 M Ft
5 + 1 szoba
195 m²
Tihany
Eladó családi ház

Tihany

390 M Ft
6 szoba
417 m²
Veszprém, Dózsaváros
Eladó családi ház

Veszprém

230 M Ft
6 + 3 szoba
268 m²
Veszprém
Eladó családi ház

Veszprém

149 M Ft
4 + 1 szoba
250 m²
Veszprém, Dózsaváros
Eladó családi ház

Veszprém

300 M Ft
5 szoba
320 m²
Veszprém
Eladó családi ház

Veszprém

189.99 M Ft
7 szoba
180 m²
Várpalota
Eladó családi ház

Várpalota

55 M Ft
4 + 2 szoba
113 m²
Monoszló
Eladó családi ház

Monoszló

1770.713 M Ft
9 szoba
2250 m²
Veszprém, Dózsaváros
Eladó családi ház

Veszprém

350 M Ft
10 szoba
310 m²

Falusi CSOK ingatlanok

Hegyeshalom, Margaréta utca 12
Eladó téglalakás

Hegyeshalom

35.92 M Ft
1 szoba
31 m²
Csátalja, Dózsa György utca
Eladó családi ház

Csátalja

30.5 M Ft
3 szoba
110 m²
Tihany
Eladó családi ház

Tihany

385 M Ft
5 szoba
200 m²
Szabadbattyán
Eladó családi ház

Szabadbattyán

139.9 M Ft
4 szoba
201 m²
Villány
Eladó családi ház

Villány

31 M Ft
1 szoba
35 m²
Németkér
Eladó családi ház

Németkér

149.9 M Ft
2 szoba
540 m²
Tihany
Eladó családi ház

Tihany

149 M Ft
5 szoba
270 m²
Mesztegnyő
Eladó családi ház

Mesztegnyő

23.8 M Ft
2 szoba
70 m²