Metrodom

Eladó családi ház
Szil

Figyelem!

Ez az ingatlan a 2019.07.01-től induló falusi CSOK által támogatott településen található

+ 9 kép 1/12
37 000 000 Ft37 M Ft 462 500 Ft/m2
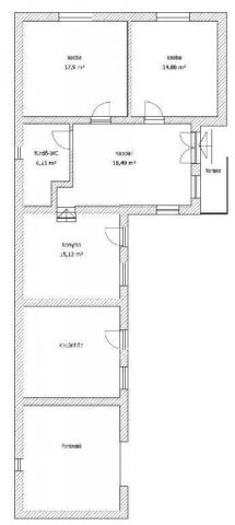
3 szoba
80 m²
építés éve:1965

Részletes adatok

Telekméret: 1553 m2
Fűtés: Gázkazán
Energetikai besorolás: Nem adta meg a hirdető

Az OTP Bank lakáshitel ajánlataFizetett hirdetés

+36 30 788
Szalai Melinda
referens

Érdekel az OTP Bank kedvezményes lakáshitel ajánlata? *

* A kérdésre „Igen” válasz bejelölése esetén, az „Üzenet küldése” gombra kattintva kijelentem, hogy az OTP Bank Nyrt. Adatkezelési tájékoztatójának tartalmát megismertem és tudomásul vettem.

Eladó családi ház leírása

Eladásra kínálunk Szil községben nagyon jó műszaki állapotú, 3 szobás, összkomfortos családi lakóházat, nagy telken melléképületekkel. A kertben termő gyümölcsfákkal, locsolásra alkalmassal kúttal. A ház tetőszerkezete és fedése felújított, a fűtésre és melegvíz ellátására alkalmas kombigázkazán új, kiegészítő fűtésként vegyes tüzelésű kazán van, radiátor minden helyiségben felszerelt. A villany-, és vízvezetékek két éven belül szintén felújításra kerültek. A nappaliban és konyhában egyedi klíma hűsít. CSOK PLUSZ és Falusi CSOK is igényelhető.
Szil község Győr-Moson-Sopron vármegyében, a Rábaközben, található Csornától 15 km-re. A faluban van iskola, óvoda, védőnői szolgálat, orvosi rendelő, fogorvos, húsbolt, élelmiszer és mezőgazdasági bolt is.

Referencia szám: M305627-ZE

Hirdetés feltöltve: 2026. 03. 12. Utoljára módosítva: 2026. 03. 12.

Az ingatlan elhelyezkedése

Cím: Szil

Eladó ingatlanok a környékről

Hegyeshalom
Eladó téglalakás

Hegyeshalom

61.3 M Ft
3 szoba
69 m²
Szil, Árpád utca
Eladó családi ház

Szil

35 M Ft
2 szoba
68 m²
Bakonypéterd
Eladó családi ház

Bakonypéterd

44.9 M Ft
3 szoba
92 m²
Szil
Eladó családi ház

Szil

37 M Ft
3 szoba
80 m²
Rábacsanak
Eladó családi ház

Rábacsanak

30 M Ft
2 szoba
107 m²
Jánossomorja
Eladó családi ház

Jánossomorja

50 M Ft
3 szoba
100 m²
Szil
Eladó családi ház

Szil

25.5 M Ft
2 + 1 szoba
81 m²
Fertőszentmiklós
Eladó téglalakás

Fertőszentmiklós

74.9 M Ft
2 szoba
75 m²
Harka
Eladó családi ház

Harka

99 M Ft
4 szoba
103 m²
Cirák
Eladó üzlethelyiség

Cirák

41.9 M Ft
3 szoba
570 m²
Lébény
Eladó családi ház

Lébény

62.99 M Ft
4 szoba
90 m²
Győrság
Eladó családi ház

Győrság

93.45 M Ft
4 szoba
96 m²
Fertőszéplak
Eladó családi ház

Fertőszéplak

92 M Ft
5 szoba
95 m²
Kapuvár
Eladó családi ház

Kapuvár

115 M Ft
5 szoba
222 m²
Sopron
Eladó családi ház

Sopron

170 M Ft
4 szoba
122 m²
Harka
Eladó családi ház

Harka

60.9 M Ft
3 + 1 szoba
67 m²
Enese
Eladó családi ház

Enese

64.664 M Ft
3 szoba
75 m²
Győrzámoly
Eladó családi ház

Győrzámoly

199 M Ft
6 szoba
230 m²
Cirák
Eladó ipari ingatlan

Cirák

41.9 M Ft
3 szoba
570 m²
Harka
Eladó családi ház

Harka

86.7 M Ft
3 szoba
102 m²
Kapuvár
Eladó családi ház

Kapuvár

22.99 M Ft
1 + 1 szoba
65 m²
Győr
Eladó családi ház

Győr

278 M Ft
6 szoba
339 m²
Szil
Eladó családi ház

Szil

25 M Ft
2 szoba
90 m²
Halászi
Eladó családi ház

Halászi

99.9 M Ft
5 szoba
240 m²

Falusi CSOK ingatlanok

Somogyszil
Eladó családi ház

Somogyszil

27.9 M Ft
3 szoba
140 m²
Tiszasziget, Sziget lakópark
Eladó sorház

Tiszasziget

33.9 M Ft
2 szoba
48 m²
Kemeneshőgyész
Eladó családi ház

Kemeneshőgyész

8 M Ft
2 szoba
60 m²
Pannonhalma, Szent Márton utca 9
Eladó családi ház

Pannonhalma

97.9 M Ft
3 szoba
100 m²
Vilonya
Eladó családi ház

Vilonya

135 M Ft
4 szoba
202 m²
Nagykörű, Jókai Mór utca 20
Eladó családi ház

Nagykörű

8.97 M Ft
1 + 1 szoba
101 m²
Magyarszék
Eladó családi ház

Magyarszék

48.5 M Ft
3 + 1 szoba
86 m²
Bakonycsernye
Eladó családi ház

Bakonycsernye

39 M Ft
3 szoba
350 m²

Falusi CSOK ingatlanok

Galgahévíz
Eladó családi ház

Galgahévíz

38 M Ft
3 szoba
101 m²
Tatárszentgyörgy
Eladó családi ház

Tatárszentgyörgy

67 M Ft
4 szoba
92 m²
Ceglédbercel
Eladó családi ház

Ceglédbercel

66.66 M Ft
3 szoba
92 m²
Balatonszemes
Eladó téglalakás

Balatonszemes

125.2 M Ft
2 szoba
50 m²
Bernecebaráti
Eladó családi ház

Bernecebaráti

86 M Ft
4 szoba
95 m²
Magyarszék
Eladó családi ház

Magyarszék

48.5 M Ft
3 + 1 szoba
86 m²
Úri
Eladó családi ház

Úri

260 M Ft
7 szoba
300 m²
Csemő
Eladó családi ház

Csemő

89 M Ft
4 szoba
140 m²