Eladó családi ház
Sajószöged

Figyelem!

Ez az ingatlan a 2019.07.01-től induló falusi CSOK által támogatott településen található

+ 17 kép 1/20
41 500 000 Ft41.5 M Ft 300 725 Ft/m2
3 szoba
138 m2
építés éve:1991

Részletes adatok

Állapot: Átlagos
Telekméret: 630 m2
Fűtés: Egyéb
Energetikai besorolás: Nem adta meg a hirdető

Az OTP Bank lakáshitel ajánlataFizetett hirdetés

+36 70 322
Piskóti Tibor Lajos
OTP Ingatlanpont Miskolc Szemere

Érdekel az OTP Bank kedvezményes lakáshitel ajánlata? *

* A kérdésre „Igen” válasz bejelölése esetén, az „Üzenet küldése” gombra kattintva kijelentem, hogy az OTP Bank Nyrt. Adatkezelési tájékoztatójának tartalmát megismertem és tudomásul vettem.

Eladó családi ház leírása

Családi ház eladó Sajószögeden

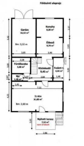
138 m2-es hagyományos szerkezetű családi házat kínálok eladásra rendezett, családi házas környezetben. Az 1991-ben épült ingatlan részben alápincézett, gázszilikát falazatú, a tetőn cserép van. Fűtéséről gázkazán gondoskodik. A földszinten egy nagyméretű nappali, WC, fürdő, konyha-étkező előszoba található, a tetőtéri részben egy zuhanyzós fürdőszoba WC-vel, 2 szoba és egy előtéri helyiség. A pinceszintre kintről jutunk le, itt több különálló fakk található, az egyikben műhely rész, a másikban a gázkazán és a vegyes tüzelésű kazán. A kert hátsó részén több melléképület van, ezek nincsenek jó állapotban. A földszinti részhez építettek egy teraszt, ami a képeken is látszik, ez viszont nincs feltüntetve a térképszelvényen.
________________________________________
Főbb jellemzők:
? Alapterület: 3 szoba
? telek: 630 m2
? Építés éve: 1991
? Szerkezet: Hagyományos, részben alápincézett, földszint+tetőtér beépítés, pince
? Állapot: Közepes állapotú, felújításra szorul
? Közművek: Gázkazánnal fűtött. Melegvíz-ellátás jelenleg nincs, a villanybojler hiányzik.
? Kiegészítők: Különálló, de rossz állapotú melléképületek (állattartásra), amelyek értéket nem képviselnek. A ház mögötti terasz a térképmásolaton nem szerepel.
________________________________________
Fontos információk:
? Az ingatlan jelenlegi állapotában nem alkalmas államilag támogatott hitel felvételére.
? Csak készpénzes vevők jelentkezését várjuk.
Ideális választás azoknak, akik egy megbízható szerkezetű házat keresnek, amit saját ízlésük szerint, felújítással alakíthatnak ki.
Amennyiben felkeltettem érdeklődését, keressen bizalommal!
AZ ingatlan csak nálunk vásárolható meg!

Referencia szám: M312156

Hirdetés feltöltve: 2025. 10. 21. Utoljára módosítva: 2025. 10. 21.

3 szobás családi házak ára Sajószögeden

Ebből az összehasonlításból megtudhatod, hogyan viszonyul a lakás ára a környékbeli családi házak átlagos árához. Ez nem azt jelenti, hogy ennyivel olcsóbb vagy drágább, mint amennyit a lakás ér, hanem hogy ennyivel tér el a környékbeli átlagtól.

Ennek a m² ára
Sajószöged m² ár
301 e Ft
457 e Ft 34%
Ennek az ára
Sajószöged átlagár
41.5 M Ft m Ft
53.4 m Ft 22%

Az ingatlan elhelyezkedése

Cím: Sajószöged

Eladó ingatlanok a környékről

Eladó téglalakás
Eladó téglalakás

Miskolc

29.95 M Ft
2 + 1 szoba
55 m2
Eladó családi ház
Eladó családi ház

Miskolc

69 M Ft
2 + 2 szoba
96 m2
Eladó családi ház
Eladó családi ház

Miskolc

25.9 M Ft
4 szoba
148 m2
Eladó téglalakás
Eladó téglalakás

Miskolc

54.9 M Ft
3 szoba
103 m2
Eladó családi ház
Eladó családi ház

Baktakék

16 M Ft
4 + 1 szoba
170 m2
Eladó családi ház
Eladó családi ház

Sajószöged

41.5 M Ft
3 szoba
138 m2
Eladó családi ház
Eladó családi ház

Ózd

13 M Ft
5 szoba
150 m2
Eladó családi ház
Eladó családi ház

Ináncs

19.5 M Ft
3 + 2 szoba
107 m2
Eladó családi ház
Eladó családi ház

Ózd

25.99 M Ft
4 szoba
198 m2
Eladó telek
Eladó telek

Miskolc, Görömböly, Bacsinszky András utca

31.9 M Ft
1374 m²
1374 m2
Eladó családi ház
Eladó családi ház

Tarcal

19.9 M Ft
3 szoba
110 m2
Eladó családi ház
Eladó családi ház

Miskolc

25.9 M Ft
3 + 1 szoba
75 m2
Eladó családi ház
Eladó családi ház

Ózd, Ózd falu, 48-as út

39.9 M Ft
3 + 1 szoba
300 m2
Eladó családi ház
Eladó családi ház

Mezőkövesd

29.9 M Ft
3 szoba
72 m2
Eladó családi ház
Eladó családi ház

Sajószöged

25.9 M Ft
4 + 1 szoba
93 m2
Eladó családi ház
Eladó családi ház

Sajónémeti, Szabadság utca

13.5 M Ft
3 + 2 szoba
120 m2
Eladó családi ház
Eladó családi ház

Gönc, Kossuth Lajos utca

26 M Ft
2 + 1 szoba
130 m2
Eladó családi ház
Eladó családi ház

Miskolc, Losonczy István utca

87.999 M Ft
3 szoba
90 m2
Eladó mezogazdasagi ingatlan
Eladó mezogazdasagi ingatlan

Harsány

1.85 M Ft
40 m²
40 m2
Eladó családi ház
Eladó családi ház

Sajószöged, Vasút út

19.9 M Ft
2 szoba
61 m2
Eladó családi ház
Eladó családi ház

Ónod

20.99 M Ft
3 szoba
80 m2
Eladó családi ház
Eladó családi ház

Gönc

20.5 M Ft
2 szoba
80 m2
Eladó családi ház
Eladó családi ház

Ózd

8.6 M Ft
5 szoba
160 m2
Eladó téglalakás
Eladó téglalakás

Berente

18 M Ft
2 szoba
49 m2

Falusi CSOK ingatlanok

Eladó családi ház
Eladó családi ház

Tiszalúc

9 M Ft
3 + 2 szoba
130 m2
Eladó családi ház
Eladó családi ház

Kondorfa, Alvég 139

13.3 M Ft
1 + 1 szoba
123 m2
Eladó családi ház
Eladó családi ház

Tápiógyörgye

6.5 M Ft
2 szoba
62 m2
Eladó családi ház
Eladó családi ház

Bezenye

84.9 M Ft
4 + 1 szoba
145 m2
Eladó családi ház
Eladó családi ház

Kadarkút

39.9 M Ft
5 + 1 szoba
150 m2
Eladó családi ház
Eladó családi ház

Öttömös, Béke utca 13. Hivatkozási szám: 006212

19.11 M Ft
1 + 1 szoba
102 m2
Eladó családi ház
Eladó családi ház

Balatonkeresztúr, Dózsa György u. 29

145 M Ft
5 szoba
150 m2
Eladó családi ház
Eladó családi ház

Hévízgyörk, Fenyves utca

149 M Ft
4 szoba
220 m2

Falusi CSOK ingatlanok

Eladó téglalakás
Eladó téglalakás

Felsőszentiván, Jókai Mór u 9 fszt 2

17.56 M Ft
1 + 1 szoba
90 m2
Eladó családi ház
Eladó családi ház

Makád

32.8 M Ft
4 szoba
141 m2
Eladó családi ház
Eladó családi ház

Zalavég, Petőfi Sándor utca 49

8.74 M Ft
1 + 1 szoba
84 m2
Eladó téglalakás
Eladó téglalakás

Tiszakeszi

12.9 M Ft
2 + 1 szoba
80 m2
Eladó családi ház
Eladó családi ház

Bácsbokod

12.9 M Ft
3 szoba
90 m2
Eladó családi ház
Eladó családi ház

Tápiógyörgye

6.5 M Ft
2 szoba
62 m2
Eladó családi ház
Eladó családi ház

Ceglédbercel

45 M Ft
2 + 1 szoba
127 m2
Eladó családi ház
Eladó családi ház

Beled, Fő utca 101

18.62 M Ft
1 + 1 szoba
119 m2