Eladó családi ház
Ináncs

Figyelem!

Ez az ingatlan a 2019.07.01-től induló falusi CSOK által támogatott településen található

+ 16 kép 1/19
19 500 000 Ft19.5 M Ft 182 243 Ft/m2
3 + 2 szoba
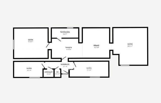
107 m2
építés éve:1965

Részletes adatok

Állapot: Átlagos
Telekméret: 1463 m2
Fűtés: Gázkazán
Energetikai besorolás: Nem adta meg a hirdető

Az OTP Bank lakáshitel ajánlataFizetett hirdetés

+36 70 322
Piskóti Tibor Lajos
OTP Ingatlanpont Miskolc Szemere

Érdekel az OTP Bank kedvezményes lakáshitel ajánlata? *

* A kérdésre „Igen” válasz bejelölése esetén, az „Üzenet küldése” gombra kattintva kijelentem, hogy az OTP Bank Nyrt. Adatkezelési tájékoztatójának tartalmát megismertem és tudomásul vettem.

Eladó családi ház leírása

Eladó Ináncs községben 107m2 családi ház, 1463 m2 telken. Az ingatlan tehermentes, belülről fel lett újitva 10 évvel ezelőtt. Térképen vannak hiányosságok amely fennmaradási engedéllyel rendbe hozható. Bölcsöde, óvoda, általános iskola, 3 élelmiszerbolt, posta, orvosi rendelő, fogorvosi rendelő, vasútállomás, buszmegálló, öregek napközije található a településen. A 3-as számú fő út 2 km-re. M30 autópálya felhajtó 8-km-re. Munkába bejárás Miskolc és Kassa felé vonattal is elérhető.
OTP Banki hátterünknek köszönhetően finanszírozási igényekben (pl. Otthon Start Hitelprogram , Babaváró, Falusi CSOK, CSOK Plusz, Lakáshitel, Személyi kölcsön stb.), illetve biztosítások tekintetében is díjmentesen, soron kívüli ügyintézéssel segítem ügyfeleim!
Érdeklődés esetén: M310432 referenciaszámra hivatkozzon. Jöjjön nézzük meg együtt!

Referencia szám: M310432

Hirdetés feltöltve: 2025. 10. 21. Utoljára módosítva: 2025. 10. 21.

Az ingatlan elhelyezkedése

Cím: Ináncs

Eladó ingatlanok a környékről

Eladó családi ház
Eladó családi ház

Sajónémeti, Szabadság utca

13.5 M Ft
3 + 2 szoba
120 m2
Eladó családi ház
Eladó családi ház

Ináncs

11.5 M Ft
2 szoba
67 m2
Eladó családi ház
Eladó családi ház

Ózd, Ózd falu, 48-as út

39.9 M Ft
3 + 1 szoba
300 m2
Eladó nyaraló
Eladó nyaraló

Háromhuta

42.9 M Ft
6 szoba
200 m2
Eladó családi ház
Eladó családi ház

Szikszó

89.9 M Ft
3 szoba
100 m2
Eladó családi ház
Eladó családi ház

Kisgyőr, Rákóczi

59.9 M Ft
3 szoba
100 m2
Eladó téglalakás
Eladó téglalakás

Miskolc

29.95 M Ft
2 + 1 szoba
55 m2
Eladó nyaraló
Eladó nyaraló

Arló, Kohász út

6 M Ft
1 szoba
20 m2
Eladó családi ház
Eladó családi ház

Ónod

6.49 M Ft
2 szoba
52 m2
Eladó telek
Eladó telek

Miskolc, Görömböly, Bacsinszky András utca

31.9 M Ft
1374 m²
1374 m2
Eladó családi ház
Eladó családi ház

Ináncs

26 M Ft
2 szoba
70 m2
Eladó családi ház
Eladó családi ház

Ináncs

33.6 M Ft
4 szoba
140 m2
Eladó családi ház
Eladó családi ház

Ináncs

11.5 M Ft
2 szoba
67 m2
Eladó mezogazdasagi ingatlan
Eladó mezogazdasagi ingatlan

Harsány

1.85 M Ft
40 m²
40 m2
Eladó családi ház
Eladó családi ház

Ózd

8.6 M Ft
5 szoba
160 m2
Eladó családi ház
Eladó családi ház

Miskolc

55 M Ft
4 szoba
150 m2
Eladó családi ház
Eladó családi ház

Ináncs

33.6 M Ft
4 szoba
140 m2
Eladó családi ház
Eladó családi ház

Ózd

13 M Ft
5 szoba
150 m2
Eladó családi ház
Eladó családi ház

Ináncs

11.5 M Ft
2 szoba
67 m2
Eladó családi ház
Eladó családi ház

Miskolc, Vargahegy, Margaréta utca

14.5 M Ft
1 szoba
42 m2
Eladó panellakás
Eladó panellakás

Miskolc

25.4 M Ft
2 szoba
55 m2
Eladó panellakás
Eladó panellakás

Miskolc

28.5 M Ft
2 szoba
49 m2
Eladó családi ház
Eladó családi ház

Ónod, Nyéki utca

20.7 M Ft
2 + 1 szoba
90 m2
Eladó családi ház
Eladó családi ház

Ózd

25.99 M Ft
4 szoba
198 m2

Falusi CSOK ingatlanok

Eladó családi ház
Eladó családi ház

Kerkaszentkirály, Béke utca 80

21.05 M Ft
1 + 1 szoba
165 m2
Eladó családi ház
Eladó családi ház

Galgagyörk

46.9 M Ft
4 szoba
105 m2
Eladó családi ház
Eladó családi ház

Balatonkeresztúr, Dózsa György u. 29

145 M Ft
5 szoba
150 m2
Eladó családi ház
Eladó családi ház

Öttömös, Béke utca 13. Hivatkozási szám: 006212

19.11 M Ft
1 + 1 szoba
102 m2
Eladó családi ház
Eladó családi ház

Zalakomár

12 M Ft
3 szoba
72 m2
Eladó családi ház
Eladó családi ház

Pusztamonostor

22 M Ft
3 szoba
86 m2
Eladó családi ház
Eladó családi ház

Kondorfa, Alvég 139

13.3 M Ft
1 + 1 szoba
123 m2
Eladó családi ház
Eladó családi ház

Babócsa, Béke utca 9

5.08 M Ft
1 + 1 szoba
83 m2

Falusi CSOK ingatlanok

Eladó családi ház
Eladó családi ház

Tök

125.4 M Ft
4 szoba
135 m2
Eladó családi ház
Eladó családi ház

Simonfa, Dózsa György utca

16.5 M Ft
1 szoba
40 m2
Eladó családi ház
Eladó családi ház

Bácsbokod

12.9 M Ft
3 szoba
90 m2
Eladó családi ház
Eladó családi ház

Balatonvilágos

78 M Ft
3 szoba
43 m2
Eladó családi ház
Eladó családi ház

Kadarkút

39.9 M Ft
5 + 1 szoba
150 m2
Eladó családi ház
Eladó családi ház

Ceglédbercel

23 M Ft
2 + 1 szoba
80 m2
Eladó családi ház
Eladó családi ház

Tésenfa, Kossuth utca 23/a

5.55 M Ft
1 + 1 szoba
109 m2
Eladó családi ház
Eladó családi ház

Bezenye

84.9 M Ft
4 + 1 szoba
145 m2