Kedves Felhasználónk! Rendszerfrissítés miatt az oldalunk 2026. február 9-én 12 órától várhatóan 20 óráig nem lesz elérhető. Köszönjük megértésed!
Aerogate Homes

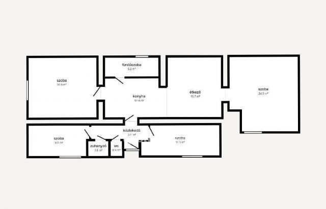
Eladó családi ház
Ináncs

Figyelem!

Ez az ingatlan a 2019.07.01-től induló falusi CSOK által támogatott településen található

+ 16 kép 1/19
19 500 000 Ft19.5 M Ft 182 243 Ft/m2
3 + 2 szoba
107 m2
építés éve:1965

Részletes adatok

Állapot: Átlagos
Telekméret: 1463 m2
Fűtés: Gázkazán
Energetikai besorolás: Nem adta meg a hirdető

Az OTP Bank lakáshitel ajánlataFizetett hirdetés

+36 30 709
Oroszné Ferencsák Mária
OTP Ingatlanpont Miskolc Szemere

Érdekel az OTP Bank kedvezményes lakáshitel ajánlata? *

* A kérdésre „Igen” válasz bejelölése esetén, az „Üzenet küldése” gombra kattintva kijelentem, hogy az OTP Bank Nyrt. Adatkezelési tájékoztatójának tartalmát megismertem és tudomásul vettem.

Eladó családi ház leírása

Eladó Ináncs községben 107m2 családi ház, 1463 m2 telken. Az ingatlan tehermentes, belülről fel lett újitva 10 évvel ezelőtt. Térképen vannak hiányosságok amely fennmaradási engedéllyel rendbe hozható. Bölcsöde, óvoda, általános iskola, 3 élelmiszerbolt, posta, orvosi rendelő, fogorvosi rendelő, vasútállomás, buszmegálló, öregek napközije található a településen. A 3-as számú fő út 2 km-re. M30 autópálya felhajtó 8-km-re. Munkába bejárás Miskolc és Kassa felé vonattal is elérhető.
OTP Banki hátterünknek köszönhetően finanszírozási igényekben (pl. Otthon Start Hitelprogram , Babaváró, Falusi CSOK, CSOK Plusz, Lakáshitel, Személyi kölcsön stb.), illetve biztosítások tekintetében is díjmentesen, soron kívüli ügyintézéssel segítem ügyfeleim!
Érdeklődés esetén: M310432 referenciaszámra hivatkozzon. Jöjjön nézzük meg együtt!

Hirdetés feltöltve: 2025. 11. 10. Utoljára módosítva: 2026. 02. 04.

Az ingatlan elhelyezkedése

Cím: Ináncs

Eladó ingatlanok a környékről

Eladó téglalakás
Eladó téglalakás

Miskolc

29.9 M Ft
2 szoba
58 m2
Eladó családi ház
Eladó családi ház

Ináncs

26 M Ft
2 szoba
70 m2
Eladó családi ház
Eladó családi ház

Kurityán

15.8 M Ft
3 szoba
68 m2
Eladó családi ház
Eladó családi ház

Varbóc, Dózsa György utca

15.5 M Ft
1 + 1 szoba
60 m2
Eladó családi ház
Eladó családi ház

Miskolc, Belváros, Őz utca

24.5 M Ft
2 szoba
81 m2
Eladó családi ház
Eladó családi ház

Miskolc

25.9 M Ft
4 szoba
148 m2
Eladó téglalakás
Eladó téglalakás

Mezőkövesd

39.9 M Ft
4 szoba
115 m2
Eladó családi ház
Eladó családi ház

Miskolc

110 M Ft
6 szoba
199 m2
Eladó panellakás
Eladó panellakás

Miskolc

39.5 M Ft
2 + 1 szoba
63 m2
Eladó családi ház
Eladó családi ház

Komlóska

55.9 M Ft
7 szoba
247 m2
Eladó családi ház
Eladó családi ház

Ózd

15 M Ft
7 szoba
225 m2
Eladó családi ház
Eladó családi ház

Tarcal

19.9 M Ft
3 szoba
110 m2
Eladó családi ház
Eladó családi ház

Telkibánya

65 M Ft
4 + 1 szoba
85 m2
Eladó panellakás
Eladó panellakás

Miskolc

25.9 M Ft
1 + 1 szoba
35 m2
Eladó családi ház
Eladó családi ház

Hernádkércs

29.5 M Ft
6 + 2 szoba
300 m2
Eladó családi ház
Eladó családi ház

Miskolc

39.9 M Ft
7 szoba
130 m2
Eladó családi ház
Eladó családi ház

Edelény

31.5 M Ft
2 szoba
75 m2
Eladó téglalakás
Eladó téglalakás

Miskolc

41 M Ft
2 szoba
50 m2
Eladó családi ház
Eladó családi ház

Ózd

26.5 M Ft
3 szoba
100 m2
Eladó sorház
Eladó sorház

Felsőzsolca

74.99 M Ft
4 szoba
128 m2
Eladó családi ház
Eladó családi ház

Miskolc

54.99 M Ft
4 szoba
103 m2
Eladó családi ház
Eladó családi ház

Miskolc

17.999 M Ft
1 szoba
42 m2
Eladó sorház
Eladó sorház

Felsőzsolca

74.99 M Ft
4 szoba
128 m2
Eladó panellakás
Eladó panellakás

Miskolc

25.9 M Ft
1 + 1 szoba
35 m2

Falusi CSOK ingatlanok

Eladó családi ház
Eladó családi ház

Mencshely

99 M Ft
3 szoba
126 m2
Eladó családi ház
Eladó családi ház

Bábolna

69.9 M Ft
5 szoba
172 m2
Eladó családi ház
Eladó családi ház

Tápiógyörgye

44.9 M Ft
3 + 1 szoba
120 m2
Eladó családi ház
Eladó családi ház

Kál

31 M Ft
4 szoba
307 m2
Eladó családi ház
Eladó családi ház

Újhartyán

89.9 M Ft
4 szoba
99 m2
Eladó családi ház
Eladó családi ház

Gasztony

29.4 M Ft
2 szoba
83 m2
Eladó családi ház
Eladó családi ház

Alattyán

8.5 M Ft
1 + 1 szoba
70 m2
Eladó családi ház
Eladó családi ház

Ivánc

13.5 M Ft
2 szoba
64 m2

Falusi CSOK ingatlanok

Eladó családi ház
Eladó családi ház

Marcaltő

26 M Ft
3 szoba
103 m2
Eladó családi ház
Eladó családi ház

Kenyeri

39.9 M Ft
3 szoba
94 m2
Eladó családi ház
Eladó családi ház

Bábolna

69.9 M Ft
5 szoba
172 m2
Eladó családi ház
Eladó családi ház

Sumony

19 M Ft
4 szoba
120 m2
Eladó családi ház
Eladó családi ház

Alattyán

8.5 M Ft
1 + 1 szoba
70 m2
Eladó családi ház
Eladó családi ház

Legyesbénye, Monoki út 17

11.86 M Ft
1 + 1 szoba
126 m2
Eladó téglalakás
Eladó téglalakás

Balatonszemes

123.3 M Ft
2 szoba
70 m2
Eladó családi ház
Eladó családi ház

Bugac

17 M Ft
3 szoba
80 m2