Eladó téglalakás
Miskolc, 4. emelet

+ 17 kép 1/20
54 900 000 Ft54.9 M Ft 533 010 Ft/m2
3 szoba
103 m2
4. emelet
építés éve:2010

Részletes adatok

Állapot: Felújított
Fűtés: Gázkazán
Energetikai besorolás: Nem adta meg a hirdető

Az OTP Bank lakáshitel ajánlataFizetett hirdetés

+36 70 322
Piskóti Tibor Lajos
OTP Ingatlanpont Miskolc Szemere

Érdekel az OTP Bank kedvezményes lakáshitel ajánlata? *

* A kérdésre „Igen” válasz bejelölése esetén, az „Üzenet küldése” gombra kattintva kijelentem, hogy az OTP Bank Nyrt. Adatkezelési tájékoztatójának tartalmát megismertem és tudomásul vettem.

Eladó téglalakás leírása

Eladó modern tetőtéri lakás Miskolc szívében, a Csabai kapu közkedvelt részén!

Miskolcon, a Petneházy bérházaknál kínálunk megvételre egy különleges hangulatú, világos, tetőtéri lakást, amely nemcsak kényelmes otthonként, de kiváló befektetésként is megállja a helyét!

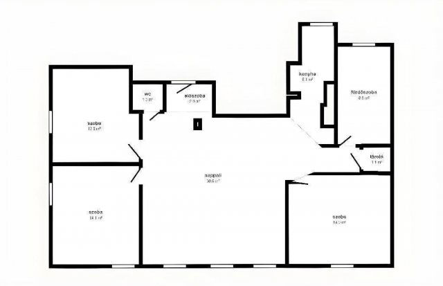
A lakás összesen 103 négyzetméter alapterületű, amelyből 69 nm hasznos területként szolgál, tökéletes elosztásának köszönhetően pedig minden négyzetméter jól kihasználható.

Az ingatlan 3 külön nyíló szobával és egy tágas nappalival rendelkezik, így akár egy 4-5 fős család számára is ideális. A nappalit Velux tetőtéri ablakok árasztják el fénnyel, amelyek külső hővédő és belső fényzáró rolókkal vannak felszerelve, így az év minden napján kellemes, otthonos hangulat uralkodik a lakásban.

A gázcirkós fűtésrendszer, padló- és radiátoros fűtés kombinációjával, garantálja a komfortos meleget a hidegebb hónapokban, míg a külön beépített hűtő-fűtő klíma a nyári hőséget teszi elviselhetővé. A lakás alacsony fenntartási költségei pedig még vonzóbbá teszik.

Az ingatlan elhelyezkedése kiváló, a közelben minden fontos szolgáltatás megtalálható: óvoda, iskola, üzletek (pl. Penny), posta , és a belváros csupán 5-8 perc alatt, három buszmegállónyi távolságra elérhető.

Befektetésként is kiváló választás a közeli Miskolci Egyetemnek köszönhetően stabil bérlői kör biztosított. A lakás szobái jól elkülöníthetők, így akár külön-külön is bérbe adhatók.

Parkolás díjmentesen megoldható az épület előtt.
Központi helyen fekszik az ingatlan. Iskola, óvoda, bolt, tömegközlekedés, autópálya 5 percen belül elérhető.
OTP Banki hátterünknek köszönhetően finanszírozási igényekben (pl. Otthon Start Hitelprogram , Babaváró, Falusi CSOK, CSOK Plusz, Lakáshitel, Személyi kölcsön stb.), illetve biztosítások tekintetében is díjmentesen, soron kívüli ügyintézéssel segítem ügyfeleim! Referenciaszám: M314048

Referencia szám: M314048

Hirdetés feltöltve: 2025. 10. 21. Utoljára módosítva: 2025. 10. 21.

3 szobás téglalakások ára Miskolcon

Ebből az összehasonlításból megtudhatod, hogyan viszonyul a lakás ára a környékbeli téglalakások átlagos árához. Ez nem azt jelenti, hogy ennyivel olcsóbb vagy drágább, mint amennyit a lakás ér, hanem hogy ennyivel tér el a környékbeli átlagtól.

Ennek a m² ára
Miskolc m² ár
533 e Ft
691 e Ft 23%
Ennek az ára
Miskolc átlagár
54.9 M Ft m Ft
51 m Ft -8%

Az ingatlan elhelyezkedése

Cím: Miskolc, 4. emelet

Eladó téglalakások a környékről

Eladó téglalakás
Eladó téglalakás

Miskolc

24.9 M Ft
2 szoba
52 m2
Eladó téglalakás
Eladó téglalakás

Sárospatak, Tompa Mihály utca

23.9 M Ft
2 szoba
62 m2
Eladó téglalakás
Eladó téglalakás

Miskolc

49 M Ft
2 szoba
51 m2
Eladó téglalakás
Eladó téglalakás

Miskolc

59 M Ft
3 szoba
60 m2
Eladó téglalakás
Eladó téglalakás

Miskolc, Új Diósgyőr, Torontáli utca

19.99 M Ft
2 szoba
49 m2
Eladó téglalakás
Eladó téglalakás

Tiszaújváros

54.6 M Ft
2 szoba
80 m2
Eladó téglalakás
Eladó téglalakás

Miskolc

49 M Ft
2 szoba
51 m2
Eladó téglalakás
Eladó téglalakás

Miskolc

39.9 M Ft
1 + 2 szoba
56 m2
Eladó téglalakás
Eladó téglalakás

Miskolc

24.9 M Ft
2 szoba
52 m2
Eladó téglalakás
Eladó téglalakás

Miskolc

59 M Ft
3 szoba
60 m2
Eladó téglalakás
Eladó téglalakás

Miskolc

11.5 M Ft
2 szoba
59 m2
Eladó téglalakás
Eladó téglalakás

Miskolc

24.95 M Ft
2 szoba
55 m2
Eladó téglalakás
Eladó téglalakás

Ózd

10.5 M Ft
2 szoba
53 m2
Eladó téglalakás
Eladó téglalakás

Miskolc

64 M Ft
3 szoba
60 m2
Eladó téglalakás
Eladó téglalakás

Miskolc

24.9 M Ft
2 szoba
52 m2
Eladó téglalakás
Eladó téglalakás

Miskolc

11.5 M Ft
2 szoba
59 m2
Eladó téglalakás
Eladó téglalakás

Miskolc

39.9 M Ft
2 szoba
77 m2
Eladó téglalakás
Eladó téglalakás

Miskolc

24.9 M Ft
2 szoba
52 m2
Eladó téglalakás
Eladó téglalakás

Miskolc

59.9 M Ft
2 + 3 szoba
97 m2
Eladó téglalakás
Eladó téglalakás

Miskolc

138 M Ft
4 szoba
110 m2
Eladó téglalakás
Eladó téglalakás

Miskolc

138 M Ft
4 szoba
110 m2
Eladó téglalakás
Eladó téglalakás

Putnok

13.6 M Ft
3 szoba
123 m2
Eladó téglalakás
Eladó téglalakás

Miskolc

24.9 M Ft
2 szoba
52 m2
Eladó téglalakás
Eladó téglalakás

Miskolc

39.9 M Ft
2 szoba
77 m2

Falusi CSOK ingatlanok

Eladó családi ház
Eladó családi ház

Tiszalúc

9 M Ft
3 + 2 szoba
130 m2
Eladó családi ház
Eladó családi ház

Tápiógyörgye

6.5 M Ft
2 szoba
62 m2
Eladó családi ház
Eladó családi ház

Tömörkény, József Attila utca 5

9.2 M Ft
1 + 1 szoba
93 m2
Eladó családi ház
Eladó családi ház

Sály, Kossuth Lajos 128

31.28 M Ft
6 szoba
160 m2
Eladó családi ház
Eladó családi ház

Gyöngyöshalász

59 M Ft
4 + 3 szoba
214 m2
Eladó családi ház
Eladó családi ház

Nyékládháza

45 M Ft
3 szoba
90 m2
Eladó családi ház
Eladó családi ház

Újszilvás

14.9 M Ft
2 szoba
50 m2
Eladó családi ház
Eladó családi ház

Kondorfa, Alvég 139

13.3 M Ft
1 + 1 szoba
123 m2