Eladó családi ház
Rábapatona

+ 13 kép 1/16
165 000 000 Ft165 M Ft 662 651 Ft/m2
5 + 2 szoba
249 m2
építés éve:2002

Részletes adatok

Telekméret: 1972 m2
Fűtés: Gázkazán
Parkolás: Kocsibeálló
Energetikai besorolás: Nem adta meg a hirdető

Az OTP Bank lakáshitel ajánlataFizetett hirdetés

+36 70 250
Péter Richárd
OTPip - Győr Bajcsy-Zsilinszky út 27 - OTP Ingatlanpont Iroda

Érdekel az OTP Bank kedvezményes lakáshitel ajánlata? *

* A kérdésre „Igen” válasz bejelölése esetén, az „Üzenet küldése” gombra kattintva kijelentem, hogy az OTP Bank Nyrt. Adatkezelési tájékoztatójának tartalmát megismertem és tudomásul vettem.

Eladó családi ház leírása

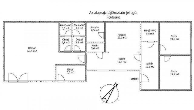
Eladásra kínálok Rábapatonán egy 249 m2-es, 5 szoba + 2 félszobás ingatlant egy 1972 m2-es körbekerített parkosított telken. Jelenleg lakóházként, irodaként, működik, de rengeteg lehetőséget rejt magában! Az ingatlan könnyedén átalakítható munkásszállóvá, többgenerációs lakóházzá, vagy továbbra is használható kereskedelmi célokra is.
Az ingatlan első része a 50-es években épült vályogból kőalapra, míg a hátsó, nagyobbik része és a tetőtér 2002-ben kerültek hozzáépítésre.
A ház napelemmel felszerelt, új kondenzációs kazán biztosítja a meleget, valamint klímával is rendelkezik. Mindezek hozzájárulnak az ingatlan alacsony fenntartásához, a havi rezsiköltség mindössze 50 000 Ft. Az ingatlan egészében ki van alakítva a számítógépes hálózat.
Az udvaron található fedett kerti kiülő, kemence, 2 nagy méretű kutya kennel, kerti tároló, illetve 2 autó számára tágas, fedett parkolóhely.
A település fejlődő falu, kiváló közlekedési lehetőségekkel, illetve minden szükséges szolgáltatás megtalálható a közelben: iskola, óvoda, posta, boltok, benzinkút.
Amennyiben kérdése van, hívjon bizalommal!
Referenciaszám: M299077

Hirdetés feltöltve: 2025. 10. 02.

Az ingatlan elhelyezkedése

Cím: Rábapatona

Eladó ingatlanok a környékről

Eladó telek
Eladó telek

Sopronkövesd

18 M Ft
807 m²
Eladó ikerház
Eladó ikerház

Hegyeshalom

46.9 M Ft
645 m²
70 m2
Eladó téglalakás
Eladó téglalakás

Győr

98.4 M Ft
4 szoba
82 m2
Eladó családi ház
Eladó családi ház

Rábapatona

86 M Ft
4 szoba
136 m2
Eladó családi ház
Eladó családi ház

Lébény

62.99 M Ft
4 szoba
90 m2
Eladó családi ház
Eladó családi ház

Rábapatona

40 M Ft
3 szoba
140 m2
Eladó családi ház
Eladó családi ház

Rábapatona

89 M Ft
2292 m²
102 m2
Eladó családi ház
Eladó családi ház

Mosonmagyaróvár

85 M Ft
3 szoba
119 m2
Eladó családi ház
Eladó családi ház

Kapuvár

115 M Ft
5 szoba
222 m2
Eladó családi ház
Eladó családi ház

Rábapatona

30 M Ft
2 szoba
66 m2
Eladó családi ház
Eladó családi ház

Sopron

79.9 M Ft
4 szoba
82 m2
Eladó téglalakás
Eladó téglalakás

Sopron

84.9 M Ft
3 szoba
76 m2
Eladó családi ház
Eladó családi ház

Veszprémvarsány

129 M Ft
6 szoba
215 m2
Eladó családi ház
Eladó családi ház

Sopronkövesd

94.1 M Ft
4 szoba
103 m2
Eladó családi ház
Eladó családi ház

Győr

278 M Ft
6 szoba
339 m2
Eladó családi ház
Eladó családi ház

Rábapatona

89 M Ft
4 szoba
149 m2
Eladó családi ház
Eladó családi ház

Rábapatona

86 M Ft
4 szoba
135 m2
Eladó családi ház
Eladó családi ház

Győrszemere

75.034 M Ft
5 szoba
95 m2
Eladó családi ház
Eladó családi ház

Nagycenk

60.8 M Ft
3 + 1 szoba
76 m2
Eladó téglalakás
Eladó téglalakás

Sopron

52 M Ft
3 szoba
42 m2
Eladó családi ház
Eladó családi ház

Gönyű

94.077 M Ft
4 szoba
105 m2
Eladó családi ház
Eladó családi ház

Rábapatona

68.9 M Ft
4 szoba
90 m2
Eladó családi ház
Eladó családi ház

Mosonmagyaróvár

37.9 M Ft
3 szoba
70 m2
Eladó családi ház
Eladó családi ház

Nagycenk

83 M Ft
3 szoba
65 m2

Falusi CSOK ingatlanok

Eladó téglalakás
Eladó téglalakás

Balatonszemes, Ady Endre u

62.9 M Ft
1 szoba
37 m2
Eladó családi ház
Eladó családi ház

Devecser

18.9 M Ft
2 + 1 szoba
57 m2
Eladó családi ház
Eladó családi ház

Nagyér

4.6 M Ft
3 szoba
96 m2
Eladó családi ház
Eladó családi ház

Szigetcsép

27.9 M Ft
3 szoba
81 m2
Eladó családi ház
Eladó családi ház

Badacsonytomaj

199.8 M Ft
3 szoba
166 m2
Eladó családi ház
Eladó családi ház

Balatonkeresztúr, Dózsa György u. 29

145 M Ft
5 szoba
150 m2
Eladó családi ház
Eladó családi ház

Mályi

89.9 M Ft
4 szoba
100 m2
Eladó családi ház
Eladó családi ház

Hernádnémeti

19.9 M Ft
2 szoba
62 m2