Eladó családi ház
Rábapatona

79 900 000 Ft79.9 M Ft 726 364 Ft/m2
5 szoba
110 m2
építés éve:2025

Részletes adatok

Telekméret: 1000 m2
Fűtés: Gázkazán
Parkolás: Garázs
Közmű: Víz, Gáz, Villany, Csatorna
Energetikai besorolás: Nem adta meg a hirdető

Az OTP Bank lakáshitel ajánlataFizetett hirdetés

+36 70 467
Kolofon-Balogh Noémi
B&B Ingatlaniroda

Érdekel az OTP Bank kedvezményes lakáshitel ajánlata? *

* A kérdésre „Igen” válasz bejelölése esetén, az „Üzenet küldése” gombra kattintva kijelentem, hogy az OTP Bank Nyrt. Adatkezelési tájékoztatójának tartalmát megismertem és tudomásul vettem.

Eladó családi ház leírása

Győr közelében Rábapatonán, újonnan épülő, igényes kialakítású, tégla építésű családi ház leköthető.

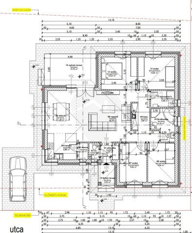
A nappali + négy szobával(vagy akár több szobával is kérhető ) ingatlan alapterülete nettó 110 m2, mely igény szerint módosítható.
A praktikusan tervezett házban a szobákon kívül tágas és napfényes amerikai konyhás nappali, gardrób, kamra, szélfogó, közlekedő, fürdőszoba, háztartási helyiség és egy külön mellékhelyiség is kialakításra kerül.
Az élhető méretű telek összesen 1000 m2-es, mely 30%-ban beépíthető.
A feltüntetett vételár a nettó emelt szintű fűtés kész árat és a telek árát tartalmazza!
Továbbá az ár tartalmazza a komplett tervező díjat(gépészet, metszetek, statika, energetika, engedélyek), plusz egy inverteres(hűtő-fűtő) klímát!
A részletes műszaki leírást és az Építőipari cég weboldalát kérésére e-mailben elküldöm.

Más az elképzelése? Válassza ki Ön a saját elképzeléseinek megfelelő alaprajzot!
Amennyiben teljesen egyedi tervezést szeretne, az is lehetséges!
A képek látványtervek.

Jól átgondolt tervezés, megfelelő szakmai tudás és háttér garantálja a MINŐSÉGI OTTHON megvalósítását!

További kérdés esetén állok rendelkezésére!
Amennyiben megbízható építtetőt szeretne, referenciamunkákkal, minőségi anyagokkal és kivitelezéssel, hívjon bizalommal akár hétvégén is!
Teljes körű ügyintézéssel:
- ügyvéd
- biztosítás
- hiteltanácsadás
- Generálkivitelezés
- teljeskörű ingatlanfelújítás
- CSOK, babváró, áfa visszaigénylés - állunk rendelkezésére!

Hirdetés feltöltve: 2024. 03. 06. Utoljára módosítva: 2025. 09. 17.

Az ingatlan elhelyezkedése

Cím: Rábapatona

Eladó ingatlanok a környékről

Eladó családi ház
Eladó családi ház

Mosonmagyaróvár

64.99 M Ft
3 szoba
112 m2
Eladó családi ház
Eladó családi ház

Harka

86.7 M Ft
3 szoba
102 m2
Eladó családi ház
Eladó családi ház

Mosonmagyaróvár

85 M Ft
3 szoba
119 m2
Eladó családi ház
Eladó családi ház

Nagycenk

64.8 M Ft
3 + 1 szoba
76 m2
Eladó családi ház
Eladó családi ház

Rábapatona

165 M Ft
5 + 2 szoba
225 m2
Eladó családi ház
Eladó családi ház

Veszprémvarsány

129 M Ft
6 szoba
215 m2
Eladó családi ház
Eladó családi ház

Rábapatona

30 M Ft
2 szoba
66 m2
Eladó családi ház
Eladó családi ház

Rábapatona

165 M Ft
5 + 2 szoba
249 m2
Eladó családi ház
Eladó családi ház

Mosonmagyaróvár

89.9 M Ft
4 szoba
90 m2
Eladó családi ház
Eladó családi ház

Zsira

110.9 M Ft
8 szoba
200 m2
Eladó családi ház
Eladó családi ház

Rábapatona

39.5 M Ft
2 szoba
77 m2
Eladó téglalakás
Eladó téglalakás

Győr

480 M Ft
5 szoba
240 m2
Eladó családi ház
Eladó családi ház

Harka

99 M Ft
4 szoba
103 m2
Eladó családi ház
Eladó családi ház

Győrsövényház

19.99 M Ft
2 szoba
65 m2
Eladó családi ház
Eladó családi ház

Gönyű

111.951 M Ft
4 szoba
105 m2
Eladó családi ház
Eladó családi ház

Fertőszéplak

102 M Ft
4 szoba
101 m2
Eladó családi ház
Eladó családi ház

Jánossomorja

617.636 M Ft
12 szoba
405 m2
Eladó családi ház
Eladó családi ház

Rábapatona

86 M Ft
4 szoba
135 m2
Eladó családi ház
Eladó családi ház

Győrság

93.45 M Ft
4 szoba
96 m2
Eladó családi ház
Eladó családi ház

Nagycenk

80.6 M Ft
4 szoba
106 m2
Eladó családi ház
Eladó családi ház

Jánossomorja

42.99 M Ft
3 szoba
100 m2
Eladó családi ház
Eladó családi ház

Győrszemere

90.588 M Ft
5 szoba
95 m2
Eladó családi ház
Eladó családi ház

Rábapatona

56 M Ft
4 szoba
126 m2
Eladó családi ház
Eladó családi ház

Győr

325 M Ft
6 szoba
365 m2

Falusi CSOK ingatlanok

Eladó családi ház
Eladó családi ház

Nyáregyháza

67 M Ft
3 szoba
74 m2
Eladó családi ház
Eladó családi ház

Vásárosdombó

14.99 M Ft
2 szoba
69 m2
Eladó családi ház
Eladó családi ház

Vaskút

14.9 M Ft
3 szoba
120 m2
Eladó ikerház
Eladó ikerház

Seregélyes

39.9 M Ft
4 szoba
150 m2
Eladó családi ház
Eladó családi ház

Balatonszentgyörgy

66.079 M Ft
4 szoba
126 m2
Eladó családi ház
Eladó családi ház

Bácsbokod

12.9 M Ft
3 szoba
90 m2
Eladó családi ház
Eladó családi ház

Ágasegyháza

29.7 M Ft
3 szoba
75 m2
Eladó családi ház
Eladó családi ház

Iváncsa

73.9 M Ft
1 + 3 szoba
97 m2