Astora Olive Club House

Eladó családi ház
Rábapatona

+ 13 kép 1/16
165 000 000 Ft165 M Ft 733 333 Ft/m2
5 + 2 szoba
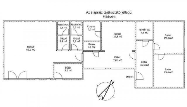
225 m2
építés éve:2002

Részletes adatok

Telekméret: 1972 m2
Fűtés: Gázkazán
Energetikai besorolás: Nem adta meg a hirdető

Az OTP Bank lakáshitel ajánlataFizetett hirdetés

+36 20 419
Hima Zsuzsanna
OTPip - Győr Bajcsy-Zsilinszky út 27 - OTP Ingatlanpont Iroda

Érdekel az OTP Bank kedvezményes lakáshitel ajánlata? *

* A kérdésre „Igen” válasz bejelölése esetén, az „Üzenet küldése” gombra kattintva kijelentem, hogy az OTP Bank Nyrt. Adatkezelési tájékoztatójának tartalmát megismertem és tudomásul vettem.

Eladó családi ház leírása

Eladásra kínálok Rábapatonán egy 225 m2-es, 5 szoba + 2 félszobás ingatlant, egy 1972 m2-es körbekerített parkosított telken. Kis átalakítással akár kétgenerációs családi háznak is megfelelő lehet! Jelenleg lakóházként, irodaként és alkatrész kereskedésként működik, de rengeteg lehetőséget rejt magában. Az ingatlan könnyedén átalakítható munkásszállóvá, vagy továbbra is használható kereskedelmi célokra is.
A ház napelemmel felszerelt, új kondenzációs kazán biztosítja a meleget, valamint klímával is rendelkezik. Mindezek hozzájárulnak az ingatlan alacsony fenntartásához, a havi rezsiköltség mindössze 50 000 Ft. Az ingatlan egészében ki van alakítva a számítógépes hálózat.
Az udvaron található fedett kerti kiülő, kemence, 2 nagy méretű kutya kennel, kerti tároló, illetve 2 autó számára tágas, fedett parkolóhely.
A település fejlődő falu, kiváló közlekedési lehetőségekkel, illetve minden szükséges szolgáltatás megtalálható a közelben: iskola, óvoda, posta, boltok, benzinkút.
Amennyiben az ingatlan felkeltette az érdeklődését, kérem keressen bizalommal!

Referenciaszám: M313492

Hirdetés feltöltve: 2025. 10. 23. Utoljára módosítva: 2025. 12. 07.

Az ingatlan elhelyezkedése

Cím: Rábapatona

Eladó ingatlanok a környékről

Eladó családi ház
Eladó családi ház

Veszprémvarsány

119 M Ft
6 szoba
215 m2
Eladó családi ház
Eladó családi ház

Rábapatona

39.5 M Ft
2 szoba
77 m2
Eladó családi ház
Eladó családi ház

Rábapatona

68.9 M Ft
4 szoba
90 m2
Eladó családi ház
Eladó családi ház

Rábapatona

35.9 M Ft
2 szoba
76 m2
Eladó családi ház
Eladó családi ház

Jánossomorja

607.507 M Ft
12 szoba
405 m2
Eladó családi ház
Eladó családi ház

Rábapatona

89 M Ft
4 szoba
149 m2
Eladó téglalakás
Eladó téglalakás

Sopron

63.9 M Ft
2 szoba
60 m2
Eladó családi ház
Eladó családi ház

Győr

278 M Ft
6 szoba
339 m2
Eladó családi ház
Eladó családi ház

Rábapatona

39.5 M Ft
2 szoba
77 m2
Eladó családi ház
Eladó családi ház

Mosonmagyaróvár

85 M Ft
3 szoba
119 m2
Eladó családi ház
Eladó családi ház

Nagycenk

80.6 M Ft
4 szoba
106 m2
Eladó családi ház
Eladó családi ház

Rábapatona

64.9 M Ft
4 szoba
92 m2
Eladó családi ház
Eladó családi ház

Rábapatona

67.9 M Ft
2 szoba
78 m2
Eladó családi ház
Eladó családi ház

Lébény

62.99 M Ft
4 szoba
90 m2
Eladó családi ház
Eladó családi ház

Rábapatona

40 M Ft
3 szoba
140 m2
Eladó családi ház
Eladó családi ház

Harka

60.9 M Ft
3 + 1 szoba
67 m2
Eladó családi ház
Eladó családi ház

Rábapatona

56 M Ft
4 szoba
126 m2
Eladó családi ház
Eladó családi ház

Rábapatona

86 M Ft
4 szoba
135 m2
Eladó családi ház
Eladó családi ház

Győrszemere

90.588 M Ft
5 szoba
95 m2
Eladó téglalakás
Eladó téglalakás

Sopron

72 M Ft
3 + 1 szoba
84 m2
Eladó téglalakás
Eladó téglalakás

Jánossomorja

48 M Ft
2050 m²
95 m2
Eladó családi ház
Eladó családi ház

Rábapatona

39.5 M Ft
2 szoba
77 m2
Eladó családi ház
Eladó családi ház

Sopron

130 M Ft
3 szoba
140 m2
Eladó családi ház
Eladó családi ház

Levél, Fő utca

112.9 M Ft
4 szoba
122 m2

Falusi CSOK ingatlanok

Eladó családi ház
Eladó családi ház

Jakabszállás

320 M Ft
15 szoba
665 m2
Eladó családi ház
Eladó családi ház

Kondorfa, Fővég utca

24.9 M Ft
3 szoba
102 m2
Eladó családi ház
Eladó családi ház

Örkény

49.5 M Ft
5 szoba
100 m2
Eladó családi ház
Eladó családi ház

Törtel

25.9 M Ft
5 szoba
95 m2
Eladó családi ház
Eladó családi ház

Földeák

39.9 M Ft
3 szoba
86 m2
Eladó családi ház
Eladó családi ház

Pannonhalma

83.9 M Ft
4 szoba
97 m2
Eladó családi ház
Eladó családi ház

Zalalövő

34.99 M Ft
3 szoba
110 m2
Eladó családi ház
Eladó családi ház

Elek

89.9 M Ft
5 szoba
274 m2