NapForrás 20 - Buda

Eladó családi ház
Páty

+ 17 kép 1/20
89 900 000 Ft89.9 M Ft 365 447 Ft/m2
5 + 1 szoba
246 m2
építés éve:1998

Részletes adatok

Állapot: Átlagos
Telekméret: 475 m2
Fűtés: Egyéb
Energetikai besorolás: Nem adta meg a hirdető

Az OTP Bank lakáshitel ajánlataFizetett hirdetés

+36 70 337
dr. Kázár Judit
Otp Ingatlanpont Falk Miksa

Érdekel az OTP Bank kedvezményes lakáshitel ajánlata? *

* A kérdésre „Igen” válasz bejelölése esetén, az „Üzenet küldése” gombra kattintva kijelentem, hogy az OTP Bank Nyrt. Adatkezelési tájékoztatójának tartalmát megismertem és tudomásul vettem.

Eladó családi ház leírása

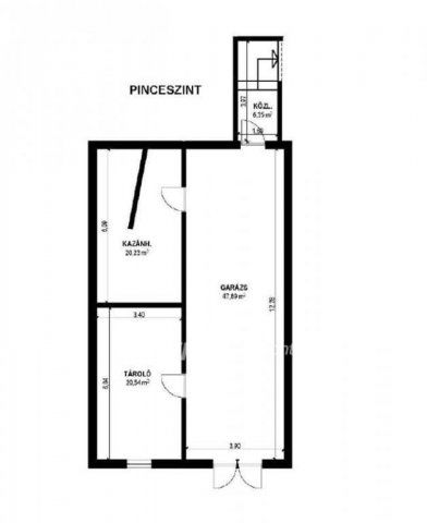
Páty, Pátyfalu település részén, közvetlen a település északi szélén családi ház eladó. A rendezett, csendes kertvárosi környezetben, aszfaltos, összközműves utcában, sík saroktelken elhelyezkedő önálló ház. A téglaépítésű épület 1998-ban épült, földszint+tetőtér+szuterén kialakítású, több generáció lakhatására alkalmassá tehető. A nagy alapterületű épület zsindelyfedésű, hőszigetelt üvegezésű fa nyílászárokkal rendelkező, közepes állapotú ház, fűtése radiátoros, melyet a vegyestüzelésű kazán táplál, melegvíz ellátás villany bojleról biztosított, gázszolgáltatás nem áll rendelkezésre. A szuterénben több autó részére a zárt elhelyezés biztosított, udvaron több gépjármű elhelyezhető. A banki tulajdonba lévő ingatlan, támogatott hitelfelvételre nem alkalmas, egyéb piaci hitelezhetősége lehetséges. Az ingatlan környéke rendezett, családi házas beépítettségű, közösségi közlekedési kapcsolata jó, alapvető szolgáltatások és kereskedelmi ellátottságok közelben elérhetőek.
Az ingatlannal kapcsolatba felmerülő egyéb információkkal kapcsolatban várom megtisztelő érdeklődését. Azonosító:M293854

Referencia szám: M293854

Hirdetés feltöltve: 2025. 08. 23. Utoljára módosítva: 2025. 11. 04.

Az ingatlan elhelyezkedése

Cím: Páty

Eladó családi házak a környékről

Eladó családi ház
Eladó családi ház

Budakeszi

130 M Ft
5 szoba
30 m2
Eladó családi ház
Eladó családi ház

Dunavarsány

46.9 M Ft
3 + 2 szoba
130 m2
Eladó családi ház
Eladó családi ház

Sződ, Rátóti utca

149.99 M Ft
11 szoba
270 m2
Eladó családi ház
Eladó családi ház

Kerepes

81.99 M Ft
5 szoba
102 m2
Eladó családi ház
Eladó családi ház

Budaörs, Bányász utca

385 M Ft
6 szoba
300 m2
Eladó családi ház
Eladó családi ház

Budakeszi, Budakeszi kertváros

229 M Ft
10 szoba
450 m2
Eladó családi ház
Eladó családi ház

Budaörs, Városközpont utca

119.5 M Ft
5 + 1 szoba
140 m2
Eladó családi ház
Eladó családi ház

Tápiószentmárton

7.9 M Ft
2 + 1 szoba
86 m2
Eladó családi ház
Eladó családi ház

Tápiószele

32.9 M Ft
4 szoba
200 m2
Eladó családi ház
Eladó családi ház

Dunavarsány

69.9 M Ft
3 + 1 szoba
140 m2
Eladó családi ház
Eladó családi ház

Páty, Torbágyi út

54.9 M Ft
3 + 1 szoba
120 m2
Eladó családi ház
Eladó családi ház

Páty

115 M Ft
4 szoba
119 m2
Eladó családi ház
Eladó családi ház

Páty

295 M Ft
5 szoba
204 m2
Eladó családi ház
Eladó családi ház

Gyál, Gyál út

169.9 M Ft
2 szoba
90 m2
Eladó családi ház
Eladó családi ház

Páty

89.9 M Ft
5 + 1 szoba
246 m2
Eladó családi ház
Eladó családi ház

Páty

99.9 M Ft
4 szoba
110 m2
Eladó családi ház
Eladó családi ház

Páty, Kökörcsin utca

259 M Ft
5 szoba
290 m2
Eladó családi ház
Eladó családi ház

Páty

380 M Ft
8 szoba
840 m2
Eladó családi ház
Eladó családi ház

Páty

99.999 M Ft
5 szoba
140 m2
Eladó családi ház
Eladó családi ház

Szigetszentmiklós, Tököli út közeli utca

120 M Ft
7 szoba
525 m2
Eladó családi ház
Eladó családi ház

Páty

130.8 M Ft
4 szoba
136 m2
Eladó családi ház
Eladó családi ház

Dunakeszi

250 M Ft
4 szoba
180 m2
Eladó családi ház
Eladó családi ház

Páty

80 M Ft
4 szoba
237 m2
Eladó családi ház
Eladó családi ház

Pécel, Reményik Sándor utca

296 M Ft
6 szoba
396 m2

Falusi CSOK ingatlanok

Eladó családi ház
Eladó családi ház

Ágasegyháza

29.7 M Ft
3 szoba
75 m2
Eladó családi ház
Eladó családi ház

Porva

74.6 M Ft
3 szoba
115 m2
Eladó családi ház
Eladó családi ház

Kisnána

27.9 M Ft
4 szoba
180 m2
Eladó családi ház
Eladó családi ház

Mályi

89.9 M Ft
4 szoba
100 m2
Eladó családi ház
Eladó családi ház

Látrány

39.9 M Ft
1 szoba
52 m2
Eladó családi ház
Eladó családi ház

Iváncsa

73.9 M Ft
1 + 3 szoba
97 m2
Eladó családi ház
Eladó családi ház

Bugac

90 M Ft
5 szoba
230 m2
Eladó családi ház
Eladó családi ház

Tápiószőlős

17 M Ft
2 szoba
60 m2