Metrodom

Eladó családi ház
Őrbottyán

+ 17 kép 1/20
118 000 000 Ft118 M Ft 983 333 Ft/m2
6 szoba
120 m2
építés éve:1985

Részletes adatok

Állapot: Felújított
Telekméret: 1371 m2
Fűtés: Elektromos
Parkolás: Kocsibeálló
Energetikai besorolás: Nem adta meg a hirdető

Az OTP Bank lakáshitel ajánlataFizetett hirdetés

+36 70 490
Nagy Barbara
referens

Érdekel az OTP Bank kedvezményes lakáshitel ajánlata? *

* A kérdésre „Igen” válasz bejelölése esetén, az „Üzenet küldése” gombra kattintva kijelentem, hogy az OTP Bank Nyrt. Adatkezelési tájékoztatójának tartalmát megismertem és tudomásul vettem.

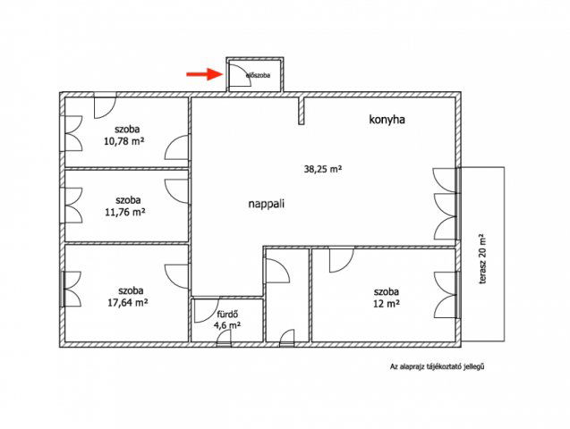
Eladó családi ház leírása

Eladásra kínálok Őrbottyán csendes, kertvárosias részén, egy felújított családi házat, amely mellett az udvarban egy különálló összkomfortos egy szobás ház is van.
Főház: 4 hálószoba, amerikai konyhás nappali, 2 fürőszoba, előtér, 20 nm fedett terasz.
Melléképület: hálószobaszoba, amerikai konyhás nappali, fürdőszoba, 10 nm terasz.
Telek méret: 1371 nm.
A kert rendezett, növényzettel beültetett.
Fűtés: hőszívattyús, H tarifa kiépítve, hűtő fűtő klímák felszerelve.
Napelem 8 kw, így alacsony rezsi biztosítva.
Műanyag 3 rétegű nyílászárók.
Manuális nagykapu.
A főházban az eredeti belmagasság 3 méter, amely álmennyezettel jelenleg 276 cm-re van lehozva.
A melléképületben a belmagasság 220 cm.
Főépületben száraz, tárolásra használt pince van, amely 30 nm alapterületű.
Hívjon bizalommal, tekintsük meg együtt! ...TOVÁBBI, TÖBBEZRES INGATLAN KÍNÁLAT: www.gdn-ingatlan.hu - GDN azonosító: 391606

Hirdetés feltöltve: 2026. 01. 14.

Az ingatlan elhelyezkedése

Cím: Őrbottyán

Eladó családi házak a környékről

Eladó családi ház
Eladó családi ház

Őrbottyán, Árpád utca

77 M Ft
5 szoba
230 m2
Eladó családi ház
Eladó családi ház

Őrbottyán

105 M Ft
4 szoba
102 m2
Eladó családi ház
Eladó családi ház

Őrbottyán

154 M Ft
4 + 1 szoba
115 m2
Eladó családi ház
Eladó családi ház

Budakeszi, Budakeszi kertváros

229 M Ft
10 szoba
450 m2
Eladó családi ház
Eladó családi ház

Őrbottyán

145 M Ft
4 szoba
210 m2
Eladó családi ház
Eladó családi ház

Tápiószele

32.9 M Ft
4 szoba
200 m2
Eladó családi ház
Eladó családi ház

Őrbottyán

110 M Ft
1 + 4 szoba
116 m2
Eladó családi ház
Eladó családi ház

Őrbottyán

59.9 M Ft
2 + 1 szoba
75 m2
Eladó családi ház
Eladó családi ház

Budakeszi, Budakeszi kertváros

140 M Ft
2 szoba
55 m2
Eladó családi ház
Eladó családi ház

Budaörs, Bányász utca

385 M Ft
6 szoba
300 m2
Eladó családi ház
Eladó családi ház

Őrbottyán

63 M Ft
3 + 1 szoba
90 m2
Eladó családi ház
Eladó családi ház

Tápiószőlős

34.9 M Ft
5 szoba
210 m2
Eladó családi ház
Eladó családi ház

Őrbottyán

145 M Ft
4 szoba
210 m2
Eladó családi ház
Eladó családi ház

Gyál, Gyál út

169.9 M Ft
2 szoba
90 m2
Eladó családi ház
Eladó családi ház

Őrbottyán

107 M Ft
4 szoba
94 m2
Eladó családi ház
Eladó családi ház

Zebegény

69.9 M Ft
6 szoba
245 m2
Eladó családi ház
Eladó családi ház

Kerepes

199 M Ft
6 szoba
360 m2
Eladó családi ház
Eladó családi ház

Őrbottyán

79.5 M Ft
3 szoba
113 m2
Eladó családi ház
Eladó családi ház

Őrbottyán

98.9 M Ft
3 + 2 szoba
125 m2
Eladó családi ház
Eladó családi ház

Őrbottyán

110 M Ft
4 szoba
106 m2
Eladó családi ház
Eladó családi ház

Őrbottyán

107 M Ft
4 szoba
95 m2
Eladó családi ház
Eladó családi ház

Őrbottyán

97.5 M Ft
4 szoba
115 m2
Eladó családi ház
Eladó családi ház

Tápiószele

11.9 M Ft
3 szoba
62 m2
Eladó családi ház
Eladó családi ház

Őrbottyán, Fürdő utca

149 M Ft
5 szoba
120 m2

Falusi CSOK ingatlanok

Eladó családi ház
Eladó családi ház

Nagyhegyes

80 M Ft
2 szoba
94 m2
Eladó ikerház
Eladó ikerház

Seregélyes

39.9 M Ft
4 szoba
150 m2
Eladó családi ház
Eladó családi ház

Nyáregyháza

63.9 M Ft
1 + 1 szoba
79 m2
Eladó családi ház
Eladó családi ház

Kölked

42 M Ft
3 szoba
100 m2
Eladó családi ház
Eladó családi ház

Tab

14.9 M Ft
3 szoba
110 m2
Eladó családi ház
Eladó családi ház

Bag

16.9 M Ft
6 szoba
160 m2
Eladó családi ház
Eladó családi ház

Vasvár

48.5 M Ft
4 szoba
105 m2
Eladó családi ház
Eladó családi ház

Szil

25 M Ft
2 szoba
90 m2