Oasis Residence

Eladó családi ház
Őrbottyán

+ 1 kép 1/4
98 900 000 Ft98.9 M Ft 791 200 Ft/m2
3 + 2 szoba
125 m2
építés éve:2025

Részletes adatok

Telekméret: 500 m2
Fűtés: Egyéb
Parkolás: Kocsibeálló
Energetikai besorolás: Nem adta meg a hirdető

Az OTP Bank lakáshitel ajánlataFizetett hirdetés

+36 30 239
Gyurkó Melinda
BeMyHome Ingatlan

Érdekel az OTP Bank kedvezményes lakáshitel ajánlata? *

* A kérdésre „Igen” válasz bejelölése esetén, az „Üzenet küldése” gombra kattintva kijelentem, hogy az OTP Bank Nyrt. Adatkezelési tájékoztatójának tartalmát megismertem és tudomásul vettem.

Eladó családi ház leírása

Őrbottyán belterületi részén újépítésű ház leköthető!

Horgásztó közelében nappali + 3 hálószobás téglaházak eladók 500 nm-es telekkel!

Főbb jellemzők:

- csendes, nyugodt részen, sok zölddel mindenfelé

- 500 nm-es saját, leválasztott telekkel

- a teljes telek 1000 nm, melyre 2 ház épül, az egyik 2 szintes lesz, a másik egy szintes. Jelenleg mindkét fele eladó! A 2 épület között a tárolók helyezkednek el.

- a telek 19 méter széles, 56 méter utcafrontos, remek telek!

- gyönyörű tujasor takar az egyik szomszéd felé és sok fa található a telekhatárokon

- jogilag 2 db társasházi albetét lesz

- az építkezés ősszel indul, kb. 6-8 hónap alatt elkészül, a tervek engedélyeztetése miatt és a használatbavételi miatt 8-10 hónapra tolódhat ki

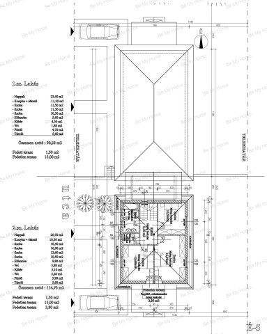
Az egyik ház 90 nm-es + teraszok, egyszintes, nappali + 3 hálós, a másik ház 2 szinten 114.7 nm + teraszok, nappali + 3 hálós.

Ez a hirdetés az 2.számú lakásról szól, mely kétszintes!

Műszaki jellemzők:

- Porotherm okos tégla

- hőszivattyús fűtés

- cserépfedés

- klíma kiállás

- autóbeállási lehetőség a kertben

- külön tároló

- murvás földút van jelenleg a főbb úttól nem messze

Előny:

- A természetben vásárolhat egy újépítésú házat, mely nem külterületi, nem zártkerti, hanem belterületi ingatlan, így értéke is magasabb, illetve bármely bank hitelezi!

Díjtalan, banksemleges hitelügyintézésben segítünk!

Hirdetés feltöltve: 2025. 09. 08. Utoljára módosítva: 2025. 11. 02.

5 szobás családi házak ára Őrbottyánban

Ebből az összehasonlításból megtudhatod, hogyan viszonyul a lakás ára a környékbeli családi házak átlagos árához. Ez nem azt jelenti, hogy ennyivel olcsóbb vagy drágább, mint amennyit a lakás ér, hanem hogy ennyivel tér el a környékbeli átlagtól.

Ennek a m² ára
Őrbottyán m² ár
791 e Ft
607 e Ft -30%
Ennek az ára
Őrbottyán átlagár
98.9 M Ft m Ft
104 m Ft 5%

Az ingatlan elhelyezkedése

Cím: Őrbottyán

Eladó családi házak a környékről

Eladó családi ház
Eladó családi ház

Kerepes

199 M Ft
6 szoba
360 m2
Eladó családi ház
Eladó családi ház

Budakeszi, Budakeszi kertváros

229 M Ft
10 szoba
450 m2
Eladó családi ház
Eladó családi ház

Őrbottyán, Rákóczi Ferenc u

88 M Ft
3 szoba
100 m2
Eladó családi ház
Eladó családi ház

Őrbottyán

194.9 M Ft
7 szoba
231 m2
Eladó családi ház
Eladó családi ház

Tápiószentmárton

48 M Ft
5 szoba
180 m2
Eladó családi ház
Eladó családi ház

Őrbottyán

59.9 M Ft
2 + 1 szoba
75 m2
Eladó családi ház
Eladó családi ház

Dunavarsány

69.9 M Ft
3 + 1 szoba
140 m2
Eladó családi ház
Eladó családi ház

Őrbottyán

92.85 M Ft
4 szoba
84 m2
Eladó családi ház
Eladó családi ház

Tahitótfalu

188 M Ft
7 szoba
280 m2
Eladó családi ház
Eladó családi ház

Őrbottyán

79.5 M Ft
3 szoba
113 m2
Eladó családi ház
Eladó családi ház

Őrbottyán

97 M Ft
4 szoba
115 m2
Eladó családi ház
Eladó családi ház

Leányfalu

237 M Ft
9 szoba
800 m2
Eladó családi ház
Eladó családi ház

Őrbottyán, Gárdonyi Géza utca

79.5 M Ft
3 szoba
84 m2
Eladó családi ház
Eladó családi ház

Gyál, Gyál út

169.9 M Ft
2 szoba
90 m2
Eladó családi ház
Eladó családi ház

Őrbottyán

145 M Ft
4 szoba
210 m2
Eladó családi ház
Eladó családi ház

Tápiószele

37.9 M Ft
4 szoba
141 m2
Eladó családi ház
Eladó családi ház

Budaörs, Városközpont utca

119.5 M Ft
5 + 1 szoba
140 m2
Eladó családi ház
Eladó családi ház

Pécel, Reményik Sándor utca

296 M Ft
6 szoba
396 m2
Eladó családi ház
Eladó családi ház

Őrbottyán

67 M Ft
4 szoba
157 m2
Eladó családi ház
Eladó családi ház

Őrbottyán

139.9 M Ft
9 szoba
322 m2
Eladó családi ház
Eladó családi ház

Tápiógyörgye

19.9 M Ft
3 szoba
65 m2
Eladó családi ház
Eladó családi ház

Őrbottyán

107 M Ft
4 szoba
95 m2
Eladó családi ház
Eladó családi ház

Budaörs, Odvshegy utca

268.9 M Ft
5 szoba
235 m2
Eladó családi ház
Eladó családi ház

Őrbottyán, Árpád utca

77 M Ft
5 szoba
230 m2

Falusi CSOK ingatlanok

Eladó családi ház
Eladó családi ház

Hegyfalu

14.9 M Ft
2 szoba
70 m2
Eladó családi ház
Eladó családi ház

Szigliget

299 M Ft
3 szoba
95 m2
Eladó családi ház
Eladó családi ház

Tápióság

62 M Ft
4 szoba
72 m2
Eladó családi ház
Eladó családi ház

Besnyő

105.999 M Ft
6 szoba
189 m2
Eladó családi ház
Eladó családi ház

Andornaktálya

65 M Ft
3 szoba
80 m2
Eladó családi ház
Eladó családi ház

Mályi

84.9 M Ft
4 szoba
100 m2
Eladó családi ház
Eladó családi ház

Nyírtura

74.9 M Ft
3 szoba
120 m2
Eladó családi ház
Eladó családi ház

Ceglédbercel

95 M Ft
6 szoba
220 m2