Kedves Felhasználónk! Rendszerfrissítés miatt az oldalunk 2026. február 9-én 12 órától várhatóan 20 óráig nem lesz elérhető. Köszönjük megértésed!
Metrodom

Eladó családi ház
Mórahalom

+ 15 kép 1/18
99 000 000 Ft99 M Ft 1 207 317 Ft/m2
3 szoba
82 m2

Részletes adatok

Fűtés: Egyéb
Energetikai besorolás: Nem adta meg a hirdető

Az OTP Bank lakáshitel ajánlataFizetett hirdetés

+36 20 967
Kratochwill Andrea
A plusz ingatlan

Érdekel az OTP Bank kedvezményes lakáshitel ajánlata? *

* A kérdésre „Igen” válasz bejelölése esetén, az „Üzenet küldése” gombra kattintva kijelentem, hogy az OTP Bank Nyrt. Adatkezelési tájékoztatójának tartalmát megismertem és tudomásul vettem.

Eladó családi ház leírása

Eladó exkluzív, új építésű családi ház Mórahalmon

Mórahalom egyik kedvelt, nyugodt részén, a Mátyás király körúton eladó egy új építésű, földszintes, kulcsrakész állapotú családi ház, modern stílusban, minőségi anyagok felhasználásával építve.
A 950 m²-es, rendezett telekre épült otthon letisztult megjelenésével, korszerű műszaki tartalmával és energiatakarékos megoldásaival egyaránt a kényelmet és az eleganciát képviseli.
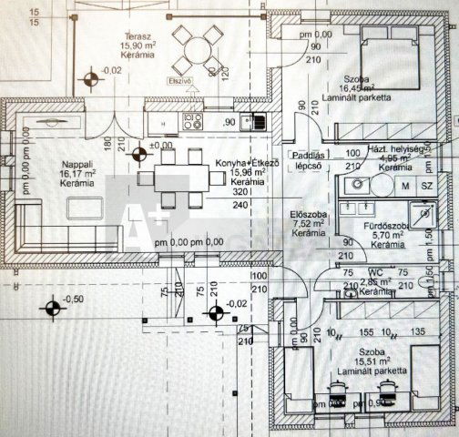
Hasznos alapterület:
Lakótér: 82,11 m²
Fedett bejárat: 3,30 m²
Fedett terasz: 15,90 m²
Összesen: 104,31 m²

Belső elrendezés:
A ház központi tere a tágas nappali amerikai konyhával és étkezővel, melyből közvetlen kijárat nyílik a 15,9 m²-es fedett teraszra.
Emellett két külön nyíló hálószoba, elegáns fürdőszoba, külön WC, háztartási helyiség és előszoba biztosítja a kényelmet és a praktikumot.
Főbb jellemzők:
3 rétegű, 6 kamrás műanyag nyílászárók
Padlófűtés korszerű kazánról
Hűtő-fűtő klíma a kellemes hőmérsékletért
15 cm vastag grafitos hőszigetelés
Tégla falazat, prémium energetikai besorolás
Alacsony fenntartási költségek
A ház világos, napfényes terei, igényes burkolatai és modern kivitelezése tökéletes otthont biztosítanak mindazok számára, akik nyugodt, biztonságos környezetben, mégis Szeged közelségében szeretnének élni.

Elhelyezkedés:
Mórahalom Csongrád-Csanád vármegyében, Szegedtől mindössze 20 km-re található, a déli országhatár közelében.
A város Hild-díjas település, híres termálfürdőjéről, rendezett utcáiról, valamint kiváló infrastruktúrájáról — ideális választás azoknak, akik a minőségi életstílust keresik.

Amennyiben további kérdése van az ingatlannal kapcsolatban ,várom megtisztelő hívását !

IÁ : 99.000.000.-

Kratochwill Andrea
06209679-219
kratochwill.andrea@gmail.com

Hirdetés feltöltve: 2025. 11. 08. Utoljára módosítva: 2026. 01. 13.

3 szobás családi házak ára Mórahalmon

Ebből az összehasonlításból megtudhatod, hogyan viszonyul a lakás ára a környékbeli családi házak átlagos árához. Ez nem azt jelenti, hogy ennyivel olcsóbb vagy drágább, mint amennyit a lakás ér, hanem hogy ennyivel tér el a környékbeli átlagtól.

Ennek a m² ára
Mórahalom m² ár
1207 e Ft
114 e Ft -959%
Ennek az ára
Mórahalom átlagár
99 M Ft m Ft
11.2 m Ft -787%

Az ingatlan elhelyezkedése

Cím: Mórahalom

Eladó ingatlanok a környékről

Eladó családi ház
Eladó családi ház

Szikszó

37.9 M Ft
2 szoba
65 m2
Eladó panellakás
Eladó panellakás

Miskolc

28.5 M Ft
3 szoba
54 m2
Eladó panellakás
Eladó panellakás

Miskolc

25.9 M Ft
1 + 1 szoba
35 m2
Eladó telek
Eladó telek

Felsőzsolca

127 M Ft
154 m²
Eladó családi ház
Eladó családi ház

Miskolc

110 M Ft
6 szoba
199 m2
Eladó családi ház
Eladó családi ház

Putnok

11 M Ft
3 szoba
79 m2
Eladó családi ház
Eladó családi ház

Miskolc

25.9 M Ft
4 szoba
148 m2
Eladó téglalakás
Eladó téglalakás

Mezőkövesd

40 M Ft
2 szoba
53 m2
Eladó panellakás
Eladó panellakás

Miskolc

0.12 M Ft
2 szoba
55 m2
Eladó téglalakás
Eladó téglalakás

Miskolc

203.243 M Ft
4 szoba
105 m2
Eladó panellakás
Eladó panellakás

Ózd, Ráctag, Szent István utca

19.2 M Ft
3 szoba
75 m2
Eladó családi ház
Eladó családi ház

Kurityán

15.8 M Ft
2 + 1 szoba
70 m2
Eladó családi ház
Eladó családi ház

Sajóvelezd

22 M Ft
3 szoba
80 m2
Eladó családi ház
Eladó családi ház

Edelény

31.5 M Ft
2 szoba
75 m2
Eladó családi ház
Eladó családi ház

Ózd

25.99 M Ft
4 szoba
198 m2
Eladó családi ház
Eladó családi ház

Miskolc

149 M Ft
4 szoba
463 m2
Eladó nyaraló
Eladó nyaraló

Miskolc

25 M Ft
2 szoba
40 m2
Eladó családi ház
Eladó családi ház

Tiszalúc

19.9 M Ft
4 szoba
180 m2
Eladó panellakás
Eladó panellakás

Miskolc

29.5 M Ft
2 szoba
51 m2
Eladó téglalakás
Eladó téglalakás

Miskolc, Belváros, Erdélyi utca

23.9 M Ft
1 szoba
35 m2
Eladó panellakás
Eladó panellakás

Miskolc

29.5 M Ft
2 szoba
51 m2
Eladó családi ház
Eladó családi ház

Kazincbarcika

99.9 M Ft
4 + 1 szoba
150 m2
Eladó panellakás
Eladó panellakás

Kazincbarcika

26.9 M Ft
2 szoba
57 m2
Eladó téglalakás
Eladó téglalakás

Miskolc

22.99 M Ft
2 szoba
54 m2

Falusi CSOK ingatlanok

Eladó családi ház
Eladó családi ház

Háromfa, Kossuth

22.4 M Ft
139 m2
Eladó családi ház
Eladó családi ház

Galambok

118 M Ft
7 szoba
249 m2
Eladó családi ház
Eladó családi ház

Poroszló, Dobosok útja 8

18.94 M Ft
1 + 1 szoba
116 m2
Eladó családi ház
Eladó családi ház

Ádánd

69.9 M Ft
6 szoba
251 m2
Eladó téglalakás
Eladó téglalakás

Balatonszemes

123.3 M Ft
2 szoba
70 m2
Eladó téglalakás
Eladó téglalakás

Balatonszemes

123.3 M Ft
2 szoba
70 m2
Eladó családi ház
Eladó családi ház

Hercegszántó

29.9 M Ft
4 szoba
130 m2
Eladó családi ház
Eladó családi ház

Porva

74.6 M Ft
3 szoba
115 m2