Astora Art House

Eladó családi ház
Mecsér, Nincs utca

Figyelem!

Ez az ingatlan a 2019.07.01-től induló falusi CSOK által támogatott településen található

49 900 000 Ft49.9 M Ft 733 824 Ft/m2
3 szoba
68 m2
építés éve:2026

Részletes adatok

Telekméret: 1007 m2
Fűtés: Gázkazán
Energetikai besorolás: Nem adta meg a hirdető
Zenga Premier

Friss hirdetések, amiket nem találsz meg más ingatlankereső portálon.

Fedezd fel elsőként a Zenga Premier címkés eladó ingatlanokat!

További részletek a zenga.hu-n

Az OTP Bank lakáshitel ajánlataFizetett hirdetés

3696654021
Bella Csaba
Duna House - Győr, Szövetség

Érdekel az OTP Bank kedvezményes lakáshitel ajánlata? *

* A kérdésre „Igen” válasz bejelölése esetén, az „Üzenet küldése” gombra kattintva kijelentem, hogy az OTP Bank Nyrt. Adatkezelési tájékoztatójának tartalmát megismertem és tudomásul vettem.

Eladó családi ház leírása

ÚJ OTTHON, ÚJ ÉV MECSÉR!

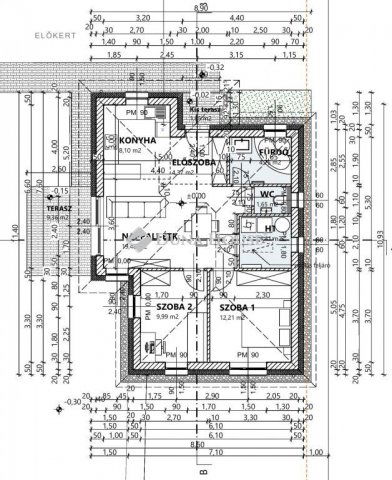
68 m² jól használható lakótér, nappaliamerikai konyhás elrendezéssel és két külön hálószobával. Átgondolt méret, praktikus terek, kényelmes a mindennapokra. A nappaliból közvetlen kijárat nyílik a 10 m²-es teraszra, amely a belső tér természetes folytatása reggeli kávéhoz, esti pihenéshez ideális.

MI VAN AZ ÁRBAN?
-Az 1 000 m²-es telek ára
-A fűtéskész kivitelezés
-Tervezés és engedélyeztetés, 5% ÁFA-val
-Közműcsatlakozások

FŐBB MŰSZAKI TARTALOM
-30 cm-es téglafalazat stabil, hosszú távra
-20 cm hőszigetelés ne a rezsire költs
-3 rétegű nyílászárók bent a meleg, kint a zaj
-Szeglemezes tetőszerkezet pontos, modern megoldás
-Cserépfedés, színazonos bádogozás időtálló
-Padlófűtés gázkazánról egyenletes meleg, radiátorok nélkül
-Hűtőfűtő klíma gyors komfort, amikor kell

MIÉRT MECSÉR?
Gyors közlekedés Győr és Mosonmagyaróvár irányába, autópályán is jól elérhető, így a mindennapi ingázás egyszerű.
A Szigetköz szívében, a Duna-part melletti településen a pihenés adott nem csak hétvégére, hanem a mindennapokra.

MÁST SZERETNÉL?
Keress egyedi ajánlatokért. Válassz típusházaink közül, vagy tervezd meg a sajátodat mi megépítjük.

HÍVJ! MUTATOM!

Hirdetés feltöltve: 2025. 12. 20.

Az ingatlan elhelyezkedése

Cím: Mecsér, Nincs utca

Eladó ingatlanok a környékről

Eladó családi ház
Eladó családi ház

Töltéstava

36.9 M Ft
2 szoba
58 m2
Eladó téglalakás
Eladó téglalakás

Győr

139.9 M Ft
6 szoba
136 m2
Eladó ipari ingatlan
Eladó ipari ingatlan

Sopron

7.5 M Ft
359 m2
Eladó családi ház
Eladó családi ház

Töltéstava

36.9 M Ft
2 szoba
58 m2
Eladó családi ház
Eladó családi ház

Győr

325 M Ft
6 szoba
365 m2
Eladó téglalakás
Eladó téglalakás

Győr

67.99 M Ft
2 szoba
64 m2
Eladó családi ház
Eladó családi ház

Veszprémvarsány

119 M Ft
6 szoba
215 m2
Eladó téglalakás
Eladó téglalakás

Győr

51.9 M Ft
2 szoba
54 m2
Eladó téglalakás
Eladó téglalakás

Győr

64.9 M Ft
3 szoba
58 m2
Eladó üzlethelyiség
Eladó üzlethelyiség

Győr

124 M Ft
4 szoba
264 m2
Eladó családi ház
Eladó családi ház

Töltéstava

81.2 M Ft
5 szoba
116 m2
Eladó családi ház
Eladó családi ház

Mecsér

36 M Ft
2 + 1 szoba
139 m2
Eladó családi ház
Eladó családi ház

Győrszemere

90.588 M Ft
5 szoba
95 m2
Eladó ipari ingatlan
Eladó ipari ingatlan

Sopron

3.5 M Ft
94 m2
Eladó családi ház
Eladó családi ház

Nagycenk

102.5 M Ft
4 szoba
98 m2
Eladó családi ház
Eladó családi ház

Bősárkány

39.5 M Ft
3 + 1 szoba
95 m2
Eladó családi ház
Eladó családi ház

Zsira

110.9 M Ft
8 szoba
200 m2
Eladó családi ház
Eladó családi ház

Abda

90 M Ft
6 szoba
240 m2
Eladó téglalakás
Eladó téglalakás

Győr

54.517 M Ft
2 szoba
52 m2
Eladó családi ház
Eladó családi ház

Nagycenk

80.6 M Ft
4 szoba
106 m2
Eladó téglalakás
Eladó téglalakás

Győr

54.517 M Ft
2 szoba
52 m2
Eladó családi ház
Eladó családi ház

Győr

52 M Ft
2 szoba
60 m2
Eladó ipari ingatlan
Eladó ipari ingatlan

Sopron

5.5 M Ft
224 m2
Eladó téglalakás
Eladó téglalakás

Sopron

49.9 M Ft
2 szoba
74 m2

Falusi CSOK ingatlanok

Eladó családi ház
Eladó családi ház

Tabajd

79 M Ft
4 szoba
82 m2
Eladó családi ház
Eladó családi ház

Szólád

104.9 M Ft
6 + 1 szoba
245 m2
Eladó téglalakás
Eladó téglalakás

Hegyeshalom

56.9 M Ft
3 szoba
80 m2
Eladó családi ház
Eladó családi ház

Vasszécseny

20 M Ft
2 szoba
139 m2
Eladó családi ház
Eladó családi ház

Hosszúhetény

89.9 M Ft
5 szoba
121 m2
Eladó családi ház
Eladó családi ház

Örkény

52.606 M Ft
3 szoba
109 m2
Eladó családi ház
Eladó családi ház

Kétegyháza

15.9 M Ft
3 szoba
95 m2
Eladó családi ház
Eladó családi ház

Verseg

84.9 M Ft
6 szoba
152 m2

Falusi CSOK ingatlanok

Eladó családi ház
Eladó családi ház

Kaposgyarmat

5.9 M Ft
1 szoba
40 m2
Eladó ikerház
Eladó ikerház

Bodajk

64.9 M Ft
5 szoba
108 m2
Eladó családi ház
Eladó családi ház

Himesháza

56.5 M Ft
3 szoba
110 m2
Eladó családi ház
Eladó családi ház

Onga

72.9 M Ft
4 szoba
109 m2
Eladó családi ház
Eladó családi ház

Dombrád

8 M Ft
2 szoba
85 m2
Eladó családi ház
Eladó családi ház

Enese

78.9 M Ft
4 szoba
90 m2
Eladó családi ház
Eladó családi ház

Úrkút

94.9 M Ft
4 szoba
186 m2
Eladó téglalakás
Eladó téglalakás

Hegyeshalom

56.9 M Ft
3 szoba
80 m2