Avico Greentop

Eladó családi ház
Levelek

Figyelem!

Ez az ingatlan a 2019.07.01-től induló falusi CSOK által támogatott településen található

+ 3 kép 1/6
78 000 000 Ft78 M Ft 795 918 Ft/m2
4 szoba
98 m²
építés éve:2026

Részletes adatok

Telekméret: 1000 m2
Fűtés: Gázkazán
Közmű: Víz, Gáz, Villany, Csatorna
Komfort: Összkomfortos
Energetikai besorolás: Nem adta meg a hirdető

Az OTP Bank lakáshitel ajánlataFizetett hirdetés

+36 70 418
Kovács Péter
referens

Érdekel az OTP Bank kedvezményes lakáshitel ajánlata? *

* A kérdésre „Igen” válasz bejelölése esetén, az „Üzenet küldése” gombra kattintva kijelentem, hogy az OTP Bank Nyrt. Adatkezelési tájékoztatójának tartalmát megismertem és tudomásul vettem.

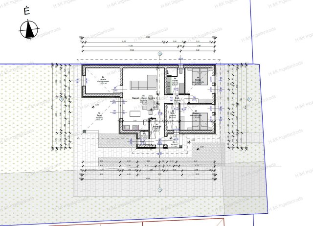
Eladó családi ház leírása

Új építésű, családi ház Leveleken!

A ház 1000 nm-es telekre épül, lakótere 88 nm + 18 nm terasz + 2,77 nm szélfogó , amerikai-konyhás nappali + 3 szobás.

CÉGES ÉPÍTKEZÉS, az aktuális állami támogatások valamint kedvezményes, kamattámogatott hitelek felvehetőek.

Rövid műszaki tartalom:
A ház falai 30 cm-es TÉGLÁBÓL épülnek + 15 cm dryvit szigeteléssel.
A tető beton cserépfedést kap.
Az ablakok műanyag szerkezettel, thermo üveggel kerülnek beépítésre.

A fűtés gázkazánnal kerül kialakításra.

Parkolás: zárt udvari gépkocsi beállón

Az ingatlan kulcsrakész állapotban kerül átadásra, konyhabútor nélkül.

A szobákban laminált parketta, a vizes helyiségekben kerámia lapok kerülnek, a belső műszaki tartalomban feltüntetett összegig a vételár részét képezve.

A látványterv a lehetséges kialakítást és hangulatot szemlélteti. A tényleges megvalósítás az alaprajz és műszaki tartalom szerint történik. A berendezett kép csak egy látványterv, hogy könnyebb legyen elképzelni a tér lehetőségeit – az ingatlan a valóságban bútorozatlan.

Ára: 78.000.000.- Ft
Azonosító: 4683

Hirdetés feltöltve: 2026. 04. 03. Utoljára módosítva: 2026. 05. 12.

Az ingatlan elhelyezkedése

Cím: Levelek

Eladó családi házak a környékről

Levelek
Eladó családi ház

Levelek

73 M Ft
5 szoba
220 m²
Nyíregyháza
Eladó családi ház

Nyíregyháza

98 M Ft
4 szoba
125 m²
Nyíregyháza
Eladó családi ház

Nyíregyháza

150 M Ft
2 szoba
120 m²
Levelek
Eladó családi ház

Levelek

15.5 M Ft
1 + 1 szoba
61 m²
Nyírtelek
Eladó családi ház

Nyírtelek

130 M Ft
3 szoba
159 m²
Nyíregyháza
Eladó családi ház

Nyíregyháza

190 M Ft
4 szoba
230 m²
Levelek
Eladó családi ház

Levelek

4.9 M Ft
1 szoba
15 m²
Nyíregyháza
Eladó családi ház

Nyíregyháza

63.9 M Ft
2 + 1 szoba
100 m²
Levelek
Eladó családi ház

Levelek

15.5 M Ft
1 + 1 szoba
61 m²
Nyíregyháza
Eladó családi ház

Nyíregyháza

90 M Ft
5 szoba
210 m²
Levelek
Eladó családi ház

Levelek

16 M Ft
1 szoba
37 m²
Levelek
Eladó családi ház

Levelek

79.9 M Ft
3 szoba
90 m²
Nyíregyháza
Eladó családi ház

Nyíregyháza

90 M Ft
3 szoba
170 m²
Levelek
Eladó családi ház

Levelek

15.5 M Ft
1 + 1 szoba
61 m²
Nyíregyháza
Eladó családi ház

Nyíregyháza

69.9 M Ft
3 szoba
140 m²
Nyíregyháza
Eladó családi ház

Nyíregyháza

60 M Ft
3 szoba
100 m²
Levelek
Eladó családi ház

Levelek

15.5 M Ft
1 + 1 szoba
61 m²
Napkor
Eladó családi ház

Napkor

115 M Ft
5 szoba
292 m²
Nyíregyháza
Eladó családi ház

Nyíregyháza

90 M Ft
3 + 1 szoba
100 m²
Levelek
Eladó családi ház

Levelek

15.5 M Ft
1 + 1 szoba
61 m²
Levelek
Eladó családi ház

Levelek

15.5 M Ft
1 + 1 szoba
61 m²
Levelek
Eladó családi ház

Levelek

15.5 M Ft
1 + 1 szoba
61 m²
Levelek
Eladó családi ház

Levelek

40 M Ft
1 + 1 szoba
168 m²
Nyíregyháza
Eladó családi ház

Nyíregyháza

159 M Ft
2 szoba
130 m²

Falusi CSOK ingatlanok

Segesd
Eladó családi ház

Segesd

79.9 M Ft
8 szoba
500 m²
Halimba
Eladó családi ház

Halimba

59.9 M Ft
6 szoba
182 m²
Szigetújfalu
Eladó családi ház

Szigetújfalu

66 M Ft
3 szoba
118 m²
Csárdaszállás
Eladó családi ház

Csárdaszállás

11.99 M Ft
3 + 2 szoba
100 m²
Pécsvárad
Eladó családi ház

Pécsvárad

189 M Ft
7 szoba
618 m²
Galgahévíz
Eladó családi ház

Galgahévíz

43 M Ft
3 szoba
115 m²
Jászkarajenő
Eladó családi ház

Jászkarajenő

17 M Ft
3 szoba
81 m²
Ásványráró
Eladó családi ház

Ásványráró

42.5 M Ft
703 m²
69 m²

Falusi CSOK ingatlanok

Zagyvarékas, Erdő utca 16
Eladó családi ház

Zagyvarékas

0.1 M Ft
2 szoba
113 m²
Segesd
Eladó családi ház

Segesd

79.9 M Ft
8 szoba
500 m²
Himesháza
Eladó családi ház

Himesháza

30 M Ft
3 szoba
92 m²
Tab, Rákóczi utca 45
Eladó családi ház

Tab

17.13 M Ft
1 + 1 szoba
105 m²
Csurgó
Eladó családi ház

Csurgó

29 M Ft
3 szoba
80 m²
Levelek
Eladó családi ház

Levelek

74 M Ft
6 + 1 szoba
190 m²
Tápióság
Eladó családi ház

Tápióság

57 M Ft
4 szoba
94 m²
Verseg
Eladó családi ház

Verseg

69.9 M Ft
4 szoba
0 m²