Astora Art House

Eladó családi ház
Kálmánháza

Figyelem!

Ez az ingatlan a 2019.07.01-től induló falusi CSOK által támogatott településen található

+ 17 kép 1/20
72 000 000 Ft72 M Ft 476 821 Ft/m2
3 + 1 szoba
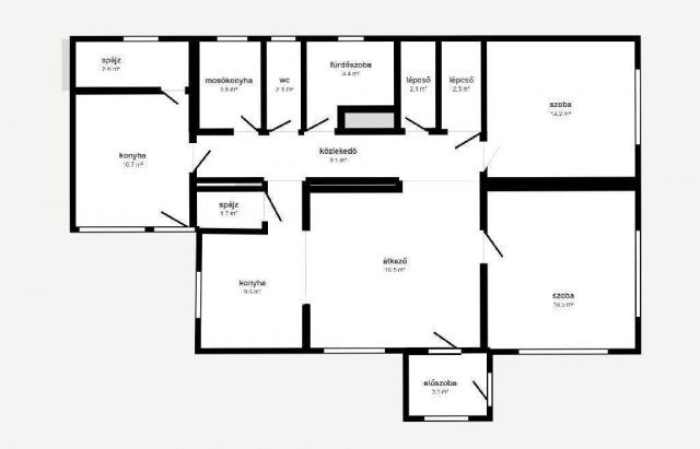
151 m2
építés éve:1988

Részletes adatok

Telekméret: 1591 m2
Fűtés: Gázkazán
Energetikai besorolás: Nem adta meg a hirdető

Az OTP Bank lakáshitel ajánlataFizetett hirdetés

+36 31 771
Huszár Gabriella
OTPIP Nyíregyháza Hunyadi u.

Érdekel az OTP Bank kedvezményes lakáshitel ajánlata? *

* A kérdésre „Igen” válasz bejelölése esetén, az „Üzenet küldése” gombra kattintva kijelentem, hogy az OTP Bank Nyrt. Adatkezelési tájékoztatójának tartalmát megismertem és tudomásul vettem.

Eladó családi ház leírása

Kiváló állapotú, duplakomfortos, napelemes családi ház eladó Kálmánházán - gazdálkodásra, vállalkozásra és nagycsaládosoknak is tökéletes választás!

Eladásra kínálom ezt a szigetelt, korszerű és rendkívül jól felszerelt családi házat, amely egyaránt ideális állandó lakhatásra, többgenerációs életformára, vagy akár gazdasági, vállalkozási célokra is.

A csendes, jól megközelíthető környéken található ingatlan nemcsak otthonként, hanem lehetőségként is megállja a helyét.

Főbb jellemzők:
Telek mérete: 1591 nm szépen karbantartott, gondozott udvarral.
Lakóház: 151 nm szigetelt, jó állapotú.
Duplakomfortos kialakítás, 3 fürdőszoba, kényelmes belső elrendezés.
Fűtés: gázkazán és vegyestüzelésű kazán egyaránt rendelkezésre áll.
Napelemes rendszer -alacsony fenntartási költségek önfenntartó ház.
4 db hűtő-fűtő klímák.
Garázs és 60 nm-es, több helységes száraz pince.
Kerekes kút - öntözéshez, gazdasági használatra ideális.

Belső elrendezés:
Földszint: nappali, konyha, 2 szoba, fürdőszoba és külön mosókonyha. Lejárat a pincébe, illetve feljárat az emeletre.

Emelet: 2 különnyíló hálószoba, gardróbszoba, fürdőszoba.

Gazdálkodásra és vállalkozásra alkalmas melléképületek:
Hűtőház - kiváló kereskedelmi vagy háztáji célokra, Füstölő - házi húsfeldolgozáshoz.

Több melléképület, melyek állattartásra alkalmas állapotban.

Óriási, könnyűszerkezetes tárolócsarnok - akár traktor vagy nagyobb mezőgazdasági gépek elhelyezésére is megfelelő.

Kinek ajánlom?
Olyan vevőnek, aki a kényelmet, a praktikumot és a gazdasági lehetőségeket egyszerre keresi. Nagycsaládosoknak vagy több generáció együttélésére. Gazdálkodóknak, vállalkozóknak. Akik egy minden szempontból jól felszerelt, önellátásra is alkalmas otthont keresnek.

Ez az ingatlan többet nyújt, mint egy egyszerű otthon - valódi érték, hosszú távú lehetőségekkel!
Hívjon bizalommal vagy írjon üzenetet a megtekintéshez!
OTP Ingatlanpont - megbízhat bennünk.

OTP Banki hátterünknek köszönhetően finanszírozási igényekben (pl. Otthon Start Hitelprogram , Babaváró, Falusi CSOK, CSOK Plusz, Lakáshitel, Személyi kölcsön stb.), illetve biztosítások tekintetében is díjmentesen, soron kívüli ügyintézéssel segítem ügyfeleim! Referenciaszám: M308022

Hirdetés feltöltve: 2025. 12. 05. Utoljára módosítva: 2026. 01. 13.

Az ingatlan elhelyezkedése

Cím: Kálmánháza

Eladó családi házak a környékről

Eladó családi ház
Eladó családi ház

Kálmánháza

79.9 M Ft
5 szoba
137 m2
Eladó családi ház
Eladó családi ház

Kálmánháza

79.9 M Ft
5 szoba
137 m2
Eladó családi ház
Eladó családi ház

Nyíregyháza

82 M Ft
4 szoba
140 m2
Eladó családi ház
Eladó családi ház

Kálmánháza

30 M Ft
3 szoba
114 m2
Eladó családi ház
Eladó családi ház

Nyíregyháza

89.9 M Ft
5 szoba
274 m2
Eladó családi ház
Eladó családi ház

Kálmánháza

72 M Ft
3 + 1 szoba
151 m2
Eladó családi ház
Eladó családi ház

Nyírtelek

130 M Ft
3 szoba
159 m2
Eladó családi ház
Eladó családi ház

Kálmánháza

30 M Ft
3 szoba
114 m2
Eladó családi ház
Eladó családi ház

Nyíregyháza

60 M Ft
3 szoba
100 m2
Eladó családi ház
Eladó családi ház

Kálmánháza

83 M Ft
4 + 1 szoba
225 m2
Eladó családi ház
Eladó családi ház

Napkor

115 M Ft
5 szoba
292 m2
Eladó családi ház
Eladó családi ház

Nyíregyháza

62 M Ft
4 szoba
140 m2
Eladó családi ház
Eladó családi ház

Kálmánháza

83 M Ft
4 + 1 szoba
225 m2
Eladó családi ház
Eladó családi ház

Balsa

38.9 M Ft
6 szoba
120 m2
Eladó családi ház
Eladó családi ház

Kálmánháza

72 M Ft
3 + 1 szoba
151 m2
Eladó családi ház
Eladó családi ház

Kálmánháza

30 M Ft
3 szoba
114 m2
Eladó családi ház
Eladó családi ház

Nyíregyháza

92 M Ft
3 szoba
161 m2
Eladó családi ház
Eladó családi ház

Kálmánháza, Petőfi Sándor utca

29.9 M Ft
2 szoba
80 m2
Eladó családi ház
Eladó családi ház

Kálmánháza

72 M Ft
3 + 1 szoba
151 m2
Eladó családi ház
Eladó családi ház

Nyíregyháza

64.9 M Ft
3 szoba
140 m2
Eladó családi ház
Eladó családi ház

Kálmánháza

79.9 M Ft
5 szoba
137 m2
Eladó családi ház
Eladó családi ház

Nyíregyháza

98 M Ft
4 szoba
125 m2
Eladó családi ház
Eladó családi ház

Nyíregyháza

90 M Ft
3 szoba
170 m2
Eladó családi ház
Eladó családi ház

Nyíregyháza

100 M Ft
4 szoba
220 m2

Falusi CSOK ingatlanok

Eladó családi ház
Eladó családi ház

Helesfa

17.999 M Ft
2 szoba
74 m2
Eladó családi ház
Eladó családi ház

Tiszaroff

13.9 M Ft
2 szoba
81 m2
Eladó családi ház
Eladó családi ház

Tabdi

95 M Ft
45 szoba
1490 m2
Eladó családi ház
Eladó családi ház

Ráksi

69.9 M Ft
4 szoba
139 m2
Eladó családi ház
Eladó családi ház

Bakonyszentkirály

99.99 M Ft
5 szoba
126 m2
Eladó családi ház
Eladó családi ház

Alattyán

45 M Ft
4 + 1 szoba
186 m2
Eladó családi ház
Eladó családi ház

Pusztamonostor

22 M Ft
3 szoba
86 m2
Eladó családi ház
Eladó családi ház

Újlengyel

110 M Ft
4 szoba
121 m2

Falusi CSOK ingatlanok

Eladó családi ház
Eladó családi ház

Illocska, Fő utca 27

6.2 M Ft
1 + 1 szoba
117 m2
Eladó családi ház
Eladó családi ház

Városlőd

51.9 M Ft
1 + 2 szoba
53 m2
Eladó családi ház
Eladó családi ház

Szigetcsép

89.9 M Ft
5 szoba
193 m2
Eladó családi ház
Eladó családi ház

Bag

16.9 M Ft
6 szoba
160 m2
Eladó családi ház
Eladó családi ház

Kesztölc

129.9 M Ft
8 szoba
210 m2
Eladó családi ház
Eladó családi ház

Tarján

29.9 M Ft
3 szoba
120 m2
Eladó családi ház
Eladó családi ház

Nagykörű, Jókai Mór utca 20

8.97 M Ft
1 + 1 szoba
101 m2
Eladó családi ház
Eladó családi ház

Pécsvárad

189 M Ft
7 szoba
618 m2