Metrodom

Eladó családi ház
Hosszúhetény

Figyelem!

Ez az ingatlan a 2019.07.01-től induló falusi CSOK által támogatott településen található

1/1
97 000 000 Ft97 M Ft 923 810 Ft/m2
3 szoba
105 m²
építés éve:1980

Részletes adatok

Állapot: Felújított
Telekméret: 1149 m2
Fűtés: Egyéb
Energetikai besorolás: A+++

Az OTP Bank lakáshitel ajánlataFizetett hirdetés

+36 20 938
Vincze László György
OTPIP - Pécs, Rákóczi út 19.

Érdekel az OTP Bank kedvezményes lakáshitel ajánlata? *

* A kérdésre „Igen” válasz bejelölése esetén, az „Üzenet küldése” gombra kattintva kijelentem, hogy az OTP Bank Nyrt. Adatkezelési tájékoztatójának tartalmát megismertem és tudomásul vettem.

Eladó családi ház leírása

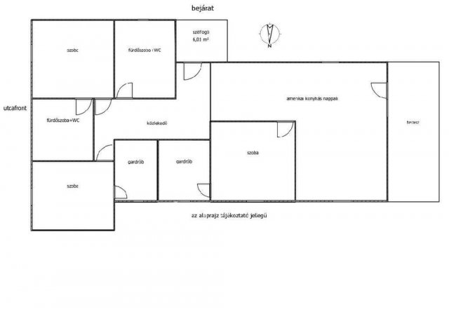
105 négyzetméteres ház eladó Hosszúhetényben a központ közelében!

Pontosabban 2026-2027-ben fog elkészülni a teljes felújítás. Egy minden részében felújított ház lesz belőle.
3 szoba lesz, 2 gardróbbal. A két gardrób igény szerint újabb szobává alakítható át. Lehetőség van más megoldásra is, a belső választófalak igény szerint átrakhatók.

2 db fürdőszoba + WC lesz kialakítva, az egyik a nagyhálóból nyílik káddal, a másik a közlekedőből tusolóval.

Egy amerikai konyhás nappali lesz kialakítva. A megfelelő csatlakozások (víz, szennyvíz, villany) ki lesznek alakítva, de a konyabútort nem építi be az építő cég. A mennyiben az új tulajdonos kéri, az is megteszi. Olyan méretű, és elrendezésű, valamint gépesítettségű konyha lesz, amit az új tulajdonos kér. Itt klíma is lesz felszerelve (igény szerint máshova is lehet). Innen lehet kimenni a teraszra, ami az udvar felé nyílik, ami 1149 négyzetméteres a házzal együtt.

Minden burkolóanyag (csempe, járólap, laminált padló) új lesz. Az új tulajdonos megválaszthatja a színt, és a minőséget. Amennyiben a betervezett jó minőségi szint fölé szeretne menni az új tulajdonos, arra is lesz lehetőség az árkülönbözet kifizetése után.

A fűtés hőszivattyús rendszerrel lesz kialakítva padlófűtéssel. Teljesen új vezetékek lesznek mindenütt, úgy, hogy az estlegesen később felszerelésre kerülő napelem rendszer fogadására is ki lesz építve. Mivel a gázcsonk a kerítésen belül van, akár gáz cirkófűtés is lehetséges.

Új lesz a tető, az összes fal téglából lesz 15 centiméteres hűszigetelő burkolattal. Minden nyílászáró új lesz. A külsők hőszigetelt műanyagból, elektromos redőnyökkel, és szúnyoghálóval lesznek felszerelve.

Az udvarban egy féltetős kialakítású garázs lesz kialakítva. Sok melléképület van, szerszámok. kerékpárok, babakocsik tárolására, vagy gazdálkodásra. Egy kút is van az udvarban, amivel az öntözést lehet megoldani.

Amennyiben az új tulajdonos megveszi az ingatlant, fel lesz gyorsítva a felújítás, fél év múlva kulcsátadás.

Referenciaszám: M325548

97000000 Ft

Referencia szám: M325548

Hirdetés feltöltve: 2026. 04. 01. Utoljára módosítva: 2026. 05. 10.

3 szobás családi házak ára Hosszúhetényen

Ebből az összehasonlításból megtudhatod, hogyan viszonyul a lakás ára a környékbeli családi házak átlagos árához. Ez nem azt jelenti, hogy ennyivel olcsóbb vagy drágább, mint amennyit a lakás ér, hanem hogy ennyivel tér el a környékbeli átlagtól.

Ennek a m² ára
Hosszúhetény m² ár
924 e Ft
373 e Ft -147%
Ennek az ára
Hosszúhetény átlagár
97 M Ft m Ft
30.5 m Ft -218%

Az ingatlan elhelyezkedése

Cím: Hosszúhetény

Eladó családi házak a környékről

Versend
Eladó családi ház

Versend

75 M Ft
3 szoba
123 m²
Hosszúhetény, Püspökszentlászló
Eladó családi ház

Hosszúhetény

185 M Ft
6 + 1 szoba
290 m²
Pécs, Kertváros, Táncsics Mihály utca
Eladó családi ház

Pécs

85 M Ft
6 szoba
185 m²
Pécs, Szabolcsfalu, Szabadságharc utca
Eladó családi ház

Pécs

58.99 M Ft
3 szoba
240 m²
Hosszúhetény, Petőfi Sándor utca 10
Eladó családi ház

Hosszúhetény

20.65 M Ft
4 + 2 szoba
133 m²
Hosszúhetény
Eladó családi ház

Hosszúhetény

73 M Ft
4 szoba
142 m²
Lánycsók
Eladó családi ház

Lánycsók

75 M Ft
7 szoba
247 m²
Mohács, Szőlőhegy
Eladó családi ház

Mohács

32.99 M Ft
2 szoba
72 m²
Magyartelek, Újsor utca
Eladó családi ház

Magyartelek

16.5 M Ft
3 szoba
75 m²
Pécs, Csoronika, Jakabhegyi út
Eladó családi ház

Pécs

99 M Ft
3000 m²
576 m²
Szentlőrinc, Bertalan püspök utca
Eladó családi ház

Szentlőrinc

85 M Ft
3 szoba
330 m²
Hosszúhetény
Eladó családi ház

Hosszúhetény

97 M Ft
3 szoba
105 m²
Pécs
Eladó családi ház

Pécs

270 M Ft
5 szoba
350 m²
Hosszúhetény, Szőlőhegy
Eladó családi ház

Hosszúhetény

12 M Ft
1 + 1 szoba
4824 m²
Hosszúhetény
Eladó családi ház

Hosszúhetény

73 M Ft
4 szoba
142 m²
Hosszúhetény
Eladó családi ház

Hosszúhetény

99 M Ft
4 szoba
160 m²
Hosszúhetény
Eladó családi ház

Hosszúhetény

97 M Ft
3 szoba
105 m²
Mohács
Eladó családi ház

Mohács

9.3 M Ft
1 szoba
30 m²
Hosszúhetény
Eladó családi ház

Hosszúhetény

99 M Ft
4 szoba
160 m²
Hosszúhetény, Fő utca
Eladó családi ház

Hosszúhetény

41.95 M Ft
3 szoba
98 m²
Siklós, Felszabadulás utca
Eladó családi ház

Siklós

199 M Ft
7 szoba
600 m²
Hosszúhetény, Püspökszentlászló
Eladó családi ház

Hosszúhetény

185 M Ft
6 + 1 szoba
290 m²
Hosszúhetény
Eladó családi ház

Hosszúhetény

29.9 M Ft
2 + 1 szoba
80 m²
Hosszúhetény
Eladó családi ház

Hosszúhetény

29.9 M Ft
2 + 1 szoba
80 m²

Falusi CSOK ingatlanok

Porva
Eladó családi ház

Porva

74.6 M Ft
3 szoba
115 m²
Hahót
Eladó családi ház

Hahót

48 M Ft
4 + 1 szoba
110 m²
Röszke
Eladó családi ház

Röszke

69.99 M Ft
4 szoba
99 m²
Balatonkenese, Széchenyi utca
Eladó téglalakás

Balatonkenese

129.9 M Ft
3 szoba
83 m²
Jászkarajenő
Eladó családi ház

Jászkarajenő

17 M Ft
3 szoba
81 m²
Tápiógyörgye
Eladó családi ház

Tápiógyörgye

22.5 M Ft
3 + 1 szoba
83 m²
Hegyeshalom, Margaréta utca 12
Eladó téglalakás

Hegyeshalom

50.09 M Ft
2 szoba
43 m²
Halimba
Eladó családi ház

Halimba

59.9 M Ft
6 szoba
182 m²

Falusi CSOK ingatlanok

Kislippó
Eladó családi ház

Kislippó

17.99 M Ft
3 szoba
100 m²
Hosszúpereszteg
Eladó családi ház

Hosszúpereszteg

27.9 M Ft
4 szoba
0 m²
Nagyszénás
Eladó családi ház

Nagyszénás

14 M Ft
3 szoba
81 m²
Bakonyszentlászló
Eladó családi ház

Bakonyszentlászló

48.5 M Ft
3 szoba
103 m²
Jobbágyi
Eladó családi ház

Jobbágyi

399 M Ft
6 + 1 szoba
200 m²
Zsámbok
Eladó családi ház

Zsámbok

30 M Ft
2 szoba
58 m²
Berzence
Eladó családi ház

Berzence

40 M Ft
3 szoba
233 m²
Mikepércs
Eladó családi ház

Mikepércs

56 M Ft
3 + 1 szoba
87 m²