Oasis Residence

Eladó családi ház
Hosszúhetény

Figyelem!

Ez az ingatlan a 2019.07.01-től induló falusi CSOK által támogatott településen található

1/1
97 000 000 Ft97 M Ft 923 810 Ft/m2
3 szoba
105 m²
építés éve:1980

Részletes adatok

Állapot: Újszerű
Telekméret: 1149 m2
Fűtés: Egyéb
Parkolás: Garázs
Közmű: Gáz
Energetikai besorolás: Nem adta meg a hirdető

Az OTP Bank lakáshitel ajánlataFizetett hirdetés

+36 20 938
Vincze László György
Pécs Király utca 75 - OTP Ingatlanpont Iroda

Érdekel az OTP Bank kedvezményes lakáshitel ajánlata? *

* A kérdésre „Igen” válasz bejelölése esetén, az „Üzenet küldése” gombra kattintva kijelentem, hogy az OTP Bank Nyrt. Adatkezelési tájékoztatójának tartalmát megismertem és tudomásul vettem.

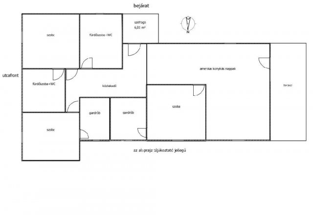
Eladó családi ház leírása

105 négyzetméteres ház eladó Hosszúhetényben a központ közelében!

Pontosabban 2026-2027-ben fog elkészülni a teljes felújítás. Egy minden részében felújított ház lesz belőle.
3 szoba lesz, 2 gardróbbal. A két gardrób igény szerint újabb szobává alakítható át. Lehetőség van más megoldásra is, a belső választófalak igény szerint átrakhatók.

2 db fürdőszoba + WC lesz kialakítva, az egyik a nagyhálóból nyílik káddal, a másik a közlekedőből tusolóval.

Egy amerikai konyhás nappali lesz kialakítva. A megfelelő csatlakozások (víz, szennyvíz, villany) ki lesznek alakítva, de a konyabútort nem építi be az építő cég. A mennyiben az új tulajdonos kéri, az is megteszi. Olyan méretű, és elrendezésű, valamint gépesítettségű konyha lesz, amit az új tulajdonos kér. Itt klíma is lesz felszerelve (igény szerint máshova is lehet). Innen lehet kimenni a teraszra, ami az udvar felé nyílik, ami 1149 négyzetméteres a házzal együtt.

Minden burkolóanyag (csempe, járólap, laminált padló) új lesz. Az új tulajdonos megválaszthatja a színt, és a minőséget. Amennyiben a betervezett jó minőségi szint fölé szeretne menni az új tulajdonos, arra is lesz lehetőség az árkülönbözet kifizetése után.

A fűtés hőszivattyús rendszerrel lesz kialakítva padlófűtéssel. Teljesen új vezetékek lesznek mindenütt, úgy, hogy az estlegesen később felszerelésre kerülő napelem rendszer fogadására is ki lesz építve. Mivel a gázcsonk a kerítésen belül van, akár gáz cirkófűtés is lehetséges.

Új lesz a tető, az összes fal téglából lesz 15 centiméteres hűszigetelő burkolattal. Minden nyílászáró új lesz. A külsők hőszigetelt műanyagból, elektromos redőnyökkel, és szúnyoghálóval lesznek felszerelve.

Az udvarban egy féltetős kialakítású garázs lesz kialakítva. Sok melléképület van, szerszámok. kerékpárok, babakocsik tárolására, vagy gazdálkodásra. Egy kút is van az udvarban, amivel az öntözést lehet megoldani.

Amennyiben az új tulajdonos megveszi az ingatlant, fel lesz gyorsítva a felújítás, fél év múlva kulcsátadás.

Referenciaszám: M325548

Hirdetés feltöltve: 2026. 04. 01. Utoljára módosítva: 2026. 05. 10.

3 szobás családi házak ára Hosszúhetényen

Ebből az összehasonlításból megtudhatod, hogyan viszonyul a lakás ára a környékbeli családi házak átlagos árához. Ez nem azt jelenti, hogy ennyivel olcsóbb vagy drágább, mint amennyit a lakás ér, hanem hogy ennyivel tér el a környékbeli átlagtól.

Ennek a m² ára
Hosszúhetény m² ár
924 e Ft
373 e Ft -147%
Ennek az ára
Hosszúhetény átlagár
97 M Ft m Ft
30.5 m Ft -218%

Az ingatlan elhelyezkedése

Cím: Hosszúhetény

Eladó családi házak a környékről

Magyartelek, Újsor utca
Eladó családi ház

Magyartelek

16.5 M Ft
3 szoba
75 m²
Hosszúhetény, Szőlőhegy
Eladó családi ház

Hosszúhetény

12 M Ft
1 + 1 szoba
4824 m²
Mohács
Eladó családi ház

Mohács

25 M Ft
4 szoba
120 m²
Hosszúhetény, Fő utca
Eladó családi ház

Hosszúhetény

73 M Ft
3 szoba
142 m²
Magyarhertelend, Bokréta utca
Eladó családi ház

Magyarhertelend

24.9 M Ft
3 + 3 szoba
102 m²
Hosszúhetény
Eladó családi ház

Hosszúhetény

99 M Ft
4 szoba
160 m²
Hosszúhetény
Eladó családi ház

Hosszúhetény

29.9 M Ft
2 + 1 szoba
80 m²
Hosszúhetény
Eladó családi ház

Hosszúhetény

29.9 M Ft
2 + 1 szoba
80 m²
Hosszúhetény
Eladó családi ház

Hosszúhetény

99 M Ft
4 szoba
160 m²
Hosszúhetény, Fő utca
Eladó családi ház

Hosszúhetény

41.95 M Ft
3 szoba
98 m²
Hosszúhetény, Petőfi Sándor utca 10
Eladó családi ház

Hosszúhetény

20.65 M Ft
4 + 2 szoba
133 m²
Hosszúhetény
Eladó családi ház

Hosszúhetény

99 M Ft
4 szoba
160 m²
Hosszúhetény
Eladó családi ház

Hosszúhetény

99 M Ft
4 szoba
160 m²
Pécs, Kertváros, Táncsics Mihály utca
Eladó családi ház

Pécs

85 M Ft
6 szoba
185 m²
Lánycsók
Eladó családi ház

Lánycsók

75 M Ft
7 szoba
247 m²
Mohács
Eladó családi ház

Mohács

13.5 M Ft
1 szoba
50 m²
Hosszúhetény, Iskola utca
Eladó családi ház

Hosszúhetény

40 M Ft
5 szoba
140 m²
Hosszúhetény, Püspökszentlászló
Eladó családi ház

Hosszúhetény

185 M Ft
6 + 1 szoba
290 m²
Palotabozsok
Eladó családi ház

Palotabozsok

9.9 M Ft
3 szoba
0 m²
Hosszúhetény
Eladó családi ház

Hosszúhetény

99 M Ft
4 szoba
160 m²
Hosszúhetény
Eladó családi ház

Hosszúhetény

99 M Ft
4 szoba
160 m²
Görcsöny, Hársfa utca
Eladó családi ház

Görcsöny

249 M Ft
5 szoba
270 m²
Pécs, Meszesi lakóövezet, Pacca dűlő
Eladó családi ház

Pécs

16 M Ft
1 szoba
28 m²
Siklós, Külterület
Eladó családi ház

Siklós

61.5 M Ft
2 szoba
110 m²

Falusi CSOK ingatlanok

Kétpó
Eladó családi ház

Kétpó

14.9 M Ft
1 + 2 szoba
86 m²
Onga
Eladó családi ház

Onga

46.99 M Ft
3 szoba
120 m²
Bakonyszentkirály
Eladó családi ház

Bakonyszentkirály

99.99 M Ft
5 szoba
126 m²
Ásványráró
Eladó családi ház

Ásványráró

42.5 M Ft
703 m²
69 m²
Nagyhegyes
Eladó családi ház

Nagyhegyes

92900 M Ft
3 + 1 szoba
120 m²
Balatonkenese, Széchenyi utca
Eladó téglalakás

Balatonkenese

129.9 M Ft
3 szoba
83 m²
Pilisszentkereszt
Eladó családi ház

Pilisszentkereszt

68.9 M Ft
2 szoba
50 m²
Tápiószőlős
Eladó családi ház

Tápiószőlős

9.9 M Ft
3 szoba
0 m²

Falusi CSOK ingatlanok

Pócsa
Eladó családi ház

Pócsa

29.9 M Ft
4 szoba
113 m²
Fonyód, Rózsa utca
Eladó ikerház

Fonyód

105 M Ft
5 szoba
134 m²
Nagyhegyes
Eladó családi ház

Nagyhegyes

54.99 M Ft
2 szoba
79 m²
Zalaszentiván
Eladó ikerház

Zalaszentiván

54.99 M Ft
5 szoba
160 m²
Csurgó
Eladó téglalakás

Csurgó

12.5 M Ft
2 szoba
54 m²
Sumony
Eladó családi ház

Sumony

19 M Ft
4 szoba
120 m²
Levelek
Eladó családi ház

Levelek

74 M Ft
6 + 1 szoba
190 m²
Balatonszemes
Eladó téglalakás

Balatonszemes

91.5 M Ft
2 szoba
0 m²