BAM Living

Eladó családi ház
Hosszúhetény

Figyelem!

Ez az ingatlan a 2019.07.01-től induló falusi CSOK által támogatott településen található

1/1
97 000 000 Ft97 M Ft 923 810 Ft/m2
3 szoba
105 m²
építés éve:1980

Részletes adatok

Állapot: Felújított
Telekméret: 1149 m2
Fűtés: Egyéb
Energetikai besorolás: H

Az OTP Bank lakáshitel ajánlataFizetett hirdetés

+36 20 390
Rózsavölgyi Csilla
OTPIP - Pécs, Rákóczi út 19.

Érdekel az OTP Bank kedvezményes lakáshitel ajánlata? *

* A kérdésre „Igen” válasz bejelölése esetén, az „Üzenet küldése” gombra kattintva kijelentem, hogy az OTP Bank Nyrt. Adatkezelési tájékoztatójának tartalmát megismertem és tudomásul vettem.

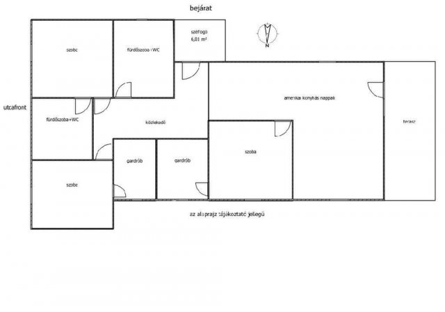
Eladó családi ház leírása

105 négyzetméteres ház eladó Hosszúhetényben a központ közelében!

Pontosabban 2026-2027-ben fog elkészülni a teljes felújítás. Egy minden részében felújított ház lesz belőle.
3 szoba lesz, 2 gardróbbal. A két gardrób igény szerint újabb szobává alakítható át. Lehetőség van más megoldásra is, a belső választófalak igény szerint átrakhatók.

2 db fürdőszoba + WC lesz kialakítva, az egyik a nagyhálóból nyílik káddal, a másik a közlekedőből tusolóval.

Egy amerikai konyhás nappali lesz kialakítva. A megfelelő csatlakozások (víz, szennyvíz, villany) ki lesznek alakítva, de a konyabútort nem építi be az építő cég. A mennyiben az új tulajdonos kéri, az is megteszi. Olyan méretű, és elrendezésű, valamint gépesítettségű konyha lesz, amit az új tulajdonos kér. Itt klíma is lesz felszerelve (igény szerint máshova is lehet). Innen lehet kimenni a teraszra, ami az udvar felé nyílik, ami 1149 négyzetméteres a házzal együtt.

Minden burkolóanyag (csempe, járólap, laminált padló) új lesz. Az új tulajdonos megválaszthatja a színt, és a minőséget. Amennyiben a betervezett jó minőségi szint fölé szeretne menni az új tulajdonos, arra is lesz lehetőség az árkülönbözet kifizetése után.

A fűtés hőszivattyús rendszerrel lesz kialakítva padlófűtéssel. Teljesen új vezetékek lesznek mindenütt, úgy, hogy az estlegesen később felszerelésre kerülő napelem rendszer fogadására is ki lesz építve. Mivel a gázcsonk a kerítésen belül van, akár gáz cirkófűtés is lehetséges.

Új lesz a tető, az összes fal téglából lesz 15 centiméteres hűszigetelő burkolattal. Minden nyílászáró új lesz. A külsők hőszigetelt műanyagból, elektromos redőnyökkel, és szúnyoghálóval lesznek felszerelve.

Az udvarban egy féltetős kialakítású garázs lesz kialakítva. Sok melléképület van, szerszámok. kerékpárok, babakocsik tárolására, vagy gazdálkodásra. Egy kút is van az udvarban, amivel az öntözést lehet megoldani.

Amennyiben az új tulajdonos megveszi az ingatlant, fel lesz gyorsítva a felújítás, fél év múlva kulcsátadás.

Referenciaszám: M325548

97000000 Ft

Hirdetés feltöltve: 2026. 04. 01. Utoljára módosítva: 2026. 05. 10.

3 szobás családi házak ára Hosszúhetényen

Ebből az összehasonlításból megtudhatod, hogyan viszonyul a lakás ára a környékbeli családi házak átlagos árához. Ez nem azt jelenti, hogy ennyivel olcsóbb vagy drágább, mint amennyit a lakás ér, hanem hogy ennyivel tér el a környékbeli átlagtól.

Ennek a m² ára
Hosszúhetény m² ár
924 e Ft
373 e Ft -147%
Ennek az ára
Hosszúhetény átlagár
97 M Ft m Ft
30.5 m Ft -218%

Az ingatlan elhelyezkedése

Cím: Hosszúhetény

Eladó családi házak a környékről

Pécs, Meszesi lakóövezet, Pacca dűlő
Eladó családi ház

Pécs

16 M Ft
1 szoba
28 m²
Hosszúhetény
Eladó családi ház

Hosszúhetény

99 M Ft
4 szoba
160 m²
Magyarhertelend, Bokréta utca
Eladó családi ház

Magyarhertelend

24.9 M Ft
3 + 3 szoba
102 m²
Mohács
Eladó családi ház

Mohács

9.3 M Ft
1 szoba
30 m²
Szentlőrinc, Bertalan püspök utca
Eladó családi ház

Szentlőrinc

85 M Ft
3 szoba
330 m²
Hosszúhetény, Fő utca
Eladó családi ház

Hosszúhetény

41.95 M Ft
3 szoba
98 m²
Hosszúhetény
Eladó családi ház

Hosszúhetény

99 M Ft
4 szoba
160 m²
Hosszúhetény
Eladó családi ház

Hosszúhetény

73 M Ft
4 szoba
142 m²
Hosszúhetény
Eladó családi ház

Hosszúhetény

99 M Ft
4 szoba
160 m²
Hosszúhetény
Eladó családi ház

Hosszúhetény

97 M Ft
3 szoba
105 m²
Hosszúhetény
Eladó családi ház

Hosszúhetény

185 M Ft
3 + 1 szoba
200 m²
Egyházaskozár, Hatos Gusztáv utca
Eladó családi ház

Egyházaskozár

4.7 M Ft
3 szoba
79 m²
Pécs, Kertváros, Táncsics Mihály utca
Eladó családi ház

Pécs

85 M Ft
6 szoba
185 m²
Hosszúhetény
Eladó családi ház

Hosszúhetény

99 M Ft
4 szoba
160 m²
Hosszúhetény
Eladó családi ház

Hosszúhetény

99 M Ft
4 szoba
160 m²
Hosszúhetény
Eladó családi ház

Hosszúhetény

99 M Ft
4 szoba
160 m²
Görcsöny, Hársfa utca
Eladó családi ház

Görcsöny

249 M Ft
5 szoba
270 m²
Hosszúhetény
Eladó családi ház

Hosszúhetény

73 M Ft
4 szoba
142 m²
Mohács
Eladó családi ház

Mohács

13.5 M Ft
1 szoba
50 m²
Hosszúhetény, Püspökszentlászló
Eladó családi ház

Hosszúhetény

185 M Ft
6 + 1 szoba
290 m²
Hosszúhetény, Petőfi Sándor utca 10
Eladó családi ház

Hosszúhetény

20.65 M Ft
4 + 2 szoba
133 m²
Hosszúhetény
Eladó családi ház

Hosszúhetény

99 M Ft
4 szoba
160 m²
Hosszúhetény
Eladó családi ház

Hosszúhetény

29.9 M Ft
2 + 1 szoba
80 m²
Pécs
Eladó családi ház

Pécs

83 M Ft
3 szoba
100 m²

Falusi CSOK ingatlanok

Rétság
Eladó téglalakás

Rétság

34.9 M Ft
2 szoba
55 m²
Tápióság
Eladó családi ház

Tápióság

30 M Ft
3 szoba
105 m²
Gyékényes
Eladó családi ház

Gyékényes

16.9 M Ft
3 szoba
83 m²
Bag
Eladó ikerház

Bag

86.5 M Ft
3 szoba
68 m²
Balatonszemes
Eladó téglalakás

Balatonszemes

91.5 M Ft
2 szoba
0 m²
Zalaszentiván
Eladó ikerház

Zalaszentiván

54.99 M Ft
5 szoba
160 m²
Bag
Eladó családi ház

Bag

16.9 M Ft
6 szoba
160 m²
Jászkarajenő
Eladó családi ház

Jászkarajenő

17 M Ft
3 szoba
81 m²

Falusi CSOK ingatlanok

Villány
Eladó családi ház

Villány

31 M Ft
1 szoba
35 m²
Andornaktálya
Eladó családi ház

Andornaktálya

35.9 M Ft
2 + 2 szoba
840 m²
Bag
Eladó családi ház

Bag

16.9 M Ft
6 szoba
160 m²
Szentmártonkáta
Eladó családi ház

Szentmártonkáta

59.99 M Ft
6 szoba
117 m²
Igal
Eladó családi ház

Igal

45.9 M Ft
5 szoba
280 m²
Nagyszénás
Eladó családi ház

Nagyszénás

14 M Ft
3 szoba
81 m²
Vértesboglár, Dózsa utca
Eladó családi ház

Vértesboglár

99 M Ft
4 szoba
110 m²
Balatonszemes
Eladó téglalakás

Balatonszemes

91.5 M Ft
2 szoba
0 m²