Astora Olive Club House

Eladó családi ház
Hosszúhetény

Figyelem!

Ez az ingatlan a 2019.07.01-től induló falusi CSOK által támogatott településen található

1/1
97 000 000 Ft97 M Ft 923 810 Ft/m2
3 szoba
105 m²
építés éve:1980

Részletes adatok

Állapot: Felújított
Telekméret: 16 m2
Fűtés: Egyéb
Energetikai besorolás: Nem adta meg a hirdető

Az OTP Bank lakáshitel ajánlataFizetett hirdetés

+36 70 393
Berkes Ilona
OTPIP - Pécs, Rákóczi út 19.

Érdekel az OTP Bank kedvezményes lakáshitel ajánlata? *

* A kérdésre „Igen” válasz bejelölése esetén, az „Üzenet küldése” gombra kattintva kijelentem, hogy az OTP Bank Nyrt. Adatkezelési tájékoztatójának tartalmát megismertem és tudomásul vettem.

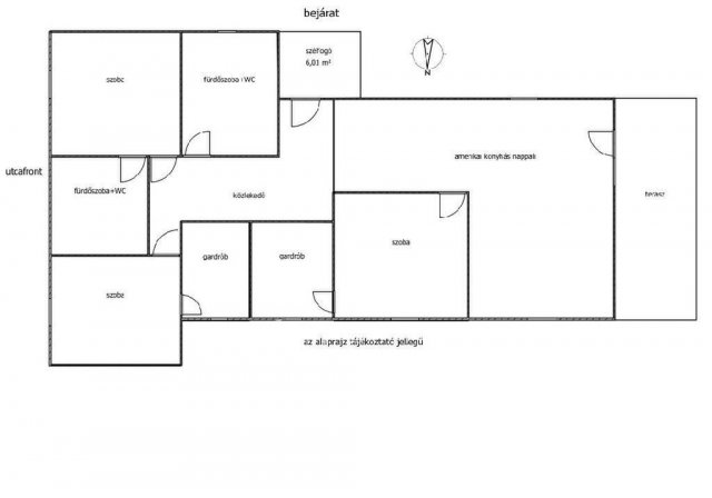
Eladó családi ház leírása

105 négyzetméteres ház eladó Hosszúhetényben a központ közelében!

Pontosabban 2026-2027-ben fog elkészülni a teljes felújítás. Egy minden részében felújított ház lesz belőle.
3 szoba lesz, 2 gardróbbal. A két gardrób igény szerint újabb szobává alakítható át. Lehetőség van más megoldásra is, a belső választófalak igény szerint átrakhatók.

2 db fürdőszoba + WC lesz kialakítva, az egyik a nagyhálóból nyílik káddal, a másik a közlekedőből tusolóval.

Egy amerikai konyhás nappali lesz kialakítva. A megfelelő csatlakozások (víz, szennyvíz, villany) ki lesznek alakítva, de a konyabútort nem építi be az építő cég. A mennyiben az új tulajdonos kéri, az is megteszi. Olyan méretű, és elrendezésű, valamint gépesítettségű konyha lesz, amit az új tulajdonos kér. Itt klíma is lesz felszerelve (igény szerint máshova is lehet). Innen lehet kimenni a teraszra, ami az udvar felé nyílik, ami 1149 négyzetméteres a házzal együtt.

Minden burkolóanyag (csempe, járólap, laminált padló) új lesz. Az új tulajdonos megválaszthatja a színt, és a minőséget. Amennyiben a betervezett jó minőségi szint fölé szeretne menni az új tulajdonos, arra is lesz lehetőség az árkülönbözet kifizetése után.

A fűtés hőszivattyús rendszerrel lesz kialakítva padlófűtéssel. Teljesen új vezetékek lesznek mindenütt, úgy, hogy az estlegesen később felszerelésre kerülő napelem rendszer fogadására is ki lesz építve. Mivel a gázcsonk a kerítésen belül van, akár gáz cirkófűtés is lehetséges.

Új lesz a tető, az összes fal téglából lesz 15 centiméteres hűszigetelő burkolattal. Minden nyílászáró új lesz. A külsők hőszigetelt műanyagból, elektromos redőnyökkel, és szúnyoghálóval lesznek felszerelve.

Az udvarban egy féltetős kialakítású garázs lesz kialakítva. Sok melléképület van, szerszámok. kerékpárok, babakocsik tárolására, vagy gazdálkodásra. Egy kút is van az udvarban, amivel az öntözést lehet megoldani.

Amennyiben az új tulajdonos megveszi az ingatlant, fel lesz gyorsítva a felújítás, fél év múlva kulcsátadás.

Referenciaszám: M325548

Referencia szám: M325548

Hirdetés feltöltve: 2026. 04. 01. Utoljára módosítva: 2026. 05. 10.

3 szobás családi házak ára Hosszúhetényen

Ebből az összehasonlításból megtudhatod, hogyan viszonyul a lakás ára a környékbeli családi házak átlagos árához. Ez nem azt jelenti, hogy ennyivel olcsóbb vagy drágább, mint amennyit a lakás ér, hanem hogy ennyivel tér el a környékbeli átlagtól.

Ennek a m² ára
Hosszúhetény m² ár
924 e Ft
373 e Ft -147%
Ennek az ára
Hosszúhetény átlagár
97 M Ft m Ft
30.5 m Ft -218%

Az ingatlan elhelyezkedése

Cím: Hosszúhetény

Eladó családi házak a környékről

Pécsvárad, Szilágypuszta
Eladó családi ház

Pécsvárad

189 M Ft
7 szoba
618 m²
Szentlőrinc, Bertalan püspök utca
Eladó családi ház

Szentlőrinc

85 M Ft
3 szoba
330 m²
Hosszúhetény
Eladó családi ház

Hosszúhetény

99 M Ft
4 szoba
160 m²
Pécs, Meszesi lakóövezet, Pacca dűlő
Eladó családi ház

Pécs

16 M Ft
1 szoba
28 m²
Mohács
Eladó családi ház

Mohács

13.5 M Ft
1 szoba
50 m²
Hosszúhetény
Eladó családi ház

Hosszúhetény

99 M Ft
4 szoba
160 m²
Palotabozsok
Eladó családi ház

Palotabozsok

9.9 M Ft
3 szoba
0 m²
Hosszúhetény
Eladó családi ház

Hosszúhetény

73 M Ft
4 szoba
142 m²
Pécs, Kertváros, Táncsics Mihály utca
Eladó családi ház

Pécs

85 M Ft
6 szoba
185 m²
Hosszúhetény
Eladó családi ház

Hosszúhetény

99 M Ft
4 szoba
160 m²
Hosszúhetény
Eladó családi ház

Hosszúhetény

99 M Ft
4 szoba
160 m²
Geresdlak, Flórián utca
Eladó családi ház

Geresdlak

15 M Ft
2 szoba
130 m²
Hosszúhetény
Eladó családi ház

Hosszúhetény

99 M Ft
4 szoba
160 m²
Hosszúhetény
Eladó családi ház

Hosszúhetény

99 M Ft
4 szoba
160 m²
Hosszúhetény
Eladó családi ház

Hosszúhetény

185 M Ft
3 + 1 szoba
200 m²
Mohács
Eladó családi ház

Mohács

9.3 M Ft
1 szoba
30 m²
Hosszúhetény, Petőfi Sándor utca 10
Eladó családi ház

Hosszúhetény

20.65 M Ft
4 + 2 szoba
133 m²
Hosszúhetény, Iskola utca
Eladó családi ház

Hosszúhetény

40 M Ft
5 szoba
140 m²
Pécs, Csoronika, Jakabhegyi út
Eladó családi ház

Pécs

99 M Ft
3000 m²
576 m²
Görcsöny, Hársfa utca
Eladó családi ház

Görcsöny

249 M Ft
5 szoba
270 m²
Hosszúhetény, Fő utca
Eladó családi ház

Hosszúhetény

41.95 M Ft
3 szoba
98 m²
Versend
Eladó családi ház

Versend

75 M Ft
3 szoba
123 m²
Hosszúhetény, Fő utca
Eladó családi ház

Hosszúhetény

73 M Ft
3 szoba
142 m²
Pécs, Szabolcsfalu, Szabadságharc utca
Eladó családi ház

Pécs

58.99 M Ft
3 szoba
240 m²

Falusi CSOK ingatlanok

Balatonudvari
Eladó családi ház

Balatonudvari

230 M Ft
9 szoba
260 m²
Gara
Eladó családi ház

Gara

24.9 M Ft
4 szoba
128 m²
Szabadbattyán
Eladó családi ház

Szabadbattyán

79.6 M Ft
4 szoba
101 m²
Parád
Eladó családi ház

Parád

55.9 M Ft
3 szoba
100 m²
Balatonszepezd
Eladó családi ház

Balatonszepezd

299 M Ft
5 szoba
220 m²
Sormás
Eladó családi ház

Sormás

116.9 M Ft
4 szoba
188 m²
Márianosztra
Eladó családi ház

Márianosztra

38 M Ft
4 szoba
75 m²
Hosszúpereszteg
Eladó családi ház

Hosszúpereszteg

27.9 M Ft
4 szoba
0 m²

Falusi CSOK ingatlanok

Hegyeshalom, Margaréta utca 12
Eladó téglalakás

Hegyeshalom

35.92 M Ft
1 szoba
31 m²
Verseg
Eladó családi ház

Verseg

69.9 M Ft
4 szoba
0 m²
Törtel
Eladó családi ház

Törtel

32.5 M Ft
3 szoba
66 m²
Tóalmás
Eladó családi ház

Tóalmás

38.9 M Ft
3 szoba
62 m²
Tápiógyörgye
Eladó családi ház

Tápiógyörgye

22.5 M Ft
3 + 1 szoba
83 m²
Kaposgyarmat
Eladó családi ház

Kaposgyarmat

695 M Ft
6 szoba
610 m²
Tápióság
Eladó családi ház

Tápióság

30 M Ft
3 szoba
105 m²
Bag
Eladó ikerház

Bag

86.5 M Ft
3 szoba
68 m²