Kedves Felhasználónk! Rendszerfrissítés miatt az oldalunk 2026. február 9-én 12 órától várhatóan 20 óráig nem lesz elérhető. Köszönjük megértésed!
Seven Pearl

Eladó családi ház
Hajdúszoboszló

+ 3 kép 1/6
260 000 000 Ft260 M Ft 1 061 224 Ft/m2
3 szoba
245 m2
építés éve:2022

Részletes adatok

Telekméret: 1730 m2
Fűtés: Geotermikus
Energetikai besorolás: Nem adta meg a hirdető

Az OTP Bank lakáshitel ajánlataFizetett hirdetés

+36 20 263
Fekete Julianna Renáta
Debrecen Kürtös utca

Érdekel az OTP Bank kedvezményes lakáshitel ajánlata? *

* A kérdésre „Igen” válasz bejelölése esetén, az „Üzenet küldése” gombra kattintva kijelentem, hogy az OTP Bank Nyrt. Adatkezelési tájékoztatójának tartalmát megismertem és tudomásul vettem.

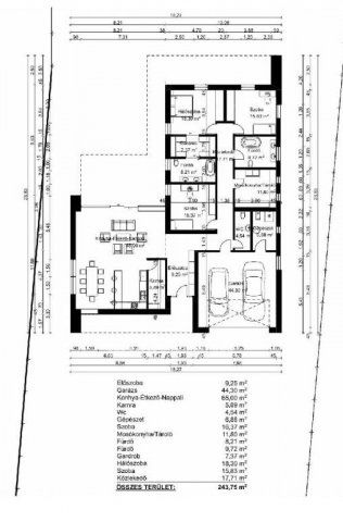
Eladó családi ház leírása

Hajdúszoboszló , Bánomkertben eladó egy Modern stílusú impozáns 250 m2 -es földszintes , Luxus családi ház.
Az ingatlan elhelyezkedését tekintve Hajdúszoboszló egyik legjobb és legzöldebb környéken helyezkedik el. Az ingatlant erdő öleli körbe , így rendkívül csendes , az utcát minimális átmenő forgalom jellemzi. Az ingatlan a jelenlegi készültségben eladó ( kb 70 % )
Kiváló választás családosok és mindazok számára akik egy igazán értékálló , modern otthont keresnek. Az ingatlant nagy és világos terek jellemzik.

Főbb paraméterek a következőek:
- 1730 m2 - es udvar, hatalmas élőkért
- 250 m2 - hasznos alapterület
- Porotherm 38 falak, 10 cm szigeteléssel
- nyílászárók beszerelése és villamoshálózat kiépítése folyamatban ( vételár tartalmazza )
- napelem előkészítés, Hőszivattyús fűtés (tervek szerint )
- monolit födém

További információért hívjon bizalommal, akár hétvégén is. Megtekintésre telefonos egyeztetés alapján van lehetőség. Kedvezményes kamatozású lakásvásárlási és felújítási hitelek az OTP hátterével irodánkban.

Referencia szám: M216864

Hirdetés feltöltve: 2025. 12. 05. Utoljára módosítva: 2026. 01. 22.

3 szobás családi házak ára Hajdúszoboszlón

Ebből az összehasonlításból megtudhatod, hogyan viszonyul a lakás ára a környékbeli családi házak átlagos árához. Ez nem azt jelenti, hogy ennyivel olcsóbb vagy drágább, mint amennyit a lakás ér, hanem hogy ennyivel tér el a környékbeli átlagtól.

Ennek a m² ára
Hajdúszoboszló m² ár
1061 e Ft
730 e Ft -45%
Ennek az ára
Hajdúszoboszló átlagár
260 M Ft m Ft
98.9 m Ft -163%

Az ingatlan elhelyezkedése

Cím: Hajdúszoboszló

Eladó családi házak a környékről

Eladó családi ház
Eladó családi ház

Hajdúszoboszló

185 M Ft
7 szoba
415 m2
Eladó családi ház
Eladó családi ház

Hajdúszoboszló

185 M Ft
6 szoba
416 m2
Eladó családi ház
Eladó családi ház

Szentpéterszeg

47 M Ft
3 szoba
92 m2
Eladó családi ház
Eladó családi ház

Debrecen

550 M Ft
16 szoba
967 m2
Eladó családi ház
Eladó családi ház

Hajdúszoboszló

119 M Ft
10 szoba
431 m2
Eladó családi ház
Eladó családi ház

Debrecen

85 M Ft
4 szoba
100 m2
Eladó családi ház
Eladó családi ház

Hajdúszoboszló

279 M Ft
13 szoba
380 m2
Eladó családi ház
Eladó családi ház

Püspökladány

59.6 M Ft
4 szoba
165 m2
Eladó családi ház
Eladó családi ház

Hajdúszoboszló

99 M Ft
5 + 1 szoba
160 m2
Eladó családi ház
Eladó családi ház

Hajdúszoboszló, Kenézy

79 M Ft
6 + 1 szoba
190 m2
Eladó családi ház
Eladó családi ház

Hajdúszoboszló

99 M Ft
5 + 1 szoba
160 m2
Eladó családi ház
Eladó családi ház

Hajdúszoboszló

61.9 M Ft
3 szoba
108 m2
Eladó családi ház
Eladó családi ház

Debrecen

139 M Ft
6 szoba
240 m2
Eladó családi ház
Eladó családi ház

Hajdúszoboszló, Kígyó utca

174.9 M Ft
6 szoba
267 m2
Eladó családi ház
Eladó családi ház

Hajdúsámson

81 M Ft
2 szoba
80 m2
Eladó családi ház
Eladó családi ház

Derecske

24.9 M Ft
2 szoba
67 m2
Eladó családi ház
Eladó családi ház

Debrecen

75 M Ft
4 szoba
96 m2
Eladó családi ház
Eladó családi ház

Hajdúszoboszló

31.7 M Ft
2 szoba
86 m2
Eladó családi ház
Eladó családi ház

Debrecen

13.9 M Ft
2 szoba
56 m2
Eladó családi ház
Eladó családi ház

Debrecen

275 M Ft
5 szoba
285 m2
Eladó családi ház
Eladó családi ház

Hajdúszoboszló

149.9 M Ft
4 szoba
263 m2
Eladó családi ház
Eladó családi ház

Hajdúszoboszló, Arany János utca

200 M Ft
11 szoba
300 m2
Eladó családi ház
Eladó családi ház

Balmazújváros

104.9 M Ft
3 szoba
172 m2
Eladó családi ház
Eladó családi ház

Püspökladány

49.8 M Ft
5 szoba
150 m2

Falusi CSOK ingatlanok

Eladó családi ház
Eladó családi ház

Drágszél, Petőfi utca 12

5.58 M Ft
1 + 1 szoba
106 m2
Eladó családi ház
Eladó családi ház

Újlengyel

59.9 M Ft
3 szoba
73 m2
Eladó családi ház
Eladó családi ház

Ceglédbercel

95 M Ft
6 szoba
220 m2
Eladó családi ház
Eladó családi ház

Somogyhárságy

186.69 M Ft
5 szoba
250 m2
Eladó családi ház
Eladó családi ház

Csátalja, Táncsics Mihály utca 2

28 M Ft
3 szoba
100 m2
Eladó családi ház
Eladó családi ház

Abádszalók

70 M Ft
3 szoba
100 m2
Eladó családi ház
Eladó családi ház

Tápszentmiklós

59.8 M Ft
5 szoba
110 m2
Eladó családi ház
Eladó családi ház

Bélapátfalva

29 M Ft
2 szoba
55 m2