Oasis Residence

Eladó családi ház
Győrság

Figyelem!

Ez az ingatlan a 2019.07.01-től induló falusi CSOK által támogatott településen található

+ 1 kép 1/4
72 900 000 Ft72.9 M Ft 700 962 Ft/m2
4 szoba
104 m2

Részletes adatok

Telekméret: 715 m2
Fűtés: Egyéb
Közmű: Víz, Villany, Csatorna
Energetikai besorolás: Nem adta meg a hirdető

Az OTP Bank lakáshitel ajánlataFizetett hirdetés

+36 70 886
Neizer Éva
Trendi Ingatlan

Érdekel az OTP Bank kedvezményes lakáshitel ajánlata? *

* A kérdésre „Igen” válasz bejelölése esetén, az „Üzenet küldése” gombra kattintva kijelentem, hogy az OTP Bank Nyrt. Adatkezelési tájékoztatójának tartalmát megismertem és tudomásul vettem.

Eladó családi ház leírása

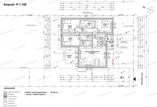
Győrság új építésű részén önálló 97,66 nm-es nappali + 3 szobás családi ház 12,77 nm-es terasszal 715 nm-es telken eladó.

A remek elosztású házban amerikai konyhás nappali, 3 szoba, fürdőszoba WC-vel, háztartási helyiség, kamra, külön WC, előtér, közlekedő található. A nappaliból 12,77 nm-es terasz nyílik.

A ház 30-as falazóelemből, 15 cm-es homlokzati szigeteléssel, 3 rétegű műanyag nyílászárókkal kerül kivitelezésre. Az ingatlan fűtését és melegvíz ellátását hőszivattyú biztosítja padlófűtéssel. Felár ellenében kerti csap, klíma- és riasztó előkészítés, térkövezés kérhető.

Fűtéskész átadás várható ideje: 2026 ősz

Az ingatlan fűtéskész ára: 72.900.000 Ft. Kulcsrakész befejezés kérhető.
Az ár tartalmazza a telek árát is.

Bővebb információkért forduljon hozzám bizalommal.
Hétköznap és hétvégén is várom hívását!

Díjmentes, bankfüggetlen hitelügyintézéssel állunk rendelkezésére.

A hirdetésben feltüntetett képek illusztrációk.

Hirdetés feltöltve: 2025. 11. 12. Utoljára módosítva: 2026. 01. 26.

4 szobás családi házak ára Győrságon

Ebből az összehasonlításból megtudhatod, hogyan viszonyul a lakás ára a környékbeli családi házak átlagos árához. Ez nem azt jelenti, hogy ennyivel olcsóbb vagy drágább, mint amennyit a lakás ér, hanem hogy ennyivel tér el a környékbeli átlagtól.

Ennek a m² ára
Győrság m² ár
701 e Ft
862 e Ft 19%
Ennek az ára
Győrság átlagár
72.9 M Ft m Ft
85 m Ft 14%

Az ingatlan elhelyezkedése

Cím: Győrság

Eladó családi házak a környékről

Eladó családi ház
Eladó családi ház

Győrság

63 M Ft
4 szoba
113 m2
Eladó családi ház
Eladó családi ház

Fertőszéplak

92 M Ft
5 szoba
95 m2
Eladó családi ház
Eladó családi ház

Gönyű

111.951 M Ft
5 szoba
105 m2
Eladó családi ház
Eladó családi ház

Győr

278 M Ft
6 szoba
339 m2
Eladó családi ház
Eladó családi ház

Győrújbarát

135.9 M Ft
4 szoba
148 m2
Eladó családi ház
Eladó családi ház

Győrság

89.9 M Ft
4 szoba
92 m2
Eladó családi ház
Eladó családi ház

Enese

64.664 M Ft
3 szoba
75 m2
Eladó családi ház
Eladó családi ház

Jánossomorja

605.679 M Ft
12 szoba
405 m2
Eladó családi ház
Eladó családi ház

Győrság

89.9 M Ft
4 szoba
92 m2
Eladó családi ház
Eladó családi ház

Győrság

99 M Ft
4 szoba
196 m2
Eladó családi ház
Eladó családi ház

Győrság

63 M Ft
4 szoba
113 m2
Eladó családi ház
Eladó családi ház

Sopron

130 M Ft
3 szoba
140 m2
Eladó családi ház
Eladó családi ház

Győr

325 M Ft
6 szoba
365 m2
Eladó családi ház
Eladó családi ház

Győrság

89.9 M Ft
4 szoba
92 m2
Eladó családi ház
Eladó családi ház

Győrújbarát

154.5 M Ft
4 szoba
230 m2
Eladó családi ház
Eladó családi ház

Kapuvár

115 M Ft
5 szoba
222 m2
Eladó családi ház
Eladó családi ház

Győrság

93.45 M Ft
4 szoba
96 m2
Eladó családi ház
Eladó családi ház

Győrság

70.1 M Ft
5 szoba
116 m2
Eladó családi ház
Eladó családi ház

Veszprémvarsány

119 M Ft
6 szoba
215 m2
Eladó családi ház
Eladó családi ház

Győrság

93.45 M Ft
4 szoba
96 m2
Eladó családi ház
Eladó családi ház

Sopron

189.9 M Ft
8 szoba
280 m2
Eladó családi ház
Eladó családi ház

Győrság

99 M Ft
5 szoba
196 m2
Eladó családi ház
Eladó családi ház

Győrság

116.9 M Ft
5 szoba
125 m2
Eladó családi ház
Eladó családi ház

Győrság

477 M Ft
15 szoba
1115 m2

Falusi CSOK ingatlanok

Eladó családi ház
Eladó családi ház

Somogyhárságy

186.69 M Ft
5 szoba
250 m2
Eladó téglalakás
Eladó téglalakás

Balatonszemes

119.9 M Ft
2 szoba
81 m2
Eladó családi ház
Eladó családi ház

Parád

25 M Ft
2 szoba
80 m2
Eladó családi ház
Eladó családi ház

Zsámbok

49.9 M Ft
3 + 1 szoba
89 m2
Eladó családi ház
Eladó családi ház

Tenk

78 M Ft
5 szoba
126 m2
Eladó családi ház
Eladó családi ház

Bugac

55 M Ft
3 szoba
90 m2
Eladó családi ház
Eladó családi ház

Illocska

15 M Ft
2 szoba
105 m2
Eladó családi ház
Eladó családi ház

Bátmonostor

22.9 M Ft
3 szoba
82 m2

Falusi CSOK ingatlanok

Eladó családi ház
Eladó családi ház

Szigetcsép

110 M Ft
3 szoba
137 m2
Eladó családi ház
Eladó családi ház

Alattyán

45 M Ft
4 + 1 szoba
186 m2
Eladó családi ház
Eladó családi ház

Iváncsa

33.9 M Ft
2 + 1 szoba
72 m2
Eladó családi ház
Eladó családi ház

Recsk

35 M Ft
5 szoba
140 m2
Eladó családi ház
Eladó családi ház

Gyöngyöshalász

59 M Ft
4 + 3 szoba
214 m2
Eladó családi ház
Eladó családi ház

Tápszentmiklós

59.8 M Ft
5 szoba
110 m2
Eladó családi ház
Eladó családi ház

Magyarszék

48.5 M Ft
3 + 1 szoba
86 m2
Eladó családi ház
Eladó családi ház

Sárisáp, Orgona utca

60 M Ft
4 szoba
145 m2