Astora Art House

Eladó családi ház
Győr

164 990 000 Ft164.99 M Ft 916 611 Ft/m2
4 szoba
180 m²
építés éve:2025

Részletes adatok

Telekméret: 540 m2
Fűtés: Egyéb
Energetikai besorolás: A++

Az OTP Bank lakáshitel ajánlataFizetett hirdetés

+36 70 372
Molnár Szidónia
Openhouse Ingatlaniroda

Érdekel az OTP Bank kedvezményes lakáshitel ajánlata? *

* A kérdésre „Igen” válasz bejelölése esetén, az „Üzenet küldése” gombra kattintva kijelentem, hogy az OTP Bank Nyrt. Adatkezelési tájékoztatójának tartalmát megismertem és tudomásul vettem.

Eladó családi ház leírása

Az Openhouse Győr - Belváros Ingatlaniroda kínálatában eladó a #180051 hivatkozási számú győri családi ház.

Új építésű, A+ energetikájú sorházi lakás Győr-Likócson

Győr-Likócs csendes, új kialakítású utcájában kínáljuk megvételre ezt a modern, kétszintes sorházi lakóegységet.

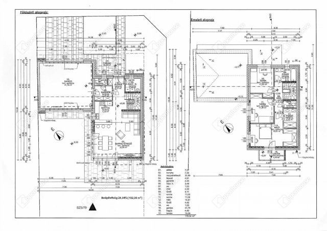
A lakás nettó 179,54 m² hasznos alapterületű, praktikus, családbarát elosztással:

tágas, 33 m²-es nappali-étkező

külön konyha + kamra

3 hálószoba

2 fürdőszoba + külön WC

gardrób és háztartási helyiség

loggia

egyállásos, közel 42 m²-es garázs

A telek területe 539 m², a tervezett zöldfelület aránya közel 60%, így valódi kertkapcsolatos otthonról beszélünk.

Műszaki tartalom:

levegő–víz hőszivattyús rendszer

padlófűtés

1x32 A nappali + 1x20 A H-tarifa

korszerű, rejtett villamos hálózat

Az ingatlan A+ energetikai besorolású, az összesített energetikai jellemző 67,24 kWh/m²/év, megfelel a közel nulla energiaigény követelményeinek.

Letisztult, lapostetős, modern megjelenés, zártsorú beépítés, nyugodt, falusias lakóövezetben.

Ideális választás családok számára, akik új építésű, korszerű, alacsony rezsijű otthont keresnek Győr egyik fejlődő városrészében.

Ha felkeltette érdeklődését ez az eladó győri családi ház, vagy bármely más családi ház és bővebb információt szeretne, keressen bizalommal.Hivatkozási szám: #180051

Az Openhouse Győr - Belváros Ingatlaniroda tagjaként várom Önt az országos hálózatunk teljes kínálatával.

A családi ház vásárláshoz hitelt igényelne? Ingyenes hitelközvetítéssel segít Önnek bankfüggetlen hitelszakértőnk.

További szolgáltatásainkkal (pl. értékbecslés, energetikai tanúsítvány, jogi háttér) is segítjük Önt a vásárlásban.
Az otthon érték. Az ingatlan üzlet.

Hirdetés feltöltve: 2026. 03. 04. Utoljára módosítva: 2026. 03. 04.

4 szobás családi házak ára Győrött

Ebből az összehasonlításból megtudhatod, hogyan viszonyul a lakás ára a környékbeli családi házak átlagos árához. Ez nem azt jelenti, hogy ennyivel olcsóbb vagy drágább, mint amennyit a lakás ér, hanem hogy ennyivel tér el a környékbeli átlagtól.

Ennek a m² ára
Győr m² ár
917 e Ft
908 e Ft -1%
Ennek az ára
Győr átlagár
164.99 M Ft m Ft
125.7 m Ft -31%

Az ingatlan elhelyezkedése

Cím: Győr

Eladó családi házak a környékről

Győr
Eladó családi ház

Győr

141 M Ft
4 szoba
133 m²
Nagycenk
Eladó családi ház

Nagycenk

102.5 M Ft
4 szoba
98 m²
Győr
Eladó családi ház

Győr

179.9 M Ft
6 szoba
225 m²
Sopron
Eladó családi ház

Sopron

170 M Ft
4 szoba
122 m²
Győr
Eladó családi ház

Győr

209.18 M Ft
6 szoba
285 m²
Győr
Eladó családi ház

Győr

11 M Ft
1 szoba
18 m²
Győr
Eladó családi ház

Győr

250 M Ft
4 szoba
420 m²
Lébény
Eladó családi ház

Lébény

62.99 M Ft
4 szoba
90 m²
Nagycenk
Eladó családi ház

Nagycenk

80.6 M Ft
4 szoba
106 m²
Harka
Eladó családi ház

Harka

60.9 M Ft
3 + 1 szoba
67 m²
Győr
Eladó családi ház

Győr

160 M Ft
14 szoba
280 m²
Sopron
Eladó családi ház

Sopron

130 M Ft
3 szoba
140 m²
Harka
Eladó családi ház

Harka

99 M Ft
4 szoba
103 m²
Győr
Eladó családi ház

Győr

265 M Ft
4 szoba
220 m²
Dunakiliti
Eladó családi ház

Dunakiliti

123.713 M Ft
3 + 1 szoba
140 m²
Győr
Eladó családi ház

Győr

183.5 M Ft
5 szoba
228 m²
Győr
Eladó családi ház

Győr

220 M Ft
5 + 1 szoba
279 m²
Győr
Eladó családi ház

Győr

220 M Ft
5 szoba
279 m²
Győr
Eladó családi ház

Győr

789.36 M Ft
10.15 ha
884 m²
Győr, Likócs, Török utca
Eladó családi ház

Győr

149.8 M Ft
5 szoba
207 m²
Győrság
Eladó családi ház

Győrság

93.45 M Ft
4 szoba
96 m²
Kapuvár
Eladó családi ház

Kapuvár

22.99 M Ft
1 + 1 szoba
65 m²
Győr
Eladó családi ház

Győr

325 M Ft
6 szoba
365 m²
Győr
Eladó családi ház

Győr

149.8 M Ft
5 szoba
207 m²

Falusi CSOK ingatlanok

Bag
Eladó családi ház

Bag

16.9 M Ft
6 szoba
160 m²
Darnózseli
Eladó családi ház

Darnózseli

69.9 M Ft
4 szoba
104 m²
Hosszúhetény, Petőfi Sándor utca 10
Eladó családi ház

Hosszúhetény

20.65 M Ft
4 + 2 szoba
133 m²
Tápióbicske
Eladó családi ház

Tápióbicske

14.9 M Ft
2 szoba
51 m²
Pécsvárad
Eladó családi ház

Pécsvárad

140 M Ft
4 + 1 szoba
119 m²
Somogyhárságy
Eladó családi ház

Somogyhárságy

108.75 M Ft
4 szoba
330 m²
Perbál
Eladó családi ház

Perbál

130 M Ft
5 szoba
190 m²
Bernecebaráti
Eladó családi ház

Bernecebaráti

86 M Ft
4 szoba
95 m²