City Pearl

Eladó családi ház
Érd

+ 12 kép 1/15
60 000 000 Ft60 M Ft 1 000 000 Ft/m2
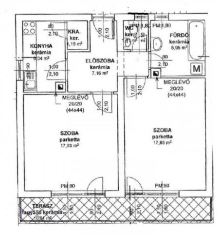
2 szoba
60 m2
építés éve:1976

Részletes adatok

Állapot: Felújítandó
Telekméret: 1145 m2
Fűtés: Gázkonvektor
Energetikai besorolás: Nem adta meg a hirdető

Az OTP Bank lakáshitel ajánlataFizetett hirdetés

+36 70 394
Bécsyné Bendly Ildikó
OTPip - Érd Bajcsy-Zsilinszky út 160 - OTP Ingatlanpont Iroda

Érdekel az OTP Bank kedvezményes lakáshitel ajánlata? *

* A kérdésre „Igen” válasz bejelölése esetén, az „Üzenet küldése” gombra kattintva kijelentem, hogy az OTP Bank Nyrt. Adatkezelési tájékoztatójának tartalmát megismertem és tudomásul vettem.

Eladó családi ház leírása

Érdliget kedvelt részén, 1145nm-es kiváló fekvésű és elhelyezkedésű telken kínálunk egy 60 nm-es korszerűsítésre váró házat. A masszív szerkezetű épület a 70-es évek végén épült beton elemekből, lapostetővel. A ház alatt 32 nm-es pince található, mely garázsnak, műhelynek egyaránt használható. A telek összközműves, hátsó részén melléképületek, borospince, füstölő, ólak találhatók. Készült egy ráépítési terv a kétezres évek elején, melynek fotói a hirdetésben kedvcsinálóként megtalálhatóak, de a valóságban nem készült el. Az ingatlan korszerűsítést, felújítást igényel. Azoknak ajánljuk, akik szeretik az ilyen jellegű kihívást. Pozitívum, hogy ezt a házat teljes mértékben a saját igényekhez, ízléshez lehet még formálni. További kérdésekkel, megtekintéssel kapcsolatban várom hívását!

Referencia szám: M315381

Hirdetés feltöltve: 2025. 11. 25.

2 szobás családi házak ára Érden

Ebből az összehasonlításból megtudhatod, hogyan viszonyul a lakás ára a környékbeli családi házak átlagos árához. Ez nem azt jelenti, hogy ennyivel olcsóbb vagy drágább, mint amennyit a lakás ér, hanem hogy ennyivel tér el a környékbeli átlagtól.

Ennek a m² ára
Érd m² ár
1000 e Ft
856 e Ft -17%
Ennek az ára
Érd átlagár
60 M Ft m Ft
167.6 m Ft 64%

Az ingatlan elhelyezkedése

Cím: Érd

Eladó családi házak a környékről

Eladó családi ház
Eladó családi ház

Dunavarsány

46.9 M Ft
3 + 2 szoba
130 m2
Eladó családi ház
Eladó családi ház

Érd

115 M Ft
122 m2
Eladó családi ház
Eladó családi ház

Érd

250 M Ft
6 szoba
210 m2
Eladó családi ház
Eladó családi ház

Érd, Érdliget - Kutyavár, Érd-liget

230 M Ft
7 szoba
280 m2
Eladó családi ház
Eladó családi ház

Budaörs, Városközpont utca

119.5 M Ft
5 + 1 szoba
140 m2
Eladó családi ház
Eladó családi ház

Érd

95 M Ft
5 szoba
226 m2
Eladó családi ház
Eladó családi ház

Érd

198 M Ft
5 szoba
216 m2
Eladó családi ház
Eladó családi ház

Érd

84.9 M Ft
4 szoba
172 m2
Eladó családi ház
Eladó családi ház

Kerepes

199 M Ft
6 szoba
360 m2
Eladó családi ház
Eladó családi ház

Érd

179.9 M Ft
8 szoba
236 m2
Eladó családi ház
Eladó családi ház

Érd

67 M Ft
3 szoba
81 m2
Eladó családi ház
Eladó családi ház

Érd

69.9 M Ft
4 szoba
90 m2
Eladó családi ház
Eladó családi ház

Tápiószele

37.9 M Ft
4 szoba
141 m2
Eladó családi ház
Eladó családi ház

Remeteszőlős

399.9 M Ft
5 + 2 szoba
260 m2
Eladó családi ház
Eladó családi ház

Budakeszi, Budakeszi kertváros

140 M Ft
2 szoba
55 m2
Eladó családi ház
Eladó családi ház

Érd

129 M Ft
4 szoba
150 m2
Eladó családi ház
Eladó családi ház

Tápiószentmárton

48 M Ft
5 szoba
180 m2
Eladó családi ház
Eladó családi ház

Érd, Cserhalmi és Csobánci utca között utca

98 M Ft
5 + 2 szoba
200 m2
Eladó családi ház
Eladó családi ház

Gyál, Gyál út

169.9 M Ft
2 szoba
90 m2
Eladó családi ház
Eladó családi ház

Budakeszi, Budakeszi kertváros

229 M Ft
10 szoba
450 m2
Eladó családi ház
Eladó családi ház

Érd, Érdliget - Kutyavár, 2030.ÉRDLIGET, KÖVIRÓZSA

649 M Ft
6 szoba
380 m2
Eladó családi ház
Eladó családi ház

Érd

189.7 M Ft
5 szoba
204 m2
Eladó családi ház
Eladó családi ház

Érd

89.9 M Ft
4 szoba
130 m2
Eladó családi ház
Eladó családi ház

Érd

164.9 M Ft
5 szoba
192 m2

Falusi CSOK ingatlanok

Eladó családi ház
Eladó családi ház

Sümegcsehi

119 M Ft
5 szoba
237 m2
Eladó családi ház
Eladó családi ház

Vaskút

76 M Ft
3 szoba
120 m2
Eladó családi ház
Eladó családi ház

Nemesszentandrás

75 M Ft
4 szoba
164 m2
Eladó családi ház
Eladó családi ház

Pécsely, Szőlő Dülő

499 M Ft
4 + 2 szoba
183 m2
Eladó családi ház
Eladó családi ház

Tápiógyörgye

44.9 M Ft
3 szoba
105 m2
Eladó ikerház
Eladó ikerház

Balatonkenese

84.99 M Ft
3 szoba
76 m2
Eladó családi ház
Eladó családi ház

Harsány

51.9 M Ft
5 szoba
140 m2
Eladó családi ház
Eladó családi ház

Kesztölc

129.9 M Ft
8 szoba
210 m2