Eladó családi ház
Érd

+ 12 kép 1/15
72 000 000 Ft72 M Ft 1 200 000 Ft/m2
2 szoba
60 m2
építés éve:1976

Részletes adatok

Állapot: Felújítandó
Telekméret: 1145 m2
Fűtés: Gázkonvektor
Közmű: Víz, Gáz, Villany, Csatorna
Energetikai besorolás: Nem adta meg a hirdető
Zenga Premier

Friss hirdetések, amiket nem találsz meg más ingatlankereső portálon.

Fedezd fel elsőként a Zenga Premier címkés eladó ingatlanokat!

További részletek a zenga.hu-n

Az OTP Bank lakáshitel ajánlataFizetett hirdetés

+36 70 681
Pap Éva Zsuzsanna
referens

Érdekel az OTP Bank kedvezményes lakáshitel ajánlata? *

* A kérdésre „Igen” válasz bejelölése esetén, az „Üzenet küldése” gombra kattintva kijelentem, hogy az OTP Bank Nyrt. Adatkezelési tájékoztatójának tartalmát megismertem és tudomásul vettem.

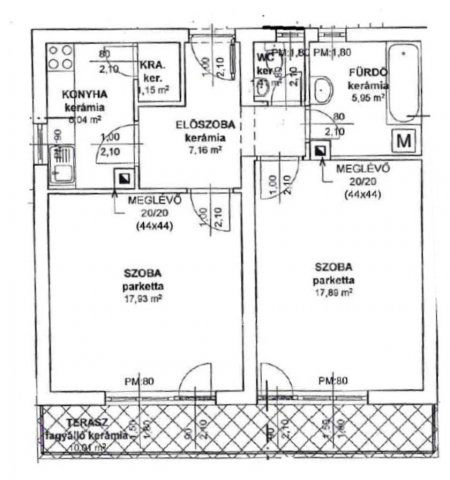
Eladó családi ház leírása

Érdliget kedvelt részén, 1145nm-es kiváló fekvésű és elhelyezkedésű telken kínálunk egy 60 nm-es korszerűsítésre váró házat. A masszív szerkezetű épület a 70-es évek végén épült beton elemekből, lapostetővel. A ház alatt 32 nm-es pince található, mely garázsnak, műhelynek egyaránt használható. A telek összközműves, hátsó részén melléképületek, borospince, füstölő, ólak találhatók. Készült egy ráépítési terv a kétezres évek elején, melynek fotói a hirdetésben kedvcsinálóként megtalálhatóak, de a valóságban nem készült el. Az ingatlan korszerűsítést, felújítást igényel. Azoknak ajánljuk, akik szeretik az ilyen jellegű kihívást. Pozitívum, hogy ezt a házat teljes mértékben a saját igényekhez, ízléshez lehet még formálni. További kérdésekkel, megtekintéssel kapcsolatban várom hívását!

Hirdetés feltöltve: 2025. 10. 19. Utoljára módosítva: 2025. 10. 19.

2 szobás családi házak ára Érden

Ebből az összehasonlításból megtudhatod, hogyan viszonyul a lakás ára a környékbeli családi házak átlagos árához. Ez nem azt jelenti, hogy ennyivel olcsóbb vagy drágább, mint amennyit a lakás ér, hanem hogy ennyivel tér el a környékbeli átlagtól.

Ennek a m² ára
Érd m² ár
1200 e Ft
885 e Ft -36%
Ennek az ára
Érd átlagár
72 M Ft m Ft
145.6 m Ft 51%

Az ingatlan elhelyezkedése

Cím: Érd

Eladó családi házak a környékről

Eladó családi ház
Eladó családi ház

Érd

120 M Ft
5 szoba
190 m2
Eladó családi ház
Eladó családi ház

Budakeszi, Makkosmária

100 M Ft
1 szoba
10 m2
Eladó családi ház
Eladó családi ház

Kerepes

81.99 M Ft
5 szoba
102 m2
Eladó családi ház
Eladó családi ház

Érd, Érdliget - Kutyavár, 2030.ÉRDLIGET, KÖVIRÓZSA

649 M Ft
6 szoba
380 m2
Eladó családi ház
Eladó családi ház

Érd

89.9 M Ft
4 szoba
130 m2
Eladó családi ház
Eladó családi ház

Érd

115 M Ft
122 m2
Eladó családi ház
Eladó családi ház

Budakeszi, Budakeszi kertváros

229 M Ft
10 szoba
450 m2
Eladó családi ház
Eladó családi ház

Budakeszi

130 M Ft
5 szoba
30 m2
Eladó családi ház
Eladó családi ház

Gyál, Gyál út

169.9 M Ft
2 szoba
90 m2
Eladó családi ház
Eladó családi ház

Érd

164.9 M Ft
5 szoba
192 m2
Eladó családi ház
Eladó családi ház

Érd

382 M Ft
6 szoba
420 m2
Eladó családi ház
Eladó családi ház

Érd

198 M Ft
5 szoba
216 m2
Eladó családi ház
Eladó családi ház

Dunavarsány

46.9 M Ft
3 + 2 szoba
130 m2
Eladó családi ház
Eladó családi ház

Érd

164.9 M Ft
5 szoba
192 m2
Eladó családi ház
Eladó családi ház

Leányfalu

237 M Ft
9 szoba
800 m2
Eladó családi ház
Eladó családi ház

Érd, Érdliget - Kutyavár, Érd-liget

230 M Ft
7 szoba
280 m2
Eladó családi ház
Eladó családi ház

Dunakeszi

250 M Ft
4 szoba
180 m2
Eladó családi ház
Eladó családi ház

Tápiószentmárton

7.9 M Ft
2 + 1 szoba
86 m2
Eladó családi ház
Eladó családi ház

Sződ, Rátóti utca

149.99 M Ft
11 szoba
270 m2
Eladó családi ház
Eladó családi ház

Budaörs, Bányász utca

385 M Ft
6 szoba
300 m2
Eladó családi ház
Eladó családi ház

Remeteszőlős

399.9 M Ft
5 + 2 szoba
260 m2
Eladó családi ház
Eladó családi ház

Érd

67 M Ft
3 + 1 szoba
100 m2
Eladó családi ház
Eladó családi ház

Érd

129 M Ft
5 szoba
175 m2
Eladó családi ház
Eladó családi ház

Érd

67 M Ft
3 szoba
81 m2

Falusi CSOK ingatlanok

Eladó családi ház
Eladó családi ház

Gáborjánháza

23 M Ft
2 szoba
117 m2
Eladó családi ház
Eladó családi ház

Babócsa, Béke utca 9

5.08 M Ft
1 + 1 szoba
83 m2
Eladó családi ház
Eladó családi ház

Nemeskeresztúr, Petőfi utca 22

6.85 M Ft
1 + 1 szoba
99 m2
Eladó családi ház
Eladó családi ház

Tök

124.2 M Ft
4 szoba
128 m2
Eladó családi ház
Eladó családi ház

Tömörkény, József Attila utca 5

9.2 M Ft
1 + 1 szoba
93 m2
Eladó családi ház
Eladó családi ház

Galambok

58 M Ft
3 szoba
107 m2
Eladó családi ház
Eladó családi ház

Kaszaper

14.5 M Ft
3 szoba
63 m2
Eladó családi ház
Eladó családi ház

Bácsbokod

12.9 M Ft
3 szoba
90 m2