Stay Family Park

Eladó családi ház
Ercsi

+ 17 kép 1/20
215 000 000 Ft215 M Ft 1 137 566 Ft/m2
4 szoba
189 m2
építés éve:1985

Részletes adatok

Állapot: Felújított
Telekméret: 1308 m2
Fűtés: Gázkazán
Parkolás: Garázs
Energetikai besorolás: Nem adta meg a hirdető

Az OTP Bank lakáshitel ajánlataFizetett hirdetés

+36 30 731
Orbán Attila
OTPip - Érd Bajcsy-Zsilinszky út 160 - OTP Ingatlanpont Iroda

Érdekel az OTP Bank kedvezményes lakáshitel ajánlata? *

* A kérdésre „Igen” válasz bejelölése esetén, az „Üzenet küldése” gombra kattintva kijelentem, hogy az OTP Bank Nyrt. Adatkezelési tájékoztatójának tartalmát megismertem és tudomásul vettem.

Eladó családi ház leírása

BEFEKTETŐK ÁLMA ERCSIBEN, FELÚJÍTOTT CSALÁDI HÁZ + 2 ÜZLET + HAVI 500.000 FT PASSZÍV BEVÉTEL

Ercsi frekventált, főút melletti részén eladó egy kivételes adottságú, többfunkciós ingatlanegyüttes, amely azonnal költözhető családi otthon és stabil, kiszámítható hozamot biztosító befektetés egyben.

A telken felújított tégla családi ház, két külön bejáratú, működő üzlethelyiség, több garázs és melléképület található. A teljes ingatlan a jelenlegi bérlők által nettó kb. 500.000 Ft passzív havi bevételt termel, mindezt hosszú távra tervezhető, stabil működéssel.

AZ INGATLAN FŐBB ADATAI:
Telek mérete: 1308 m2
Építés éve: 1985
Felújítás éve: 5 éve teljes körűen
Szerkezet: 30 cm vastag tégla
Szigetelés: külső hungarocell
Tető: jó állapotú, cseréptető, szigetelt
Nyílászárók: újszerű, hőszigetelt
Kémény: kiváló állapotú
Közművek: víz, villany, gáz, csatorna bevezetve
Napelem: igen, rezsiköltség minimális
Tájolás: délnyugati napfényes ház
Beázás, penész: nincs
Állapot: 1 hónapon belül költözhető

A PASSZÍV BEVÉTEL RÉSZLETEZÉSE, HAVI 500.000 Ft NETTÓ
1. Működő nemzeti dohánybolt
Konténerből épített, hivatalos működési engedéllyel
Stabil törzsvásárlói kör
Jelentős havonta termelt tiszta nyereség
Főút közelsége miatt folyamatos forgalom

2. Különálló kisbolt saját parkolóval
Jelenleg bérbe adva
Alacsony rezsi, magas bérleti díjpotenciál
Teljesen különálló működés
Aktív bérlő, folyamatos havi bevétel
Az ingatlan így azonnal hozamot termel, a vevő már az első naptól kezdve élvezheti a bevételt.

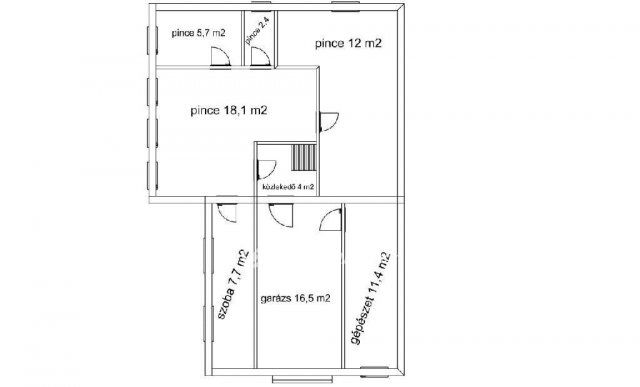
A HÁZ ÉS MELLÉKÉPÜLETEK
Felújított, szuterén/hobbitér
78 m2-es hátsó garázs, 3 db elektromos távirányítós kapuval
20 m2-es első garázs
27 m2-es fedett terasz, beépített kinti konyhával
Rendezett kert: füvesített, gyümölcsfákkal

KÖRNYEZETI ELŐNYÖK
Nincs nagyfeszültség, vonat, ipari zajforrás, szemétégető vagy szennyvíztelep a közelben
Aszfaltos utca
Több parkolóterület az üzletek és a ház előtt
Családi házas, biztonságos környezet
Óvoda, iskola, boltok, gyógyszertár, pékség, buszmegálló néhány perc sétára
Budapest kb. 25, 30 perc autóval

JOGI ÉS ADMINISZTRATÍV ADATOK
A tulajdoni lap szerint: kivett lakóház, udvar, gazdasági épület
Telekalakítási eljárás megindítva, értéknövelő fejlesztési lehetőség
Két tulajdonos, teljes egyetértéssel értékesítik
Építési engedélyek rendben
Birtokba adás: szerződéskötéstől számított 1 hónap
Az ingatlan nem terhelt problémás jogokkal (normál jelzálog szerepel, amely adásvétellel rendezhető)

MIÉRT PÁRATLAN EZ AZ INGATLAN?
Felújított, újszerű állapotú családi ház
Két működő üzlethelyiség már meglévő bérlőkkel
Stabil, nettó 500.000 Ft/hó passzív jövedelem
Napelem rendszer, rezsicsökkentett fenntartás
Nagy telek, három garázs, melléképületek
Frekventált, mégis csendes környék
Ideális befektetőknek vagy nagycsaládosoknak
Azonnal költözhető / azonnal hozamot termel

Hirdetés feltöltve: 2025. 11. 30. Utoljára módosítva: 2025. 11. 30.

4 szobás családi házak ára Ercsiben

Ebből az összehasonlításból megtudhatod, hogyan viszonyul a lakás ára a környékbeli családi házak átlagos árához. Ez nem azt jelenti, hogy ennyivel olcsóbb vagy drágább, mint amennyit a lakás ér, hanem hogy ennyivel tér el a környékbeli átlagtól.

Ennek a m² ára
Ercsi m² ár
1138 e Ft
512 e Ft -122%
Ennek az ára
Ercsi átlagár
215 M Ft m Ft
62.9 m Ft -242%

Az ingatlan elhelyezkedése

Cím: Ercsi

Eladó családi házak a környékről

Eladó családi ház
Eladó családi ház

Székesfehérvár

69.9 M Ft
3 szoba
95 m2
Eladó családi ház
Eladó családi ház

Sárbogárd, Tinódy utca

19.9 M Ft
3 szoba
75 m2
Eladó családi ház
Eladó családi ház

Vál

86.912 M Ft
4 szoba
80 m2
Eladó családi ház
Eladó családi ház

Ercsi

219 M Ft
5 szoba
160 m2
Eladó családi ház
Eladó családi ház

Tordas

89 M Ft
3 szoba
75 m2
Eladó családi ház
Eladó családi ház

Ercsi

64 M Ft
3 + 1 szoba
93 m2
Eladó családi ház
Eladó családi ház

Ercsi

74.9 M Ft
3 szoba
128 m2
Eladó családi ház
Eladó családi ház

Pusztavám

22.9 M Ft
3 szoba
103 m2
Eladó családi ház
Eladó családi ház

Ercsi

38 M Ft
7 szoba
176 m2
Eladó családi ház
Eladó családi ház

Ercsi

29.9 M Ft
3 szoba
69 m2
Eladó családi ház
Eladó családi ház

Ercsi

69.9 M Ft
3 szoba
121 m2
Eladó családi ház
Eladó családi ház

Ercsi

42.5 M Ft
3 szoba
83 m2
Eladó családi ház
Eladó családi ház

Mór

110 M Ft
12 szoba
340 m2
Eladó családi ház
Eladó családi ház

Pusztavám

22.9 M Ft
3 szoba
103 m2
Eladó családi ház
Eladó családi ház

Ercsi

30.9 M Ft
2 szoba
75 m2
Eladó családi ház
Eladó családi ház

Szabadbattyán

357.518 M Ft
9 + 2 szoba
1053 m2
Eladó családi ház
Eladó családi ház

Székesfehérvár, Belváros

60 M Ft
2 szoba
100 m2
Eladó családi ház
Eladó családi ház

Ercsi, Gárdonyi Géza utca

34.9 M Ft
3 szoba
74 m2
Eladó családi ház
Eladó családi ház

Ercsi

219 M Ft
5 szoba
160 m2
Eladó családi ház
Eladó családi ház

Ercsi

64 M Ft
3 + 1 szoba
93 m2
Eladó családi ház
Eladó családi ház

Ercsi

29.99 M Ft
3 szoba
70 m2
Eladó családi ház
Eladó családi ház

Kápolnásnyék, Bem utca

108.675 M Ft
5 szoba
136 m2
Eladó családi ház
Eladó családi ház

Gárdony

42 M Ft
2 szoba
63 m2
Eladó családi ház
Eladó családi ház

Velence

42.9 M Ft
1 szoba
40 m2

Falusi CSOK ingatlanok

Eladó családi ház
Eladó családi ház

Hegyfalu

14.9 M Ft
2 szoba
70 m2
Eladó családi ház
Eladó családi ház

Ceglédbercel, Iskola utca

89.99 M Ft
5 szoba
110 m2
Eladó családi ház
Eladó családi ház

Balatonkeresztúr

41.9 M Ft
2 szoba
57 m2
Eladó családi ház
Eladó családi ház

Beremend, 7827 Beremend, Petőfi Sándor utca 10

11.95 M Ft
1 + 1 szoba
124 m2
Eladó családi ház
Eladó családi ház

Geresdlak

44.9 M Ft
4 + 1 szoba
200 m2
Eladó családi ház
Eladó családi ház

Vilonya

71.9 M Ft
5 szoba
105 m2
Eladó családi ház
Eladó családi ház

Sárosd

21.9 M Ft
3 szoba
86 m2
Eladó családi ház
Eladó családi ház

Tokod

89 M Ft
6 szoba
187 m2