River Life

Eladó családi ház
Decs

Figyelem!

Ez az ingatlan a 2019.07.01-től induló falusi CSOK által támogatott településen található

+ 13 kép 1/16
24 990 000 Ft24.99 M Ft 403 065 Ft/m2
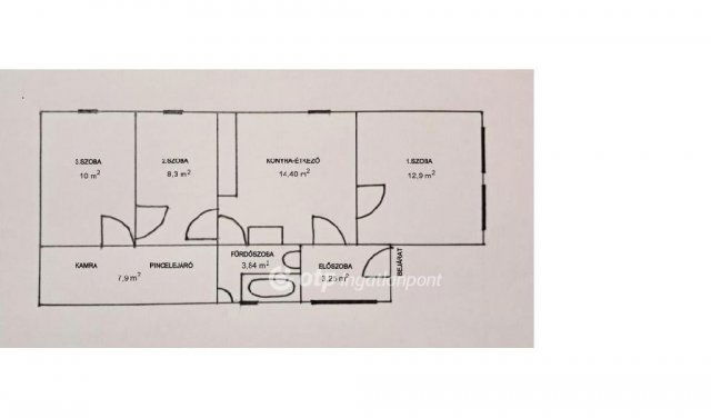
1 + 2 szoba
62 m2
építés éve:1950

Részletes adatok

Állapot: Átlagos
Telekméret: 444 m2
Fűtés: Elektromos
Energetikai besorolás: Nem adta meg a hirdető

Az OTP Bank lakáshitel ajánlataFizetett hirdetés

+36 30 528
Uzner György
referens

Érdekel az OTP Bank kedvezményes lakáshitel ajánlata? *

* A kérdésre „Igen” válasz bejelölése esetén, az „Üzenet küldése” gombra kattintva kijelentem, hogy az OTP Bank Nyrt. Adatkezelési tájékoztatójának tartalmát megismertem és tudomásul vettem.

Eladó családi ház leírása

Tolna vármegyében,Szekszárd központjától 5 kilométere a decsi hegyen eladó az ötevenes években épült házikó.Vegyes falazatu 62 négyzetméteres lakás,
amely alatt egy pince is található,de nem nyílik lakótérbe.Jelenleg elektromos fűtése van,de rendelkezik kéménnyel,amelyel lehet nővelni a komfort élményt. Kis udvar is tartozik a házhoz.A rendelkezésre álló dokumentumok szerint még 30 négyzetméterrel növelhető az alapterület.

Hirdetés feltöltve: 2025. 10. 23. Utoljára módosítva: 2025. 11. 30.

Az ingatlan elhelyezkedése

Cím: Decs

Eladó családi házak a környékről

Eladó családi ház
Eladó családi ház

Decs

12 M Ft
2 + 1 szoba
91 m2
Eladó családi ház
Eladó családi ház

Decs

12 M Ft
2 + 1 szoba
91 m2
Eladó családi ház
Eladó családi ház

Decs, Szőlőhegy 133

22.9 M Ft
2 szoba
41 m2
Eladó családi ház
Eladó családi ház

Paks

220 M Ft
5 szoba
264 m2
Eladó családi ház
Eladó családi ház

Dunaszentgyörgy

10.8 M Ft
3 szoba
65 m2
Eladó családi ház
Eladó családi ház

Paks

20 M Ft
3 szoba
88 m2
Eladó családi ház
Eladó családi ház

Decs

12 M Ft
2 + 1 szoba
91 m2
Eladó családi ház
Eladó családi ház

Decs, Arany János utca 13

4.9 M Ft
1 + 1 szoba
82 m2
Eladó családi ház
Eladó családi ház

Dombóvár

44.9 M Ft
5 szoba
220 m2
Eladó családi ház
Eladó családi ház

Decs, Fő utca 15

9.32 M Ft
1 + 1 szoba
140 m2
Eladó családi ház
Eladó családi ház

Bikács, Kossuth Lajos utca

129.444 M Ft
6 szoba
450 m2
Eladó családi ház
Eladó családi ház

Decs

26.5 M Ft
2 szoba
83 m2
Eladó családi ház
Eladó családi ház

Decs

16.5 M Ft
4 szoba
85 m2
Eladó családi ház
Eladó családi ház

Decs

14 M Ft
2 szoba
60 m2
Eladó családi ház
Eladó családi ház

Dombóvár

20.9 M Ft
3 szoba
85 m2
Eladó családi ház
Eladó családi ház

Paks, Hidegvölgy utca

26.9 M Ft
3 szoba
89 m2
Eladó családi ház
Eladó családi ház

Paks, Ezredvég utca

399 M Ft
5 + 1 szoba
400 m2
Eladó családi ház
Eladó családi ház

Paks, Kölesdi út

64.9 M Ft
2 szoba
45 m2
Eladó családi ház
Eladó családi ház

Paks

21.9 M Ft
2 szoba
70 m2
Eladó családi ház
Eladó családi ház

Decs, Rákóczi utca

22.9 M Ft
3 szoba
94 m2
Eladó családi ház
Eladó családi ház

Paks

11.9 M Ft
1 szoba
45 m2
Eladó családi ház
Eladó családi ház

Paks

21.9 M Ft
2 szoba
70 m2
Eladó családi ház
Eladó családi ház

Decs

26.5 M Ft
2 szoba
83 m2
Eladó családi ház
Eladó családi ház

Decs

24.99 M Ft
1 + 2 szoba
62 m2

Falusi CSOK ingatlanok

Eladó családi ház
Eladó családi ház

Görbeháza

54 M Ft
5 szoba
158 m2
Eladó családi ház
Eladó családi ház

Szirmabesenyő

56 M Ft
5 szoba
127 m2
Eladó családi ház
Eladó családi ház

Szentistván

31 M Ft
3 szoba
140 m2
Eladó téglalakás
Eladó téglalakás

Újlengyel

72.99 M Ft
2 szoba
68 m2
Eladó családi ház
Eladó családi ház

Kaposgyarmat

695 M Ft
6 szoba
610 m2
Eladó családi ház
Eladó családi ház

Törtel

39 M Ft
1 + 1 szoba
118 m2
Eladó családi ház
Eladó családi ház

Hahót

64.9 M Ft
5 szoba
118 m2
Eladó családi ház
Eladó családi ház

Sellye

43 M Ft
5 szoba
150 m2

Falusi CSOK ingatlanok

Eladó családi ház
Eladó családi ház

Hahót

64.9 M Ft
5 szoba
118 m2
Eladó családi ház
Eladó családi ház

Mecsér, Nincs utca

49.9 M Ft
3 szoba
68 m2
Eladó családi ház
Eladó családi ház

Zengővárkony

30.999 M Ft
3 szoba
87 m2
Eladó családi ház
Eladó családi ház

Vajta

24.5 M Ft
4 szoba
102 m2
Eladó családi ház
Eladó családi ház

Pannonhalma

83.9 M Ft
4 szoba
97 m2
Eladó családi ház
Eladó családi ház

Enese

78.9 M Ft
4 szoba
90 m2
Eladó családi ház
Eladó családi ház

Fertőszentmiklós

98.5 M Ft
4 szoba
82 m2
Eladó családi ház
Eladó családi ház

Poroszló, Dobosok útja 8

18.94 M Ft
1 + 1 szoba
116 m2