Avico Greentop

Eladó családi ház
Decs

Figyelem!

Ez az ingatlan a 2019.07.01-től induló falusi CSOK által támogatott településen található

+ 13 kép 1/16
24 990 000 Ft24.99 M Ft 403 065 Ft/m2
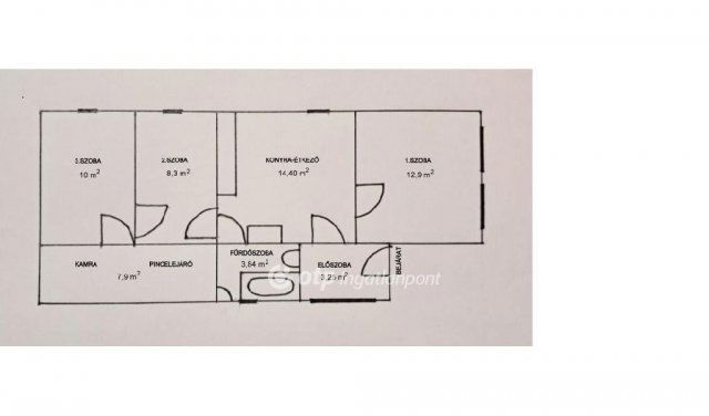
1 + 2 szoba
62 m2
építés éve:1950

Részletes adatok

Állapot: Átlagos
Telekméret: 444 m2
Fűtés: Elektromos
Energetikai besorolás: Nem adta meg a hirdető

Az OTP Bank lakáshitel ajánlataFizetett hirdetés

+36 20 267
Szetteli Ildikó
referens

Érdekel az OTP Bank kedvezményes lakáshitel ajánlata? *

* A kérdésre „Igen” válasz bejelölése esetén, az „Üzenet küldése” gombra kattintva kijelentem, hogy az OTP Bank Nyrt. Adatkezelési tájékoztatójának tartalmát megismertem és tudomásul vettem.

Eladó családi ház leírása

Tolna vármegyében,Szekszárd központjától 5 kilométere a decsi hegyen eladó az ötvenes években épült házikó.Vegyes falazatú 62 négyzetméteres lakás,
amely alatt egy pince is található,de nem nyílik lakótérbe.Jelenleg elektromos fűtése van,de rendelkezik kéménnyel,amellyel lehet növelni a komfort élményt. Kis udvar is tartozik a házhoz. A rendelkezésre álló dokumentumok szerint még 30 négyzetméterrel növelhető az alapterület.

Hirdetés feltöltve: 2025. 10. 23. Utoljára módosítva: 2026. 01. 17.

Az ingatlan elhelyezkedése

Cím: Decs

Eladó ingatlanok a környékről

Eladó családi ház
Eladó családi ház

Bikács, Kossuth Lajos utca

129.277 M Ft
6 szoba
450 m2
Eladó családi ház
Eladó családi ház

Paks

220 M Ft
5 szoba
264 m2
Eladó családi ház
Eladó családi ház

Paks

29.9 M Ft
3 szoba
90 m2
Eladó családi ház
Eladó családi ház

Ozora

31 M Ft
4 szoba
91 m2
Eladó családi ház
Eladó családi ház

Decs

23 M Ft
3 szoba
68 m2
Eladó családi ház
Eladó családi ház

Decs, Bíborvég utca

22 M Ft
3 szoba
93 m2
Eladó családi ház
Eladó családi ház

Paks

39.9 M Ft
3 szoba
75 m2
Eladó családi ház
Eladó családi ház

Paks, Hidegvölgy utca

26.9 M Ft
3 szoba
89 m2
Eladó családi ház
Eladó családi ház

Decs

26.5 M Ft
2 szoba
83 m2
Eladó családi ház
Eladó családi ház

Paks

65 M Ft
4 szoba
159 m2
Eladó téglalakás
Eladó téglalakás

Szekszárd

33 M Ft
2 szoba
87 m2
Eladó családi ház
Eladó családi ház

Decs

9.9 M Ft
3 szoba
138 m2
Eladó családi ház
Eladó családi ház

Paks

60 M Ft
4 szoba
120 m2
Eladó családi ház
Eladó családi ház

Paks

46.9 M Ft
3 szoba
81 m2
Eladó családi ház
Eladó családi ház

Decs, Arany János utca 13

4.9 M Ft
1 + 1 szoba
82 m2
Eladó családi ház
Eladó családi ház

Paks, Ezredvég utca

399 M Ft
5 + 1 szoba
400 m2
Eladó családi ház
Eladó családi ház

Tamási

95 M Ft
6 + 1 szoba
180 m2
Eladó családi ház
Eladó családi ház

Decs

14 M Ft
2 szoba
60 m2
Eladó családi ház
Eladó családi ház

Decs

16.5 M Ft
4 szoba
85 m2
Eladó családi ház
Eladó családi ház

Dombóvár

44.9 M Ft
5 szoba
220 m2
Eladó mezogazdasagi ingatlan
Eladó mezogazdasagi ingatlan

Szekszárd, Árnyas szurdik

31.9 M Ft
2425 m²
63 m2
Eladó családi ház
Eladó családi ház

Decs, Rákóczi utca

22.9 M Ft
3 szoba
94 m2
Eladó családi ház
Eladó családi ház

Paks

20 M Ft
3 szoba
88 m2
Eladó családi ház
Eladó családi ház

Decs, Tabán utca 75

0.58 M Ft
1 + 1 szoba
65 m2

Falusi CSOK ingatlanok

Eladó családi ház
Eladó családi ház

Szakmár

12.9 M Ft
3 + 1 szoba
90 m2
Eladó családi ház
Eladó családi ház

Bugac

34.4 M Ft
3 szoba
70 m2
Eladó családi ház
Eladó családi ház

Nagyhegyes

80 M Ft
2 szoba
94 m2
Eladó családi ház
Eladó családi ház

Mezőzombor

19.99 M Ft
3 szoba
91 m2
Eladó családi ház
Eladó családi ház

Nyékládháza, Mátyás király utca

34.9 M Ft
2 szoba
88 m2
Eladó családi ház
Eladó családi ház

Acsalag

47 M Ft
3 szoba
140 m2
Eladó családi ház
Eladó családi ház

Somogyhárságy

188.65 M Ft
5 szoba
250 m2
Eladó családi ház
Eladó családi ház

Bábolna

69.9 M Ft
5 szoba
172 m2

Falusi CSOK ingatlanok

Eladó családi ház
Eladó családi ház

Sárok, Kossuth Lajos utca

21.9 M Ft
3 szoba
97 m2
Eladó családi ház
Eladó családi ház

Dombrád

8 M Ft
2 szoba
85 m2
Eladó családi ház
Eladó családi ház

Nagyhegyes

80 M Ft
2 szoba
94 m2
Eladó családi ház
Eladó családi ház

Bábolna

69.9 M Ft
5 szoba
172 m2
Eladó családi ház
Eladó családi ház

Lengyel

59.675 M Ft
2 szoba
135 m2
Eladó családi ház
Eladó családi ház

Balatonudvari

79.9 M Ft
4 szoba
97 m2
Eladó családi ház
Eladó családi ház

Kislippó

16 M Ft
3 szoba
100 m2
Eladó családi ház
Eladó családi ház

Szakmár

12.9 M Ft
3 + 1 szoba
90 m2