Seven Pearl

Eladó családi ház
Csorna

+ 17 kép 1/20
57 900 000 Ft57.9 M Ft 413 571 Ft/m2
4 szoba
140 m2
építés éve:1985

Részletes adatok

Állapot: Átlagos
Telekméret: 407 m2
Fűtés: Gázkazán
Energetikai besorolás: Nem adta meg a hirdető

Az OTP Bank lakáshitel ajánlataFizetett hirdetés

+36 70 315
Verrasztó Edina Irén
OTP Ingatlanpont Pápa

Érdekel az OTP Bank kedvezményes lakáshitel ajánlata? *

* A kérdésre „Igen” válasz bejelölése esetén, az „Üzenet küldése” gombra kattintva kijelentem, hogy az OTP Bank Nyrt. Adatkezelési tájékoztatójának tartalmát megismertem és tudomásul vettem.

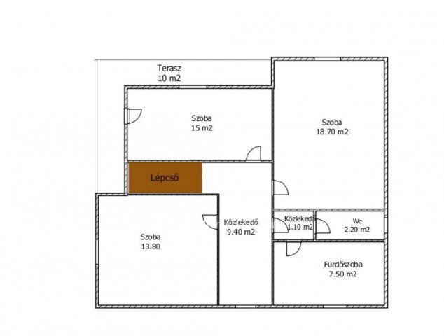
Eladó családi ház leírása

Az ingatlan megfelel az Otthon Start Hitelprogram feltételeinek! Csorna belvárosában keresi új tulajdonosát egy belső kétszintes, jó elosztású, duplakomfortos családi ház. Az ingatlan 140 m2-es, 3 szoba+ nappalis, igény szerint felújítandó állapotú. Az otthon melegét vegyestüzelésű kazán ill. gázkazán biztosítja, radiátoros hőleadással. Az autódat egy fűtött garázsban biztonságban tudhatod. Amennyiben hirdetésem felkeltette az érdeklődését, keressen bizalommal!

Referenciaszám: M314052

57900000 Ft
Amennyiben az ingatlan felkeltette érdeklődését, esetleg bármivel kapcsolatban kérdése lenne, keressen Bizalommal! Verrasztó Edina: +36703156380

Referencia szám: M314052-ZE

Hirdetés feltöltve: 2025. 11. 26. Utoljára módosítva: 2025. 11. 27.

4 szobás családi házak ára Csornán

Ebből az összehasonlításból megtudhatod, hogyan viszonyul a lakás ára a környékbeli családi házak átlagos árához. Ez nem azt jelenti, hogy ennyivel olcsóbb vagy drágább, mint amennyit a lakás ér, hanem hogy ennyivel tér el a környékbeli átlagtól.

Ennek a m² ára
Csorna m² ár
414 e Ft
448 e Ft 8%
Ennek az ára
Csorna átlagár
57.9 M Ft m Ft
61.8 m Ft 6%

Az ingatlan elhelyezkedése

Cím: Csorna

Eladó családi házak a környékről

Eladó családi ház
Eladó családi ház

Csorna

69.9 M Ft
4 szoba
160 m2
Eladó családi ház
Eladó családi ház

Győrság

93.45 M Ft
4 szoba
96 m2
Eladó családi ház
Eladó családi ház

Enese

64.664 M Ft
3 szoba
75 m2
Eladó családi ház
Eladó családi ház

Csorna

57.9 M Ft
4 szoba
110 m2
Eladó családi ház
Eladó családi ház

Győr

325 M Ft
6 szoba
365 m2
Eladó családi ház
Eladó családi ház

Csorna

33.99 M Ft
2 szoba
95 m2
Eladó családi ház
Eladó családi ház

Csorna

57.9 M Ft
4 szoba
140 m2
Eladó családi ház
Eladó családi ház

Nagycenk

80.6 M Ft
4 szoba
106 m2
Eladó családi ház
Eladó családi ház

Veszprémvarsány

119 M Ft
6 szoba
215 m2
Eladó családi ház
Eladó családi ház

Töltéstava

81.2 M Ft
5 szoba
116 m2
Eladó családi ház
Eladó családi ház

Csorna

24.5 M Ft
2 szoba
75 m2
Eladó családi ház
Eladó családi ház

Harka

99 M Ft
4 szoba
103 m2
Eladó családi ház
Eladó családi ház

Nagycenk

102.5 M Ft
4 szoba
98 m2
Eladó családi ház
Eladó családi ház

Csorna

34.99 M Ft
2 szoba
70 m2
Eladó családi ház
Eladó családi ház

Csorna

47.5 M Ft
3 szoba
65 m2
Eladó családi ház
Eladó családi ház

Sopron

170 M Ft
4 szoba
122 m2
Eladó családi ház
Eladó családi ház

Gönyű

111.951 M Ft
4 szoba
105 m2
Eladó családi ház
Eladó családi ház

Kapuvár

115 M Ft
5 szoba
222 m2
Eladó családi ház
Eladó családi ház

Csorna

45 M Ft
1 szoba
65 m2
Eladó családi ház
Eladó családi ház

Csorna

19.5 M Ft
2 szoba
62 m2
Eladó családi ház
Eladó családi ház

Győrújbarát

154.5 M Ft
4 szoba
230 m2
Eladó családi ház
Eladó családi ház

Csorna

110 M Ft
3 szoba
120 m2
Eladó családi ház
Eladó családi ház

Sopron

130 M Ft
3 szoba
140 m2
Eladó családi ház
Eladó családi ház

Sopron

189.9 M Ft
8 szoba
280 m2

Falusi CSOK ingatlanok

Eladó családi ház
Eladó családi ház

Sümegcsehi

119 M Ft
5 szoba
237 m2
Eladó családi ház
Eladó családi ház

Sellye

21.6 M Ft
2 szoba
72 m2
Eladó családi ház
Eladó családi ház

Szabadbattyán

30 M Ft
4 szoba
75 m2
Eladó családi ház
Eladó családi ház

Annavölgy

34.99 M Ft
4 szoba
80 m2
Eladó családi ház
Eladó családi ház

Devecser

42.9 M Ft
3 szoba
100 m2
Eladó családi ház
Eladó családi ház

Bakonyszentkirály

99.99 M Ft
5 szoba
126 m2
Eladó családi ház
Eladó családi ház

Fülöpszállás

299 M Ft
14 + 5 szoba
680 m2
Eladó családi ház
Eladó családi ház

Üllés

35.5 M Ft
3 szoba
99 m2